Astora Márvány8

Eladó családi ház
Perkáta

Figyelem!

Ez az ingatlan a 2019.07.01-től induló falusi CSOK által támogatott településen található

+ 1 kép 1/4
59 900 000 Ft59.9 M Ft 748 750 Ft/m2
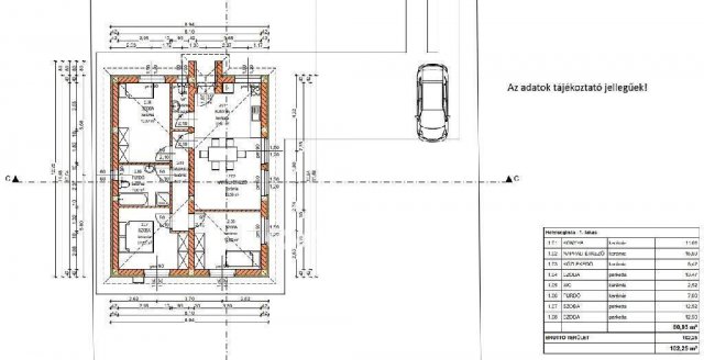
3 szoba
80 m²
építés éve:2026

Részletes adatok

Telekméret: 1500 m2
Fűtés: Egyéb
Energetikai besorolás: Nem adta meg a hirdető

Az OTP Bank lakáshitel ajánlataFizetett hirdetés

+36 70 599
Marczi Aletta
Szigetszentmiklós OTP Ip

Érdekel az OTP Bank kedvezményes lakáshitel ajánlata? *

* A kérdésre „Igen” válasz bejelölése esetén, az „Üzenet küldése” gombra kattintva kijelentem, hogy az OTP Bank Nyrt. Adatkezelési tájékoztatójának tartalmát megismertem és tudomásul vettem.

Eladó családi ház leírása

Perkátán eladó egy modern szemléletű, új építésű családi ház, amely 80 négyzetméteres lakótérrel és ritkaságszámba menő, 1500 négyzetméteres telekkel rendelkezik. Az egyszintes kialakítás praktikus és kényelmes mindennapi használatot biztosít, a tágas kert pedig számos jövőbeli lehetőséget kínál.

Az ingatlan 2026-ban készül el, a vásárlást követően körülbelül hat hónapon belül költözhető. A ház korszerű téglaszerkezetű, A plusz energetikai besorolású, hőszivattyús fűtéssel, padlófűtéssel és radiátoros hőleadással. A meleg víz ellátás villanybojlerrel történik, a belmagasság 2,7 méter, a nappali délnyugati tájolású, így a lakótér világos és napfényes.

A kivitelezés egyik nagy előnye, hogy az építkezés előrehaladottságától függően a vevő saját elképzelései szerint választhat burkolatokat és belső megoldásokat, felár ellenében. Az ingatlan a telek hátsó részén helyezkedik el, így nagyobb, jól kihasználható kert tartozik hozzá, miközben a környezet csendes és nyugodt.

Kiváló választás új építésű otthont keresőknek, fiatal pároknak, kis családosoknak vagy akár befektetési céllal gondolkodók számára is.

Az energetikai tanúsítvány készítése folyamatban van, amint rendelkezésre áll, úgy azzal a hirdetés frissítésre kerül.

Hirdetés feltöltve: 2026. 04. 14. Utoljára módosítva: 2026. 05. 10.

Az ingatlan elhelyezkedése

Cím: Perkáta

Eladó családi házak a környékről

Perkáta
Eladó családi ház

Perkáta

21 M Ft
2 szoba
40 m²
Székesfehérvár
Eladó családi ház

Székesfehérvár

69.9 M Ft
3 szoba
95 m²
Mór
Eladó családi ház

Mór

110 M Ft
12 szoba
340 m²
Gárdony, Gárdonyi Géza utca
Eladó családi ház

Gárdony

59 M Ft
3 szoba
100 m²
Perkáta
Eladó családi ház

Perkáta

55 M Ft
4 szoba
80 m²
Perkáta
Eladó családi ház

Perkáta

7 M Ft
1 szoba
50 m²
Bicske, Baboshegy
Eladó családi ház

Bicske

26.9 M Ft
1 szoba
30 m²
Perkáta
Eladó családi ház

Perkáta

57.9 M Ft
4 szoba
80 m²
Bakonycsernye
Eladó családi ház

Bakonycsernye

39 M Ft
3 szoba
350 m²
Mány
Eladó családi ház

Mány

18.5 M Ft
3 szoba
70 m²
Perkáta
Eladó családi ház

Perkáta

23 M Ft
3 szoba
95 m²
Csákvár
Eladó családi ház

Csákvár

29.9 M Ft
4 szoba
120 m²
Perkáta
Eladó családi ház

Perkáta

56.9 M Ft
3 szoba
80 m²
Kulcs
Eladó családi ház

Kulcs

148 M Ft
5 szoba
195 m²
Perkáta
Eladó családi ház

Perkáta

59.9 M Ft
4 szoba
80 m²
Csákvár, Kossuth utca
Eladó családi ház

Csákvár

76 M Ft
1 szoba
181 m²
Perkáta, Vörösmarty Mihály utca
Eladó családi ház

Perkáta

23 M Ft
3 szoba
95 m²
Perkáta, József Attila utca
Eladó családi ház

Perkáta

54.9 M Ft
4 szoba
80 m²
Pusztaszabolcs
Eladó családi ház

Pusztaszabolcs

143.9 M Ft
4 szoba
149 m²
Perkáta
Eladó családi ház

Perkáta

68 M Ft
5 + 1 szoba
156 m²
Perkáta, József Attila utca
Eladó családi ház

Perkáta

52.9 M Ft
4 szoba
80 m²
Perkáta
Eladó családi ház

Perkáta

68 M Ft
5 + 1 szoba
156 m²
Perkáta
Eladó családi ház

Perkáta

59.9 M Ft
3 szoba
80 m²
Perkáta
Eladó családi ház

Perkáta

23 M Ft
3 szoba
95 m²

Falusi CSOK ingatlanok

Sümegcsehi
Eladó családi ház

Sümegcsehi

119 M Ft
5 szoba
237 m²
Mencshely
Eladó családi ház

Mencshely

99 M Ft
3 szoba
126 m²
Cece
Eladó családi ház

Cece

69.8 M Ft
4 szoba
215 m²
Köveskál
Eladó családi ház

Köveskál

215 M Ft
4 szoba
100 m²
Balatonszemes, Ady E. utca 6
Eladó téglalakás

Balatonszemes

108.9 M Ft
2 + 1 szoba
63 m²
Őcsény, Rózsa utca 7
Eladó családi ház

Őcsény

5.6 M Ft
2 szoba
61 m²
Hegyeshalom, Margaréta utca 12
Eladó téglalakás

Hegyeshalom

35.92 M Ft
1 szoba
31 m²
Szalkszentmárton
Eladó családi ház

Szalkszentmárton

145 M Ft
5 szoba
620 m²

Falusi CSOK ingatlanok

Balatonszemes
Eladó téglalakás

Balatonszemes

119.9 M Ft
2 szoba
0 m²
Pilisszentkereszt
Eladó családi ház

Pilisszentkereszt

90 M Ft
3 szoba
100 m²
Hegyeshalom, Margaréta utca 12
Eladó téglalakás

Hegyeshalom

32.89 M Ft
1 szoba
27 m²
Sásd
Eladó családi ház

Sásd

35.9 M Ft
4 + 1 szoba
71 m²
Sződ
Eladó családi ház

Sződ

116.9 M Ft
4 + 1 szoba
102 m²
Nagykarácsony
Eladó családi ház

Nagykarácsony

34.9 M Ft
3 szoba
112 m²
Hévízgyörk
Eladó családi ház

Hévízgyörk

94.8 M Ft
8 szoba
254 m²
Tápiógyörgye
Eladó családi ház

Tápiógyörgye

12 M Ft
2 szoba
89 m²