River Life

Eladó családi ház
Őrbottyán

+ 2 kép 1/5
124 900 000 Ft124.9 M Ft 1 058 475 Ft/m2
4 szoba
118 m2
építés éve:2026

Részletes adatok

Telekméret: 820 m2
Fűtés: Gázkazán
Parkolás: Kocsibeálló
Energetikai besorolás: Nem adta meg a hirdető

Az OTP Bank lakáshitel ajánlataFizetett hirdetés

+36 70 490
Nagy Barbara
referens

Érdekel az OTP Bank kedvezményes lakáshitel ajánlata? *

* A kérdésre „Igen” válasz bejelölése esetén, az „Üzenet küldése” gombra kattintva kijelentem, hogy az OTP Bank Nyrt. Adatkezelési tájékoztatójának tartalmát megismertem és tudomásul vettem.

Eladó családi ház leírása

Eladásra kínálok Őrbottyán kiváló kertvárosias részén egy önálló családiházat, amely építése most kezdődik el.
Az amerikai konyhás nappalit 3 hálószoba egészíti ki.
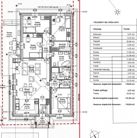
Felosztása:
Előszoba 3,91 m2
Étkező 8,14 m2
Nappali 25,66 m2
Konyha 8,28 m2
Közlekedő 4,23 m2
Szoba 11,55 m2
Szoba 11,34 m2
Szoba 11,85 m2
Gardrób 4,49 m2
Fürdő 7,20 m2
Háztartási helyiség 5,66 m2
Kamra 2,07 m2
Előtér 1,47 m2
Szoba 12,15 m2
Összesen: 118,00 m2
Fedett szélfogó 2,57 m2
Nyitott terasz 20,65 m2
Hasznos alapterület összesen: 118,00 m2
BRUTTÓ BEÉPÍTETT ALAPTERÜLET: 151,65 m2
Gázcirkós fűtés, padlófűtéses hőleadókkal.
Műanyag három rétegű nyílászárók.
Saját autóbealló, nagy méretű telek!
Hívjon bizalommal! ...TOVÁBBI, TÖBBEZRES INGATLAN KÍNÁLAT: www.gdn-ingatlan.hu - GDN azonosító: 391699

Hirdetés feltöltve: 2026. 02. 10.

4 szobás családi házak ára Őrbottyánban

Ebből az összehasonlításból megtudhatod, hogyan viszonyul a lakás ára a környékbeli családi házak átlagos árához. Ez nem azt jelenti, hogy ennyivel olcsóbb vagy drágább, mint amennyit a lakás ér, hanem hogy ennyivel tér el a környékbeli átlagtól.

Ennek a m² ára
Őrbottyán m² ár
1058 e Ft
961 e Ft -10%
Ennek az ára
Őrbottyán átlagár
124.9 M Ft m Ft
101.9 m Ft -23%

Az ingatlan elhelyezkedése

Cím: Őrbottyán

Eladó családi házak a környékről

Eladó családi ház
Eladó családi ház

Dunakeszi

250 M Ft
4 szoba
180 m2
Eladó családi ház
Eladó családi ház

Őrbottyán

79.5 M Ft
3 szoba
113 m2
Eladó családi ház
Eladó családi ház

Tápiószentmárton

7.9 M Ft
2 + 1 szoba
86 m2
Eladó családi ház
Eladó családi ház

Őrbottyán

110 M Ft
4 szoba
106 m2
Eladó családi ház
Eladó családi ház

Tápiószele

45 M Ft
6 szoba
360 m2
Eladó családi ház
Eladó családi ház

Remeteszőlős

399.9 M Ft
5 + 2 szoba
260 m2
Eladó családi ház
Eladó családi ház

Őrbottyán

92.85 M Ft
4 szoba
84 m2
Eladó családi ház
Eladó családi ház

Őrbottyán

63 M Ft
4 szoba
157 m2
Eladó családi ház
Eladó családi ház

Budakeszi, Budakeszi kertváros

140 M Ft
2 szoba
55 m2
Eladó családi ház
Eladó családi ház

Kerepes

199 M Ft
6 szoba
360 m2
Eladó családi ház
Eladó családi ház

Kerepes

81.99 M Ft
5 szoba
102 m2
Eladó családi ház
Eladó családi ház

Őrbottyán

97.5 M Ft
4 szoba
115 m2
Eladó családi ház
Eladó családi ház

Őrbottyán

97.5 M Ft
4 szoba
94 m2
Eladó családi ház
Eladó családi ház

Őrbottyán

90.75 M Ft
4 szoba
93 m2
Eladó családi ház
Eladó családi ház

Tápiószele

18.9 M Ft
4 szoba
68 m2
Eladó családi ház
Eladó családi ház

Budakeszi, Budakeszi kertváros

229 M Ft
10 szoba
450 m2
Eladó családi ház
Eladó családi ház

Őrbottyán, Árpád utca

77 M Ft
5 szoba
230 m2
Eladó családi ház
Eladó családi ház

Őrbottyán

154 M Ft
4 + 1 szoba
115 m2
Eladó családi ház
Eladó családi ház

Őrbottyán

194.9 M Ft
7 szoba
231 m2
Eladó családi ház
Eladó családi ház

Őrbottyán

149.9 M Ft
4 szoba
120 m2
Eladó családi ház
Eladó családi ház

Őrbottyán

105 M Ft
4 szoba
102 m2
Eladó családi ház
Eladó családi ház

Tápiószentmárton

16.5 M Ft
3 szoba
50 m2
Eladó családi ház
Eladó családi ház

Érd, Érdliget - Kutyavár, Érd-liget

230 M Ft
7 szoba
280 m2
Eladó családi ház
Eladó családi ház

Tápiószele

32.9 M Ft
4 szoba
200 m2

Falusi CSOK ingatlanok

Eladó családi ház
Eladó családi ház

Tabdi

95 M Ft
45 szoba
1490 m2
Eladó családi ház
Eladó családi ház

Somogyszil

27.9 M Ft
3 szoba
140 m2
Eladó családi ház
Eladó családi ház

Tiszaroff

12.5 M Ft
2 szoba
63 m2
Eladó családi ház
Eladó családi ház

Gégény, Kossuth

15 M Ft
4 szoba
135 m2
Eladó családi ház
Eladó családi ház

Bozsok

290 M Ft
6 szoba
370 m2
Eladó családi ház
Eladó családi ház

Bugac

170 M Ft
187 m2
Eladó panellakás
Eladó panellakás

Pétfürdő

49.9 M Ft
3 szoba
71 m2
Eladó családi ház
Eladó családi ház

Zengővárkony

28 M Ft
3 szoba
87 m2