NapForrás 20 - Buda

Eladó családi ház
Nyíregyháza

+ 17 kép 1/20
90 900 000 Ft90.9 M Ft 578 981 Ft/m2
3 + 1 szoba
157 m2
építés éve:2008

Részletes adatok

Telekméret: 519 m2
Fűtés: Gázkazán
Parkolás: Garázs, Kocsibeálló
Közmű: Víz, Gáz, Villany, Csatorna
Energetikai besorolás: Nem adta meg a hirdető

Az OTP Bank lakáshitel ajánlataFizetett hirdetés

+36 70 698
Szőlősi Zsuzsanna Edina EV.
Szőlősi Zsuzsanna Edina EV.

Érdekel az OTP Bank kedvezményes lakáshitel ajánlata? *

* A kérdésre „Igen” válasz bejelölése esetén, az „Üzenet küldése” gombra kattintva kijelentem, hogy az OTP Bank Nyrt. Adatkezelési tájékoztatójának tartalmát megismertem és tudomásul vettem.

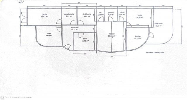
Eladó családi ház leírása

Nyíregyháza egyik legkedveltebb, PRÉMIUM LAKÓPARKJÁBAN, a MÖMAX MÖGÖTTI csendes, kertvárosias környezetben, mégis közel a belvároshoz, Sóstóhoz, iskolákhoz és bevásárlási lehetőségekhez, eladó egy 2008-ban épült, 157 m²-es ikerház, 519 m²-es telekkel.
FŐBB JELLEMZŐK:
ELOSZTÁS: előszoba, tágas amerikai konyhás nappali, étkező, 3,5 szoba, gardrób szoba, mosókonyha, fürdőszoba, külön WC, kamra, kb. 24 m²-es terasz, 18 m²-es garázs
FŰTÉS: kondenzációs gázkazán, padlófűtés + radiátor, valamint 3 éve beépített kandalló
FALAZAT: 30-as Porotherm tégla, 10 cm hőszigeteléssel
FÖDÉM: 30 cm kőzetgyapot szigeteléssel
TETŐ: nyeregtető, Bramac cserép
NYÍLÁSZÁRÓK: műanyag, hőszigetelt üvegezés, redőnnyel és rovarhálóval
TÁJOLÁS: kelet–nyugati
EXTRÁK:
-18 m²-es garázs elektromos kapuval + fedett kocsibeálló, ház előtt több autónak parkolási lehetőség
- körbekerített, elektromos kovácsoltvas kerítéssel ellátott térkövezett - parkosított udvar
-fúrt kút, filagória, kerti tároló
-kaputelefon és riasztórendszer

További információért és megtekintésért keressen bizalommal!


A HIRDETÉSBEN SZEREPLŐ SZÖVEG ÉS KÉPI ANYAG SZERZŐI JOGVÉDELEM ALATT ÁLL, AZOK ENGEDÉLY NÉLKÜLI FELHASZNÁLÁSA TILOS!

Hirdetés feltöltve: 2025. 12. 12. Utoljára módosítva: 2026. 01. 13.

4 szobás családi házak ára Nyíregyházán

Ebből az összehasonlításból megtudhatod, hogyan viszonyul a lakás ára a környékbeli családi házak átlagos árához. Ez nem azt jelenti, hogy ennyivel olcsóbb vagy drágább, mint amennyit a lakás ér, hanem hogy ennyivel tér el a környékbeli átlagtól.

Ennek a m² ára
Nyíregyháza m² ár
579 e Ft
647 e Ft 11%
Ennek az ára
Nyíregyháza átlagár
90.9 M Ft m Ft
100.5 m Ft 10%

Az ingatlan elhelyezkedése

Cím: Nyíregyháza

Eladó családi házak a környékről

Eladó családi ház
Eladó családi ház

Nyíregyháza

90 M Ft
3 szoba
170 m2
Eladó családi ház
Eladó családi ház

Napkor

49.8 M Ft
4 szoba
253 m2
Eladó családi ház
Eladó családi ház

Nyíregyháza

98 M Ft
4 szoba
125 m2
Eladó családi ház
Eladó családi ház

Nyíregyháza

82 M Ft
4 szoba
140 m2
Eladó családi ház
Eladó családi ház

Nyíregyháza

250 M Ft
4 szoba
440 m2
Eladó családi ház
Eladó családi ház

Nyíregyháza

92.8 M Ft
5 szoba
240 m2
Eladó családi ház
Eladó családi ház

Nyíregyháza

140 M Ft
3 szoba
168 m2
Eladó családi ház
Eladó családi ház

Nyíregyháza

250 M Ft
3 szoba
440 m2
Eladó családi ház
Eladó családi ház

Nyíregyháza

62 M Ft
4 szoba
140 m2
Eladó családi ház
Eladó családi ház

Nyíregyháza

92 M Ft
3 szoba
161 m2
Eladó családi ház
Eladó családi ház

Nyíregyháza

85 M Ft
3 szoba
110 m2
Eladó családi ház
Eladó családi ház

Nyíregyháza

92 M Ft
3 szoba
161 m2
Eladó családi ház
Eladó családi ház

Nyíregyháza

75.9 M Ft
6 szoba
240 m2
Eladó családi ház
Eladó családi ház

Nyíregyháza

98 M Ft
4 szoba
125 m2
Eladó családi ház
Eladó családi ház

Nyíregyháza

90 M Ft
3 szoba
170 m2
Eladó családi ház
Eladó családi ház

Nyíregyháza

199.9 M Ft
6 szoba
500 m2
Eladó családi ház
Eladó családi ház

Nyíregyháza

190 M Ft
4 szoba
230 m2
Eladó családi ház
Eladó családi ház

Nyíregyháza

190 M Ft
4 szoba
230 m2
Eladó családi ház
Eladó családi ház

Nyíregyháza

150 M Ft
2 szoba
120 m2
Eladó családi ház
Eladó családi ház

Nyíregyháza

90 M Ft
5 szoba
210 m2
Eladó családi ház
Eladó családi ház

Nyíregyháza

240 M Ft
3 szoba
204 m2
Eladó családi ház
Eladó családi ház

Nyíregyháza

89.9 M Ft
5 szoba
274 m2
Eladó családi ház
Eladó családi ház

Nyíregyháza

150 M Ft
2 szoba
120 m2
Eladó családi ház
Eladó családi ház

Nyírtelek

130 M Ft
3 szoba
159 m2

Falusi CSOK ingatlanok

Eladó családi ház
Eladó családi ház

Alsóújlak

21.9 M Ft
2 szoba
78 m2
Eladó családi ház
Eladó családi ház

Pusztamonostor

22 M Ft
3 szoba
86 m2
Eladó családi ház
Eladó családi ház

Somogygeszti

38.6 M Ft
3 + 1 szoba
98 m2
Eladó családi ház
Eladó családi ház

Kétpó

14.9 M Ft
1 + 2 szoba
86 m2
Eladó családi ház
Eladó családi ház

Palkonya

137 M Ft
6 szoba
160 m2
Eladó családi ház
Eladó családi ház

Telekgerendás

35 M Ft
2 + 1 szoba
95 m2
Eladó családi ház
Eladó családi ház

Tárkány

35 M Ft
2 szoba
72 m2
Eladó családi ház
Eladó családi ház

Szőlősgyörök

85 M Ft
6 szoba
243 m2