Aerogate Homes

Eladó családi ház
Naszály, Jókai utca 3

+ 12 kép 1/15
35 000 000 Ft35 M Ft 636 364 Ft/m2
2 szoba
55 m²
építés éve:1960

Részletes adatok

Állapot: Felújítandó
Telekméret: 1100 m2
Fűtés: Gázkonvektor, Egyéb
Kilátás: Udvari, Utcai
Parkolás: Kocsibeálló
Közmű: Víz, Gáz, Villany, Csatorna
Övezet: Lakóövezet
Energetikai besorolás: I

Az OTP Bank lakáshitel ajánlataFizetett hirdetés

+36 30 212

KOVACS MONIKA
magánszemély

Érdekel az OTP Bank kedvezményes lakáshitel ajánlata? *

* A kérdésre „Igen” válasz bejelölése esetén, az „Üzenet küldése” gombra kattintva kijelentem, hogy az OTP Bank Nyrt. Adatkezelési tájékoztatójának tartalmát megismertem és tudomásul vettem.

Eladó családi ház leírása

Komárom-Esztergom vármegyében, Naszály nyugodt részén könnyen megközelíthető elhelyezkedéssel tulajdonostól kínálunk megvételre egy 55 nm-es, két tágas külön szobával rendelkező családi házat, amely kitűnő választás lehet azok számára, akik saját elképzeléseik szerint szeretnék megvalósítani álmaik otthonát.

Azoknak ajánljuk, akik csendes, vidéki környezetben szeretnének élni, de fontos számukra a jó megközelíthetőség is.

A csendes, rendezett falu megfelelő választás azoknak is, akik nyugalomra, tiszta levegőre és természetközeli életre vágynak.

Naszály Tatától mindössze kb. 10 km, Tatabányától kb. 20 km, Komáromtól kb. 12 km távolságra található. A megyeszékhely gyorsan elérhető autóval és tömegközlekedéssel is.

A településen óvoda és általános iskola is működik, így a mindennapi élet kényelmesen megoldható helyben. Ipartelepek, több álláslehetőség, gyógyfürdő a közelben.



Az új otthon az, ahol elkezdődhet a következő fejezet!

A víz- és elektromos hálózat még az eredeti, amely a későbbi korszerűsítés lehetőségét az új tulajdonos igényei szerint biztosítja.

A fűtésről gázkonvektor és vegyes tüzelésű cserépkályha gondoskodik, a melegvíz ellátását gázbojler biztosítja.

A kertben gyümölcsfák teremnek, a fúrt kútból pedig öntözhet, ha saját veteményest szeretne kialakítani – vagy egyszerűen csak jó érzés tudni, hogy van saját vize.

A kert kiváló lehetőséget kínál kertészkedésre, pihenőkert kialakítására vagy akár kisebb gazdálkodásra is.



A ház felújítandó állapotú, így új tulajdonosa teljes mértékben a saját ízlésére formálhatja, legyen szó modern vagy klasszikus stílusról. Remek alap azok számára, akik értéket látnak a felújításban és egyedi otthont szeretnének kialakítani.

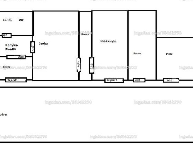
A telken található egy kb. 20 m²-es melléképület, amely műhelyként, tárolóként vagy gazdasági épületként is jól hasznosítható.

A melléképület alatt 5 m²-es pince helyezkedik el, amely további tárolási lehetőséget biztosít.



Főbb jellemzők:

- 65 nm hasznos alapterület

- vegyes falazat: kő + tégla

-fa födémes

- a tető cserépborítású

-összközműves (víz, elektromos áram, gáz, szennyvíz)

-fűtés gáz konvektor és vegyes tüzelésű cserépkályha

-előszoba/pitvar

- 2 tágas szoba

- konyha, fürdőszoba, wc,



Ez az ingatlan kiváló lehetőség mind családoknak, mind befektetőknek, akik hosszú távon gondolkodnak.



Ha szeretne olyan helyen élni, ahol reggel madárcsicsergésre ébred, ahol van tér levegőt venni, és ahol gyermeke szabadon játszhat a kertben, akkor érdemes ezt a házat személyesen is megnézni.

Irányár: 35 000 000 Ft



Hívjon bátran, és egyeztessünk időpontot! Ez lehet az Ön új otthona.

Telefonszám: +36308809870

Email cím: nikainformacioskozpont@gmail.com

Hirdetés feltöltve: 2026. 03. 14. Utoljára módosítva: 2026. 03. 30.

2 szobás családi házak ára Naszályon

Ebből az összehasonlításból megtudhatod, hogyan viszonyul a lakás ára a környékbeli családi házak átlagos árához. Ez nem azt jelenti, hogy ennyivel olcsóbb vagy drágább, mint amennyit a lakás ér, hanem hogy ennyivel tér el a környékbeli átlagtól.

Ennek a m² ára
Naszály m² ár
636 e Ft
222 e Ft -187%
Ennek az ára
Naszály átlagár
35 M Ft m Ft
26.1 m Ft -34%

Az ingatlan elhelyezkedése

Cím: Naszály, Jókai utca 3

Eladó ingatlanok a környékről

Tata
Eladó családi ház

Tata

150 M Ft
8 szoba
207 m²
Naszály, Ady Endre utca
Eladó családi ház

Naszály

19.99 M Ft
2 szoba
58 m²
Kesztölc, Nincs utca
Eladó telek

Kesztölc

48 M Ft
5316 m²
Esztergom
Eladó családi ház

Esztergom

128 M Ft
6 szoba
240 m²
Tatabánya
Eladó családi ház

Tatabánya

132 M Ft
5 szoba
180 m²
Nyergesújfalu
Eladó telek

Nyergesújfalu

8.5 M Ft
306 m²
0 m²
Oroszlány
Eladó családi ház

Oroszlány

360 M Ft
27 szoba
478 m²
Tárkány
Eladó családi ház

Tárkány

5.9 M Ft
3 szoba
74 m²
Tatabánya
Eladó panellakás

Tatabánya

31.5 M Ft
1 + 1 szoba
35 m²
Környe
Eladó családi ház

Környe

119 M Ft
5 szoba
104 m²
Dorog
Eladó üzlethelyiség

Dorog

56.5 M Ft
1 + 1 szoba
61 m²
Tata
Eladó családi ház

Tata

177.5 M Ft
4 szoba
144 m²
Almásfüzitő
Eladó téglalakás

Almásfüzitő

58 M Ft
3 szoba
83 m²
Nyergesújfalu
Eladó téglalakás

Nyergesújfalu

34.9 M Ft
2 szoba
53 m²
Esztergom, Csonka utca
Eladó ipari ingatlan

Esztergom

770 M Ft
1400 m²
Naszály
Eladó családi ház

Naszály

55 M Ft
3 + 1 szoba
165 m²
Tatabánya
Eladó garázs

Tatabánya

11.8 M Ft
19 m²
Tata
Eladó telek

Tata

100 M Ft
5987 m²
0 m²
Oroszlány
Eladó családi ház

Oroszlány

55.99 M Ft
5 szoba
163 m²
Tatabánya
Eladó panellakás

Tatabánya

49.99 M Ft
4 szoba
68 m²
Tatabánya
Eladó téglalakás

Tatabánya

34.9 M Ft
2 szoba
49 m²
Naszály
Eladó családi ház

Naszály

42.9 M Ft
4 szoba
111 m²
Dunaalmás
Eladó családi ház

Dunaalmás

69.9 M Ft
6 szoba
195 m²
Esztergom
Eladó családi ház

Esztergom

119 M Ft
4 szoba
140 m²

Falusi CSOK ingatlanok

Bodajk
Eladó ikerház

Bodajk

67.9 M Ft
5 szoba
90 m²
Bősárkány
Eladó családi ház

Bősárkány

60 M Ft
4 szoba
107 m²
Bogács
Eladó családi ház

Bogács

64.95 M Ft
7 szoba
125 m²
Gönyű
Eladó családi ház

Gönyű

111.951 M Ft
5 szoba
105 m²
Szentmártonkáta
Eladó családi ház

Szentmártonkáta

95 M Ft
5 + 1 szoba
152 m²
Kadarkút
Eladó családi ház

Kadarkút

27.8 M Ft
4 szoba
109 m²
Nagykarácsony
Eladó családi ház

Nagykarácsony

34.9 M Ft
3 szoba
112 m²
Újlengyel
Eladó családi ház

Újlengyel

110 M Ft
4 szoba
121 m²