Seven Pearl

Eladó családi ház
Napkor

Figyelem!

Ez az ingatlan a 2019.07.01-től induló falusi CSOK által támogatott településen található

+ 17 kép 1/20
55 900 000 Ft55.9 M Ft 447 200 Ft/m2
2 + 1 szoba
125 m2
építés éve:1942

Részletes adatok

Telekméret: 5900 m2
Fűtés: Gázkazán
Energetikai besorolás: Nem adta meg a hirdető

Az OTP Bank lakáshitel ajánlataFizetett hirdetés

+36 30 598
Szivák Andrea
OTPip - Nyíregyháza Sólyom utca 4 - OTP Ingatlanpont Iroda

Érdekel az OTP Bank kedvezményes lakáshitel ajánlata? *

* A kérdésre „Igen” válasz bejelölése esetén, az „Üzenet küldése” gombra kattintva kijelentem, hogy az OTP Bank Nyrt. Adatkezelési tájékoztatójának tartalmát megismertem és tudomásul vettem.

Eladó családi ház leírása

Tágas családi ház hatalmas telekkel és gazdag lehetőségekkel Napkoron.

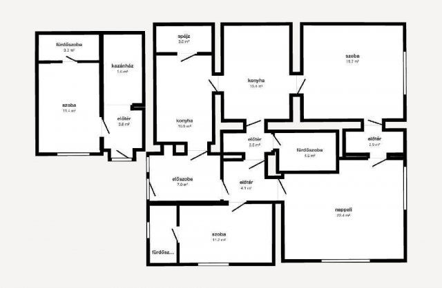
Eladó Napkoron egy 125 nm-es, folyamatosan karbantartott családi ház, amely igazi sokoldalúságot kínál új tulajdonosának. A ház vegyes falazattal épült: a stabil vályogfalhoz később téglaépítésű, szigetelt rész csatlakozott, amely így kényelmes és praktikus otthont biztosít.

Az ingatlan belső tere átgondolt és élhető:
2 hálószoba + nappali - ideális családoknak,
tágas konyha étkezővel és spájzzal,
2 fürdőszoba, ami növeli a kényelmet.
Fűtés: gázcirkó + lemez radiátorok biztosítják az otthon melegét.
Külön bejárattal rendelkező lakrész (szoba, konyha, fürdő) - kiváló lehetőség akár irodának, nagyszülői lakrésznek vagy kiadásra.

A házhoz tartozik még:
18 nm-es garázs,
üvegház- amely ideális saját termesztéshez,
nyári konyha konténerházból kialakítva,
egyéb kerti tároló, pince.

Az udvaron egy 2 férőhelyes kutyakennel is ki van alakítva, így négylábú kedvencek számára is tökéletes otthon.

Gondozott, 5228 nm-es telek, termő gyümölcsfákkal beültetve - egy valódi kis birodalom!

Ez az ingatlan tökéletes választás azoknak, akik szeretnének nagy telekkel rendelkező, jól karbantartott családi házba költözni, ahol a vidéki nyugalom és az önellátás lehetősége kéz a kézben jár a kényelmes otthonérzettel.
További kérdéseivel vagy megtekintéssel kapcsolatban keressen bizalommal, akár hétvégén is! Kedvezményes kamatozású lakásvásárlási és felújítási hitelek, valamint CSOK és Babaváró ügyintézés az OTP hátterével irodánkban.
Referenciaszám: M312890

Hirdetés feltöltve: 2025. 11. 09. Utoljára módosítva: 2025. 11. 18.

3 szobás családi házak ára Napkoron

Ebből az összehasonlításból megtudhatod, hogyan viszonyul a lakás ára a környékbeli családi házak átlagos árához. Ez nem azt jelenti, hogy ennyivel olcsóbb vagy drágább, mint amennyit a lakás ér, hanem hogy ennyivel tér el a környékbeli átlagtól.

Ennek a m² ára
Napkor m² ár
447 e Ft
330 e Ft -35%
Ennek az ára
Napkor átlagár
55.9 M Ft m Ft
31.1 m Ft -80%

Az ingatlan elhelyezkedése

Cím: Napkor

Eladó családi házak a környékről

Eladó családi ház
Eladó családi ház

Nyíregyháza

199.9 M Ft
6 szoba
500 m2
Eladó családi ház
Eladó családi ház

Nyíregyháza

89.9 M Ft
5 szoba
274 m2
Eladó családi ház
Eladó családi ház

Nyírtelek

68.9 M Ft
12 szoba
440 m2
Eladó családi ház
Eladó családi ház

Napkor

115 M Ft
5 szoba
292 m2
Eladó családi ház
Eladó családi ház

Nyíregyháza

92.8 M Ft
5 szoba
240 m2
Eladó családi ház
Eladó családi ház

Napkor

16.9 M Ft
3 szoba
60 m2
Eladó családi ház
Eladó családi ház

Nyíregyháza

44.9 M Ft
1 szoba
51 m2
Eladó családi ház
Eladó családi ház

Napkor

31.9 M Ft
3 szoba
95 m2
Eladó családi ház
Eladó családi ház

Napkor

35.7 M Ft
3 szoba
95 m2
Eladó családi ház
Eladó családi ház

Nyíregyháza

87 M Ft
5 szoba
210 m2
Eladó családi ház
Eladó családi ház

Nyíregyháza

60 M Ft
3 szoba
100 m2
Eladó családi ház
Eladó családi ház

Napkor

3.9 M Ft
3 szoba
70 m2
Eladó családi ház
Eladó családi ház

Nyíregyháza

62 M Ft
4 szoba
140 m2
Eladó családi ház
Eladó családi ház

Nyíregyháza

190 M Ft
4 szoba
230 m2
Eladó családi ház
Eladó családi ház

Napkor

20.8 M Ft
3 szoba
65 m2
Eladó családi ház
Eladó családi ház

Napkor

49.8 M Ft
4 szoba
253 m2
Eladó családi ház
Eladó családi ház

Napkor

20.8 M Ft
3 szoba
65 m2
Eladó családi ház
Eladó családi ház

Nyíregyháza

92 M Ft
3 szoba
161 m2
Eladó családi ház
Eladó családi ház

Nyíregyháza

250 M Ft
4 szoba
440 m2
Eladó családi ház
Eladó családi ház

Nyíregyháza

68 M Ft
4 szoba
220 m2
Eladó családi ház
Eladó családi ház

Napkor, Kinizsi utca

2.94 M Ft
3 szoba
70 m2
Eladó családi ház
Eladó családi ház

Napkor

48.9 M Ft
3 szoba
93 m2
Eladó családi ház
Eladó családi ház

Napkor

20.8 M Ft
3 szoba
65 m2
Eladó családi ház
Eladó családi ház

Nyíregyháza

75.9 M Ft
6 szoba
240 m2

Falusi CSOK ingatlanok

Eladó családi ház
Eladó családi ház

Balatonfenyves

119 M Ft
5 szoba
142 m2
Eladó családi ház
Eladó családi ház

Mikepércs

59.99 M Ft
4 szoba
81 m2
Eladó családi ház
Eladó családi ház

Jakabszállás

69.99 M Ft
1 + 4 szoba
91 m2
Eladó családi ház
Eladó családi ház

Harsány

14.999 M Ft
4 szoba
80 m2
Eladó családi ház
Eladó családi ház

Balatonszárszó

185 M Ft
6 szoba
260 m2
Eladó családi ház
Eladó családi ház

Ónod, Barátság 9

31.999 M Ft
3 szoba
150 m2
Eladó családi ház
Eladó családi ház

Csemő, Vasút dűlő

20.9 M Ft
3 szoba
68 m2
Eladó családi ház
Eladó családi ház

Seregélyes

75 M Ft
6 szoba
160 m2

Falusi CSOK ingatlanok

Eladó családi ház
Eladó családi ház

Szarvaskend

26.9 M Ft
2 szoba
83 m2
Eladó családi ház
Eladó családi ház

Pannonhalma

76.4 M Ft
4 szoba
97 m2
Eladó családi ház
Eladó családi ház

Balatonfenyves

430 M Ft
4 szoba
274 m2
Eladó családi ház
Eladó családi ház

Ceglédbercel, Iskola utca

89.99 M Ft
5 szoba
110 m2
Eladó családi ház
Eladó családi ház

Segesd

14.3 M Ft
3 szoba
100 m2
Eladó családi ház
Eladó családi ház

Tápiógyörgye

32 M Ft
3 szoba
86 m2
Eladó családi ház
Eladó családi ház

Ősi

55 M Ft
3 szoba
74 m2
Eladó családi ház
Eladó családi ház

Kaposgyarmat

695 M Ft
6 szoba
610 m2