Aerogate Homes

Eladó családi ház
Napkor

Figyelem!

Ez az ingatlan a 2019.07.01-től induló falusi CSOK által támogatott településen található

+ 17 kép 1/20
55 900 000 Ft55.9 M Ft 447 200 Ft/m2
2 + 1 szoba
125 m2
építés éve:1942

Részletes adatok

Állapot: Átlagos
Telekméret: 5900 m2
Fűtés: Gázkazán
Energetikai besorolás: Nem adta meg a hirdető

Az OTP Bank lakáshitel ajánlataFizetett hirdetés

+36 20 940
Lipcseiné Kozák Judit
OTP Ingatlanpont Kft.

Érdekel az OTP Bank kedvezményes lakáshitel ajánlata? *

* A kérdésre „Igen” válasz bejelölése esetén, az „Üzenet küldése” gombra kattintva kijelentem, hogy az OTP Bank Nyrt. Adatkezelési tájékoztatójának tartalmát megismertem és tudomásul vettem.

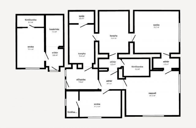
Eladó családi ház leírása

Tágas családi ház hatalmas telekkel és gazdag lehetőségekkel Napkoron.

Eladó Napkoron egy 125 nm-es, folyamatosan karbantartott családi ház, amely igazi sokoldalúságot kínál új tulajdonosának. A ház vegyes falazattal épült: a stabil vályogfalhoz később téglaépítésű, szigetelt rész csatlakozott, amely így kényelmes és praktikus otthont biztosít.

Az ingatlan belső tere átgondolt és élhető:
2 hálószoba + nappali - ideális családoknak,
tágas konyha étkezővel és spájzzal,
2 fürdőszoba, ami növeli a kényelmet.
Fűtés: gázcirkó + lemez radiátorok biztosítják az otthon melegét.
Külön bejárattal rendelkező lakrész (szoba, konyha, fürdő) - kiváló lehetőség akár irodának, nagyszülői lakrésznek vagy kiadásra.

A házhoz tartozik még:
18 nm-es garázs,
üvegház- amely ideális saját termesztéshez,
nyári konyha konténerházból kialakítva,
egyéb kerti tároló, pince.

Az udvaron egy 2 férőhelyes kutyakennel is ki van alakítva, így négylábú kedvencek számára is tökéletes otthon.

Gondozott, 5228 nm-es telek, termő gyümölcsfákkal beültetve - egy valódi kis birodalom!

Ez az ingatlan tökéletes választás azoknak, akik szeretnének nagy telekkel rendelkező, jól karbantartott családi házba költözni, ahol a vidéki nyugalom és az önellátás lehetősége kéz a kézben jár a kényelmes otthonérzettel.

Ha felkeltette érdeklődését, hívjon bizalommal és egyeztessünk időpontot a megtekintésre!

OTP Banki hátterünknek köszönhetően finanszírozási igényekben (pl. Otthon Start Hitelprogram , Babaváró, Falusi CSOK, CSOK Plusz, Lakáshitel, Személyi kölcsön stb.), illetve biztosítások tekintetében is díjmentesen, soron kívüli ügyintézéssel segítem ügyfeleim! Referenciaszám: M312890

Hirdetés feltöltve: 2025. 09. 27. Utoljára módosítva: 2025. 11. 02.

3 szobás családi házak ára Napkoron

Ebből az összehasonlításból megtudhatod, hogyan viszonyul a lakás ára a környékbeli családi házak átlagos árához. Ez nem azt jelenti, hogy ennyivel olcsóbb vagy drágább, mint amennyit a lakás ér, hanem hogy ennyivel tér el a környékbeli átlagtól.

Ennek a m² ára
Napkor m² ár
447 e Ft
310 e Ft -44%
Ennek az ára
Napkor átlagár
55.9 M Ft m Ft
26.3 m Ft -113%

Az ingatlan elhelyezkedése

Cím: Napkor

Eladó családi házak a környékről

Eladó családi ház
Eladó családi ház

Nyíregyháza

199.9 M Ft
6 szoba
500 m2
Eladó családi ház
Eladó családi ház

Napkor

115 M Ft
5 szoba
292 m2
Eladó családi ház
Eladó családi ház

Nyíregyháza

22.9 M Ft
2 szoba
90 m2
Eladó családi ház
Eladó családi ház

Napkor

48.9 M Ft
3 szoba
93 m2
Eladó családi ház
Eladó családi ház

Nyíregyháza

92 M Ft
3 szoba
161 m2
Eladó családi ház
Eladó családi ház

Nyíregyháza

87 M Ft
5 szoba
210 m2
Eladó családi ház
Eladó családi ház

Nyíregyháza

89.9 M Ft
5 szoba
274 m2
Eladó családi ház
Eladó családi ház

Napkor

20.8 M Ft
3 szoba
65 m2
Eladó családi ház
Eladó családi ház

Nyíregyháza

46 M Ft
3 + 1 szoba
140 m2
Eladó családi ház
Eladó családi ház

Napkor

55 M Ft
5 szoba
180 m2
Eladó családi ház
Eladó családi ház

Napkor

21.8 M Ft
2 szoba
62 m2
Eladó családi ház
Eladó családi ház

Nyírtelek

68.9 M Ft
12 szoba
440 m2
Eladó családi ház
Eladó családi ház

Nyíregyháza

79 M Ft
5 szoba
126 m2
Eladó családi ház
Eladó családi ház

Napkor

22.8 M Ft
3 szoba
62 m2
Eladó családi ház
Eladó családi ház

Nyíregyháza

44.9 M Ft
1 szoba
51 m2
Eladó családi ház
Eladó családi ház

Napkor

20.8 M Ft
3 szoba
65 m2
Eladó családi ház
Eladó családi ház

Napkor

38.8 M Ft
2 szoba
71 m2
Eladó családi ház
Eladó családi ház

Napkor

20.8 M Ft
3 szoba
65 m2
Eladó családi ház
Eladó családi ház

Napkor

19.5 M Ft
3 szoba
120 m2
Eladó családi ház
Eladó családi ház

Napkor

20.8 M Ft
3 szoba
65 m2
Eladó családi ház
Eladó családi ház

Nyíregyháza

60 M Ft
3 szoba
100 m2
Eladó családi ház
Eladó családi ház

Nyíregyháza

250 M Ft
4 szoba
440 m2
Eladó családi ház
Eladó családi ház

Napkor

49.8 M Ft
5 szoba
225 m2
Eladó családi ház
Eladó családi ház

Nyírtelek

10.9 M Ft
2 szoba
55 m2

Falusi CSOK ingatlanok

Eladó családi ház
Eladó családi ház

Tass

55 M Ft
2 + 1 szoba
65 m2
Eladó családi ház
Eladó családi ház

Békésszentandrás

23 M Ft
4 szoba
99 m2
Eladó téglalakás
Eladó téglalakás

Balatonszemes

244.5 M Ft
3 szoba
107 m2
Eladó családi ház
Eladó családi ház

Katymár

6.7 M Ft
4 szoba
136 m2
Eladó családi ház
Eladó családi ház

Magyarszék

48.5 M Ft
3 + 1 szoba
86 m2
Eladó családi ház
Eladó családi ház

Vág

15 M Ft
2 szoba
85 m2
Eladó családi ház
Eladó családi ház

Bugac

69.9 M Ft
4 szoba
130 m2
Eladó családi ház
Eladó családi ház

Lulla

45 M Ft
3 szoba
90 m2

Falusi CSOK ingatlanok

Eladó családi ház
Eladó családi ház

Cece

23.5 M Ft
2 szoba
56 m2
Eladó családi ház
Eladó családi ház

Tabdi

95 M Ft
45 szoba
1490 m2
Eladó családi ház
Eladó családi ház

Kaposgyarmat

695 M Ft
6 szoba
610 m2
Eladó családi ház
Eladó családi ház

Geresdlak

44.9 M Ft
4 + 1 szoba
200 m2
Eladó családi ház
Eladó családi ház

Törtel

14 M Ft
3 + 2 szoba
55 m2
Eladó családi ház
Eladó családi ház

Pécsely, Szőlő Dülő

499 M Ft
4 + 2 szoba
183 m2
Eladó családi ház
Eladó családi ház

Hajdúbagos

69.9 M Ft
5 szoba
230 m2
Eladó családi ház
Eladó családi ház

Nemesszentandrás

75 M Ft
4 szoba
164 m2