Eladó családi ház
Napkor

Figyelem!

Ez az ingatlan a 2019.07.01-től induló falusi CSOK által támogatott településen található

+ 17 kép 1/20
55 900 000 Ft55.9 M Ft 447 200 Ft/m2
2 + 1 szoba
125 m2
építés éve:1942

Részletes adatok

Telekméret: 5900 m2
Fűtés: Gázkazán
Energetikai besorolás: Nem adta meg a hirdető

Az OTP Bank lakáshitel ajánlataFizetett hirdetés

+36 30 224
Kádárné Szkita Enikő
referens

Érdekel az OTP Bank kedvezményes lakáshitel ajánlata? *

* A kérdésre „Igen” válasz bejelölése esetén, az „Üzenet küldése” gombra kattintva kijelentem, hogy az OTP Bank Nyrt. Adatkezelési tájékoztatójának tartalmát megismertem és tudomásul vettem.

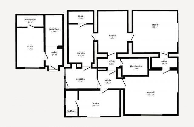
Eladó családi ház leírása

Tágas családi ház hatalmas telekkel és gazdag lehetőségekkel Napkoron.

Eladó Napkoron egy 125 nm-es, folyamatosan karbantartott családi ház, amely igazi sokoldalúságot kínál új tulajdonosának. A ház vegyes falazattal épült: a stabil vályogfalhoz később téglaépítésű, szigetelt rész csatlakozott, amely így kényelmes és praktikus otthont biztosít.

Az ingatlan belső tere átgondolt és élhető:
2 hálószoba + nappali - ideális családoknak,
tágas konyha étkezővel és spájzzal,
2 fürdőszoba, ami növeli a kényelmet.
Fűtés: gázcirkó + lemez radiátorok biztosítják az otthon melegét.
Külön bejárattal rendelkező lakrész (szoba, konyha, fürdő) - kiváló lehetőség akár irodának, nagyszülői lakrésznek vagy kiadásra.

A házhoz tartozik még:
18 nm-es garázs,
üvegház- amely ideális saját termesztéshez,
nyári konyha konténerházból kialakítva,
egyéb kerti tároló, pince.

Az udvaron egy 2 férőhelyes kutyakennel is ki van alakítva, így négylábú kedvencek számára is tökéletes otthon.

Gondozott, 5228 nm-es telek, termő gyümölcsfákkal beültetve - egy valódi kis birodalom!

Ez az ingatlan tökéletes választás azoknak, akik szeretnének nagy telekkel rendelkező, jól karbantartott családi házba költözni, ahol a vidéki nyugalom és az önellátás lehetősége kéz a kézben jár a kényelmes otthonérzettel.

Ha felkeltette érdeklődését, hívjon bizalommal és egyeztessünk időpontot a megtekintésre!

OTP Banki hátterünknek köszönhetően finanszírozási igényekben (pl. Otthon Start Hitelprogram , Babaváró, Falusi CSOK, CSOK Plusz, Lakáshitel, Személyi kölcsön stb.), illetve biztosítások tekintetében is díjmentesen, soron kívüli ügyintézéssel segítem ügyfeleim! Referenciaszám: M312890

Referencia szám: M312890-ZE

Hirdetés feltöltve: 2025. 10. 20. Utoljára módosítva: 2025. 10. 20.

3 szobás családi házak ára Napkoron

Ebből az összehasonlításból megtudhatod, hogyan viszonyul a lakás ára a környékbeli családi házak átlagos árához. Ez nem azt jelenti, hogy ennyivel olcsóbb vagy drágább, mint amennyit a lakás ér, hanem hogy ennyivel tér el a környékbeli átlagtól.

Ennek a m² ára
Napkor m² ár
447 e Ft
290 e Ft -54%
Ennek az ára
Napkor átlagár
55.9 M Ft m Ft
24.1 m Ft -132%

Az ingatlan elhelyezkedése

Cím: Napkor

Eladó családi házak a környékről

Eladó családi ház
Eladó családi ház

Napkor

55 M Ft
5 szoba
180 m2
Eladó családi ház
Eladó családi ház

Napkor

31.9 M Ft
3 szoba
95 m2
Eladó családi ház
Eladó családi ház

Napkor

19.5 M Ft
3 szoba
120 m2
Eladó családi ház
Eladó családi ház

Napkor

16.9 M Ft
3 szoba
60 m2
Eladó családi ház
Eladó családi ház

Nyíregyháza

44.9 M Ft
1 szoba
51 m2
Eladó családi ház
Eladó családi ház

Újfehértó

22.9 M Ft
2 szoba
60 m2
Eladó családi ház
Eladó családi ház

Nyíregyháza

89.9 M Ft
5 szoba
274 m2
Eladó családi ház
Eladó családi ház

Nyíregyháza

92.8 M Ft
5 szoba
240 m2
Eladó családi ház
Eladó családi ház

Nyíregyháza

22.9 M Ft
2 szoba
90 m2
Eladó családi ház
Eladó családi ház

Nyíregyháza

60 M Ft
3 szoba
100 m2
Eladó családi ház
Eladó családi ház

Napkor

49.8 M Ft
4 szoba
253 m2
Eladó családi ház
Eladó családi ház

Napkor

38.8 M Ft
2 szoba
71 m2
Eladó családi ház
Eladó családi ház

Napkor

22.8 M Ft
3 szoba
65 m2
Eladó családi ház
Eladó családi ház

Napkor

22.8 M Ft
3 szoba
65 m2
Eladó családi ház
Eladó családi ház

Nyírtelek

68.9 M Ft
12 szoba
440 m2
Eladó családi ház
Eladó családi ház

Napkor, Kinizsi utca

2.94 M Ft
3 szoba
70 m2
Eladó családi ház
Eladó családi ház

Nyíregyháza

199.9 M Ft
6 szoba
500 m2
Eladó családi ház
Eladó családi ház

Napkor

21.8 M Ft
2 szoba
62 m2
Eladó családi ház
Eladó családi ház

Nyíregyháza

62 M Ft
4 szoba
140 m2
Eladó családi ház
Eladó családi ház

Napkor

21 M Ft
2 szoba
65 m2
Eladó családi ház
Eladó családi ház

Napkor

3.9 M Ft
3 szoba
70 m2
Eladó családi ház
Eladó családi ház

Napkor

35.7 M Ft
3 szoba
95 m2
Eladó családi ház
Eladó családi ház

Nyíregyháza

87 M Ft
5 szoba
210 m2
Eladó családi ház
Eladó családi ház

Napkor

48.9 M Ft
3 szoba
93 m2

Falusi CSOK ingatlanok

Eladó családi ház
Eladó családi ház

Sárosd

22.5 M Ft
3 szoba
61 m2
Eladó családi ház
Eladó családi ház

Nemeskeresztúr, Petőfi utca 22

6.85 M Ft
1 + 1 szoba
99 m2
Eladó családi ház
Eladó családi ház

Mágocs, Ady Endre utca 86

7.9 M Ft
4 szoba
128 m2
Eladó családi ház
Eladó családi ház

Dióskál

22.9 M Ft
2 szoba
102 m2
Eladó téglalakás
Eladó téglalakás

Lovászi, Lakótelep

14.9 M Ft
2 szoba
50 m2
Eladó családi ház
Eladó családi ház

Rém

10.5 M Ft
3 szoba
105 m2
Eladó családi ház
Eladó családi ház

Szőke

67.99 M Ft
3 szoba
160 m2
Eladó téglalakás
Eladó téglalakás

Hegyeshalom

35 M Ft
43 m2

Falusi CSOK ingatlanok

Eladó családi ház
Eladó családi ház

Törtel

32 M Ft
2 szoba
67 m2
Eladó családi ház
Eladó családi ház

Nagybaracska

28.2 M Ft
3 szoba
100 m2
Eladó családi ház
Eladó családi ház

Vitnyéd, Petőfi Sándor utca 3

16.71 M Ft
1 + 1 szoba
99 m2
Eladó családi ház
Eladó családi ház

Nyékládháza

45 M Ft
3 szoba
90 m2
Eladó családi ház
Eladó családi ház

Tök

96.2 M Ft
4 szoba
104 m2
Eladó családi ház
Eladó családi ház

Litke, Dózsa György út 86

10.55 M Ft
3 szoba
139 m2
Eladó családi ház
Eladó családi ház

Tésenfa, Kossuth utca 23/a

5.55 M Ft
1 + 1 szoba
109 m2
Eladó családi ház
Eladó családi ház

Mágocs, Ady Endre utca 86

7.9 M Ft
4 szoba
128 m2