Astora Art House

Eladó családi ház
Miskolc

+ 12 kép 1/15
44 900 000 Ft44.9 M Ft 359 200 Ft/m2
5 szoba
125 m²
építés éve:2010

Részletes adatok

Állapot: Felújítandó
Telekméret: 414 m2
Fűtés: Egyéb
Komfort: Összkomfortos
Energetikai besorolás: Nem adta meg a hirdető

Az OTP Bank lakáshitel ajánlataFizetett hirdetés

+36 30 432
Komáromi Tünde Éva
referens

Érdekel az OTP Bank kedvezményes lakáshitel ajánlata? *

* A kérdésre „Igen” válasz bejelölése esetén, az „Üzenet küldése” gombra kattintva kijelentem, hogy az OTP Bank Nyrt. Adatkezelési tájékoztatójának tartalmát megismertem és tudomásul vettem.

Eladó családi ház leírása

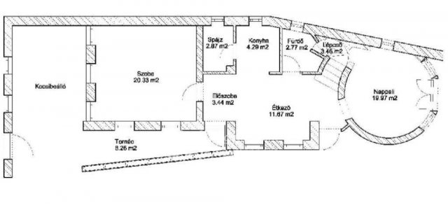
Eladó Miskolcon, Diósgyőr családi házas övezetében egy 125 nm-es, 2 szintes, tégla építésű családi ház 414 nm-es telken, a Diósgyőri vár közelében. Az ingatlan 2010-ben épült 2 ütemben, melyből a felső szint 80%-os készültséggel rendelkezik. Az épület terveit Miskolc város főépítésze, Rostás László készítette, mely magán viseli az erdélyi kultúra stílusjegyeit, szakrális jellemzőket, a hagyományos diósgyőri építészeti stílus tégla architektúrás kialakítását, a stabilitást és a részletekre való odafigyelést. Falazata vastag, hőszigetelt, nyílászárói fa szerkezetűek, szintén hőszigetelt kivitelben. Tetőzete cserép héjazatú. Az alsó szint felújítandó állapotú, ahol egy nagyszoba, nappali, konyha, fürdőszoba + wc, valamint a hátsó részben egy befejezendő nappali található. Az emeleten a készültségnek megfelelő nappali, szobák, fürdőszoba került kialakításra. A ház melegét jelenleg kályha biztosítja, de előkészítésre került a központi fűtés is, a hidegburkolatok alatt padlófűtéssel. A ház mögött szigetelt, könnyűszerkezetes melléképület található. Udvara megfelelő méretű, kerítése még nem kapta meg teljesen a ház stílusát. Víz, villany, csatorna bevezetve, gázcsonk a telken belül van. Amennyiben szeretne egy stílusos, igazán egyedi épületet, melyet saját igényére formálhat és szívesen megtekintené személyesen, kérem hívjon bizalommal! Az ingatlan az Otthon Start Hitelprogram - nak megfelel.

Hirdetés feltöltve: 2026. 03. 03. Utoljára módosítva: 2026. 05. 23.

5 szobás családi házak ára Miskolcon

Ebből az összehasonlításból megtudhatod, hogyan viszonyul a lakás ára a környékbeli családi házak átlagos árához. Ez nem azt jelenti, hogy ennyivel olcsóbb vagy drágább, mint amennyit a lakás ér, hanem hogy ennyivel tér el a környékbeli átlagtól.

Ennek a m² ára
Miskolc m² ár
359 e Ft
458 e Ft 22%
Ennek az ára
Miskolc átlagár
44.9 M Ft m Ft
107.8 m Ft 58%

Az ingatlan elhelyezkedése

Cím: Miskolc

Eladó családi házak a környékről

Miskolc
Eladó családi ház

Miskolc

69.9 M Ft
7 + 1 szoba
268 m²
Miskolc
Eladó családi ház

Miskolc

54.99 M Ft
4 szoba
103 m²
Miskolc
Eladó családi ház

Miskolc

25.9 M Ft
4 szoba
148 m²
Rudabánya
Eladó családi ház

Rudabánya

19.9 M Ft
5 szoba
140 m²
Miskolc
Eladó családi ház

Miskolc

340 M Ft
15 szoba
750 m²
Gönc
Eladó családi ház

Gönc

20.5 M Ft
2 szoba
80 m²
Miskolc
Eladó családi ház

Miskolc

149 M Ft
4 szoba
463 m²
Ózd
Eladó családi ház

Ózd

25.99 M Ft
4 szoba
198 m²
Sátoraljaújhely, Aradi vértanúk útja
Eladó családi ház

Sátoraljaújhely

57 M Ft
6 szoba
310 m²
Komlóska
Eladó családi ház

Komlóska

55.9 M Ft
7 szoba
247 m²
Miskolc
Eladó családi ház

Miskolc

118 M Ft
4 szoba
118 m²
Ózd
Eladó családi ház

Ózd

7.3 M Ft
3 szoba
125 m²
Ózd
Eladó családi ház

Ózd

26.5 M Ft
3 szoba
100 m²
Miskolc
Eladó családi ház

Miskolc

110 M Ft
6 szoba
199 m²
Miskolc
Eladó családi ház

Miskolc

25.9 M Ft
4 szoba
148 m²
Sajószentpéter, Petőfi Sándor utca
Eladó családi ház

Sajószentpéter

10.9 M Ft
3 szoba
54 m²
Miskolc
Eladó családi ház

Miskolc

25.9 M Ft
4 szoba
148 m²
Miskolc
Eladó családi ház

Miskolc

39.9 M Ft
5 szoba
151 m²
Miskolc
Eladó családi ház

Miskolc

25.9 M Ft
4 szoba
148 m²
Ózd
Eladó családi ház

Ózd

15 M Ft
7 szoba
225 m²
Miskolc, Avas Kelet városrész, Szilágyi Dezső
Eladó családi ház

Miskolc

147 M Ft
8 szoba
300 m²
Miskolc, Miskolc-Tapolca
Eladó családi ház

Miskolc

93.9 M Ft
11 szoba
320 m²
Miskolc
Eladó családi ház

Miskolc

110 M Ft
6 szoba
199 m²
Miskolc
Eladó családi ház

Miskolc

122 M Ft
6 + 1 szoba
200 m²

Falusi CSOK ingatlanok

Kaposgyarmat
Eladó családi ház

Kaposgyarmat

695 M Ft
6 szoba
610 m²
Újlengyel
Eladó családi ház

Újlengyel

75.9 M Ft
4 szoba
0 m²
Balatonszemes
Eladó téglalakás

Balatonszemes

91.5 M Ft
2 szoba
0 m²
Vid
Eladó családi ház

Vid

29.99 M Ft
4 szoba
100 m²
Örkény
Eladó családi ház

Örkény

24.9 M Ft
1 szoba
38 m²
Újlengyel
Eladó családi ház

Újlengyel

77.9 M Ft
4 szoba
0 m²
Ceglédbercel
Eladó családi ház

Ceglédbercel

67 M Ft
3 szoba
97 m²
Hegyeshalom, Margaréta utca 12
Eladó téglalakás

Hegyeshalom

35.92 M Ft
1 szoba
31 m²