NapForrás 20 - Buda

Eladó családi ház
Mezőberény

+ 17 kép 1/20
8 500 000 Ft8.5 M Ft 96 591 Ft/m2
3 szoba
88 m²
építés éve:1950

Részletes adatok

Állapot: Felújítandó
Telekméret: 596 m2
Fűtés: Egyéb
Parkolás: Kocsibeálló
Közmű: Víz, Villany, Szélessáv
Komfort: Komfortos
Energetikai besorolás: G

Az OTP Bank lakáshitel ajánlataFizetett hirdetés

Hitelösszeg 10 millió Ft
Futamidő 20 év
Induló törlesztőrészlet 67 508 Ft
Törlesztőrészlet a 13. hónaptól 86 071 Ft
THM 8,6 %

A tájékoztatás nem teljes körű és nem minősül ajánlattételnek. Az OTP Évnyerő Lakáshitelei 1 éves türelmi idős kölcsönök, amellyel az első 12 hónapban alacsonyabb a havi törlesztőrészlet. A tőke törlesztését a 13. hónaptól kell megkezdeni.

    Részletes kalkuláció
    +36 30 627
    Tóth Gabriella
    referens

    Érdekel az OTP Bank kedvezményes lakáshitel ajánlata? *

    * A kérdésre „Igen” válasz bejelölése esetén, az „Üzenet küldése” gombra kattintva kijelentem, hogy az OTP Bank Nyrt. Adatkezelési tájékoztatójának tartalmát megismertem és tudomásul vettem.

    Eladó családi ház leírása

    ÁRCSÖKKENÉS ! IR.ÁR: 8,5 M Ft

    Ez a kisvárosi családi ház Téged vár , ha nyugodt környezetben képzeled el az otthonod !
    A felújítástól nem félő fiataloknak , családosoknak ideális !
    Elhelyezkedés :
    Békés vármegye , Mezőberény , Oltványkert utca , a városközponttól autóval pár percre
    Közeli városok : Békéscsaba , M44-es autóút csatlakozás 23 km-re , Gyomaendrőd , Békés , Gyula 10-30 km közti távolságokra
    Ir.ár: 8,5 M Ft
    Mezőberény nyugodt , kellemes és jól ellátott alföldi kisváros , remek vasúti és buszközlekedéssel mind2 irányban , ami a munkába járást rendkívül időtakarékossá teszi . A településen minden megtalálható bölcsődétől a középiskoláig , bevásárlási lehetőségek, töltőállomás , szociális szolgálatok, rendelők , posta , pénzintézet , piac , szezonális strand , lovaglási lehetőség , könyvtár , hivatalok , szolgáltatók , éttermek , tüzép stb.
    Tavasztól-őszig évente számos rendezvény , esemény színesíti az itt élők hétköznapjait , Berény napok , káposztafesztivál , múzeumok éjszakája , könnyűzenei koncertek , tűzoltó gyermeknap , pünkösdi- adventi-húsvéti rendezvények , színházi előadások stb.
    Tulajdonságok , paraméterek :
    - 50-es években épült , vegyes falazattal , a folyosó beépítés és a fürdőszoba bővítés jóval később téglából történt
    - É-i tájolású , utcafrontra épült egy minden oldalán kerítéssel határolt 596 m2-es telekre
    - a kezelhető méretű porta az utcafronton új kapukkal került kialakításra
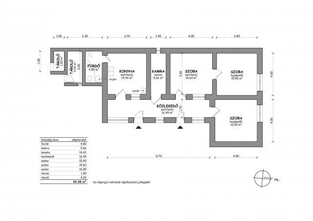
    - a 88.4 m2-es lakórészben megtalálható : 3 szoba ( jó érzéssel 2 + nappaliként használható ) , közlekedő folyosó-előszoba, kamra, konyha , kádas fürdőszoba+ WC
    - átlagosan 2.7 m belmagasságú , a fürdőszoba kivételével, ami 2.3 m-es , fagerendás , saras tapasztású jó állapotú födémmel
    - fűtését jó állapotú vegyes tüzelésű kazán biztosítja radiátorokkal
    a meleg vizet újszerű kedvezményes tarifájú éjszakai áramról üzemelő villanybojler szolgáltatja
    - a tetőszerkezet , az ereszcsatornák és a kémények is jó állapotúak
    - az udvaron kerti csap megtalálható
    - az épületek mentén járdázott
    - az egyéb épületek többnyire téglából épült - tárolók , nyári konyha , gazdasági épületek - igény és szükség szerint felújításra szorulnak , helyenként a nyári vihar a tetőt megtépázta
    Az elmúlt években a villamos hálózat teljes cserén esett át , földeléssel , 10 Amperes és 16 Amperes éjszakai mérőórával , kötődobozban , külön áramkörökkel vezetékelt hálózattal ( 32 Amperig díjmentesen bővíthető ) , az utcafronti ablakok hőszigeteltekre lettek cserélve és redőnyözésre kerültek , a kúpcserepek kenésére került sor .
    A gáz az utcáról szükség szerint bevezethető , szennyvíz hálózatra csatlakoztatható.
    Internet szabadon választható : DIGI , T-COM , POLARNET Kommunális adó : 12 e Ft/ év
    Ízlés szerint alakítható , saját igényekre szabható , a többnyire vályog falazat kellemes klímát biztosít egész évben .
    Az utca és a szomszédság , kedves , békés , barátságos.
    ÁR: 8,5 M Ft
    1/1-es tulajdon , térképszelvénye tökéletesen egyezik a valósággal
    Birtokba adás: teljesítést követően haladéktalanul
    Korszerűsítése az 5+5 M Ft-os energetikai támogatásból és kedvezményes hitelből megoldható.
    KP-zel , Babaváróval , másik ingatlan fedezetes jelzáloghitellel vásárolható meg !
    Érd.és személyes megtekintés a 06-30-627-7452-es számon lehetséges .
    H-P : 9-19 és Sz : 9-17 óra között

    Hirdetés feltöltve: 2025. 11. 14. Utoljára módosítva: 2026. 05. 12.

    Az ingatlan elhelyezkedése

    Cím: Mezőberény

    Eladó családi házak a környékről

    Mezőberény
    Eladó családi ház

    Mezőberény

    18 M Ft
    3 szoba
    95 m²
    Kamut
    Eladó családi ház

    Kamut

    9.98 M Ft
    3 szoba
    75 m²
    Békéscsaba
    Eladó családi ház

    Békéscsaba

    88.51 M Ft
    4 szoba
    106 m²
    Mezőberény
    Eladó családi ház

    Mezőberény

    12.9 M Ft
    2 szoba
    67 m²
    Tótkomlós
    Eladó családi ház

    Tótkomlós

    13 M Ft
    3 szoba
    100 m²
    Mezőberény
    Eladó családi ház

    Mezőberény

    10.5 M Ft
    2 szoba
    80 m²
    Sarkad
    Eladó családi ház

    Sarkad

    15 M Ft
    4 szoba
    150 m²
    Mezőberény
    Eladó családi ház

    Mezőberény

    10.5 M Ft
    2 szoba
    80 m²
    Szeghalom
    Eladó családi ház

    Szeghalom

    12.9 M Ft
    4 szoba
    150 m²
    Mezőberény, Galilei
    Eladó családi ház

    Mezőberény

    31.5 M Ft
    2 szoba
    86 m²
    Mezőberény, Mónus Illés utca 27
    Eladó családi ház

    Mezőberény

    4.28 M Ft
    1 + 1 szoba
    107 m²
    Gyula
    Eladó családi ház

    Gyula

    73.99 M Ft
    8 + 1 szoba
    255 m²
    Mezőberény, Fürjes utca 12
    Eladó családi ház

    Mezőberény

    1.6 M Ft
    1 + 1 szoba
    61 m²
    Mezőberény
    Eladó családi ház

    Mezőberény

    55.9 M Ft
    4 szoba
    209 m²
    Mezőberény
    Eladó családi ház

    Mezőberény

    54.9 M Ft
    3 szoba
    120 m²
    Mezőberény
    Eladó családi ház

    Mezőberény

    73 M Ft
    3 + 1 szoba
    151 m²
    Doboz
    Eladó családi ház

    Doboz

    10 M Ft
    4 szoba
    100 m²
    Mezőberény
    Eladó családi ház

    Mezőberény

    21.5 M Ft
    2 + 1 szoba
    92 m²
    Mezőberény
    Eladó családi ház

    Mezőberény

    11.9 M Ft
    2 szoba
    140 m²
    Mezőberény
    Eladó családi ház

    Mezőberény

    24.5 M Ft
    3 szoba
    114 m²
    Elek
    Eladó családi ház

    Elek

    28.7 M Ft
    12 + 6 szoba
    390 m²
    Mezőberény
    Eladó családi ház

    Mezőberény

    29 M Ft
    5 szoba
    167 m²
    Tótkomlós
    Eladó családi ház

    Tótkomlós

    19 M Ft
    4 szoba
    123 m²
    Mezőberény
    Eladó családi ház

    Mezőberény

    21.5 M Ft
    2 + 1 szoba
    92 m²

    Falusi CSOK ingatlanok

    Fertőszentmiklós
    Eladó családi ház

    Fertőszentmiklós

    249 M Ft
    3 szoba
    1200 m²
    Táborfalva
    Eladó családi ház

    Táborfalva

    34.9 M Ft
    3 szoba
    49 m²
    Dunaegyháza
    Eladó családi ház

    Dunaegyháza

    29.49 M Ft
    3 szoba
    70 m²
    Nemesnádudvar
    Eladó családi ház

    Nemesnádudvar

    29.9 M Ft
    3 szoba
    145 m²
    Tápiógyörgye
    Eladó családi ház

    Tápiógyörgye

    22.5 M Ft
    3 + 1 szoba
    83 m²
    Szabadbattyán
    Eladó családi ház

    Szabadbattyán

    139.9 M Ft
    4 szoba
    201 m²
    Balinka, Petőfi S. utca 27
    Eladó családi ház

    Balinka

    12.65 M Ft
    1 + 2 szoba
    79 m²
    Felsőlajos
    Eladó családi ház

    Felsőlajos

    100 M Ft
    4 szoba
    140 m²