Astora Márvány8

Eladó családi ház
Mérges

+ 17 kép 1/20
99 000 000 Ft99 M Ft 825 000 Ft/m2
3 szoba
120 m²
építés éve:1975

Részletes adatok

Telekméret: 7459 m2
Fűtés: Gázkazán
Komfort: Duplakomfortos
Energetikai besorolás: Nem adta meg a hirdető

Az OTP Bank lakáshitel ajánlataFizetett hirdetés

+36 70 250
Péter Richárd
referens

Érdekel az OTP Bank kedvezményes lakáshitel ajánlata? *

* A kérdésre „Igen” válasz bejelölése esetén, az „Üzenet küldése” gombra kattintva kijelentem, hogy az OTP Bank Nyrt. Adatkezelési tájékoztatójának tartalmát megismertem és tudomásul vettem.

Eladó családi ház leírása

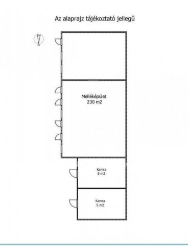
Eladásra kínálok Győrtől 20 km-re, átmenő forgalomtól mentes, csendes kis településen egy 7459 m2-es, teljesen körbekerített telken, teljes közműves 120 m2-es lakóházat, amely ideális lehet akár egy nagyobb család részére is. A házzal egybeépítve egy 25 m2 garázs is rendelkezésre áll, ami akár átalakítható szobává is. A lakóházban található 2 szoba, nagy étkező, nagy nappali, konyha, spájz, fürdőszoba. Központi gázfűtés van, amihez nagy teljesítményű vízteres fatüzelésű kandalló csatlakozik. Az ingatlan területén nem utolsó sorban egy gyönyörű kb. 6x3-as, 20 m2 es téglából épített boltíves, hűvös pince is megtalálható. Továbbá az ingatlanhoz tartozik egy hatalmas egybefüggő épület fedett terasszal. A melléképület Leier téglából épített, a mennyezet szigetelt, gáz és vízvezetékkel, 3x25A árammal van szerelve, így kis- vagy közepes vállalkozásra, vagy raktározásra is alkalmas. A kerti részen többfajta gyümölcsfa található, az 500m2-es udvari rész térkővel burkolt. Az ingatlanhoz tartozó 5000 m2-es szintén körbekerített hátsó kerti rész akár gazdasági célokra is használható.

Amennyiben hirdetésem felkeltette az érdeklődését, keressen bizalommal.

Referenciaszám: M301169

Az energetikai tanúsítvány készítése folyamatban van, amint rendelkezésre áll, úgy azzal a hirdetés frissítésre kerül.

Hirdetés feltöltve: 2026. 04. 17. Utoljára módosítva: 2026. 05. 28.

Az ingatlan elhelyezkedése

Cím: Mérges

Eladó ingatlanok a környékről

Nagycenk
Eladó családi ház

Nagycenk

80.6 M Ft
4 szoba
106 m²
Győr
Eladó családi ház

Győr

179.9 M Ft
4 szoba
142 m²
Győr, Gyárváros
Eladó családi ház

Győr

239 M Ft
6 szoba
350 m²
Mérges
Eladó családi ház

Mérges

99 M Ft
3 szoba
120 m²
Győr
Eladó családi ház

Győr

135 M Ft
8 szoba
300 m²
Lébény
Eladó családi ház

Lébény

62.99 M Ft
4 szoba
90 m²
Halászi
Eladó családi ház

Halászi

89.9 M Ft
4 szoba
150 m²
Kapuvár
Eladó családi ház

Kapuvár

79.99 M Ft
4 + 1 szoba
200 m²
Bezenye
Eladó családi ház

Bezenye

76.186 M Ft
4 szoba
125 m²
Győr
Eladó panellakás

Győr

45.9 M Ft
2 szoba
49 m²
Nagycenk
Eladó családi ház

Nagycenk

89.9 M Ft
4 szoba
90 m²
Győr
Eladó téglalakás

Győr

160 M Ft
4 + 1 szoba
119 m²
Mihályi
Eladó családi ház

Mihályi

34.5 M Ft
3 szoba
86 m²
Kapuvár
Eladó családi ház

Kapuvár

22.8 M Ft
1 + 1 szoba
65 m²
Zsira
Eladó családi ház

Zsira

110.9 M Ft
8 szoba
200 m²
Győr
Eladó családi ház

Győr

87.3 M Ft
3 szoba
86 m²
Győr
Eladó téglalakás

Győr

160 M Ft
4 + 1 szoba
119 m²
Enese
Eladó családi ház

Enese

64.664 M Ft
3 szoba
75 m²
Pér
Eladó családi ház

Pér

49.8 M Ft
3 szoba
100 m²
Mérges
Eladó családi ház

Mérges

67.9 M Ft
5 szoba
90 m²
Győr
Eladó panellakás

Győr

72 M Ft
4 szoba
67 m²
Harka
Eladó családi ház

Harka

99 M Ft
4 szoba
103 m²
Fertőd
Eladó családi ház

Fertőd

89 M Ft
6 + 1 szoba
189 m²
Mosonmagyaróvár
Eladó téglalakás

Mosonmagyaróvár

68.5 M Ft
4 szoba
0 m²

Falusi CSOK ingatlanok

Szob
Eladó sorház

Szob

16 M Ft
2 szoba
45 m²
Sződ
Eladó családi ház

Sződ

102.9 M Ft
4 szoba
92 m²
Kondoros
Eladó családi ház

Kondoros

25 M Ft
4 szoba
150 m²
Mesteri
Eladó családi ház

Mesteri

29.7 M Ft
4 szoba
140 m²
Dunaegyháza
Eladó családi ház

Dunaegyháza

29.49 M Ft
3 szoba
70 m²
Ipolydamásd
Eladó családi ház

Ipolydamásd

105 M Ft
4 szoba
120 m²
Rétság
Eladó téglalakás

Rétság

34.9 M Ft
2 szoba
55 m²
Szigliget, Soponyai út
Eladó ikerház

Szigliget

429 M Ft
7 + 2 szoba
212 m²