Stay Family Park

Eladó családi ház
Marcalgergelyi

Figyelem!

Ez az ingatlan a 2019.07.01-től induló falusi CSOK által támogatott településen található

+ 17 kép 1/20
31 000 000 Ft31 M Ft 258 333 Ft/m2
2 + 1 szoba
120 m2
építés éve:1982

Részletes adatok

Állapot: Felújított
Telekméret: 1739 m2
Fűtés: Gázkazán
Energetikai besorolás: Nem adta meg a hirdető

Az OTP Bank lakáshitel ajánlataFizetett hirdetés

+36 30 929
Szalai Veronika
OTP Ingatlanpont Pápa

Érdekel az OTP Bank kedvezményes lakáshitel ajánlata? *

* A kérdésre „Igen” válasz bejelölése esetén, az „Üzenet küldése” gombra kattintva kijelentem, hogy az OTP Bank Nyrt. Adatkezelési tájékoztatójának tartalmát megismertem és tudomásul vettem.

Eladó családi ház leírása

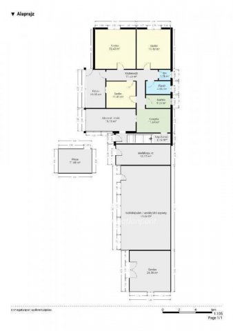
Marcalgergelyiben, Pápától mindössze 20 km-re ELADÓ egy KIVÁLÓ ÁLLAPOTÚ, FELÚJÍTOTT, 120 m2-es, 2+1 SZOBÁS családi ház RENDEZETT utcában. Az ingatlan 1982-ben épült, statikai szempontból MEGBÍZHATÓ, gondosan karbantartott, azonnal használatra kész műszaki háttérrel.

Praktikus, ÁTGONDOLT ELRENDEZÉS: három szoba, két előszoba, konyha, kamra, fürdőszoba, külön WC, folyosó, valamint alagsori tároló (itt található a gázkazán). A házhoz tartozik egy 40 m2-es, TÁGAS PINCE, ahol a vegyes tüzelésű kazán kapott helyet. A fűtés RUGALMAS: GÁZ-CIRKÓ és FA TÜZELÉSŰ KAZÁN radiátoros hőleadókkal, külön-külön és PÁRHUZAMOSAN is működtethető. Meleg vizet VILLANY BOJLER biztosítja. A szobák burkolata LAMINÁLT PARKETTA.

A 2023-as FELÚJÍTÁS során MŰANYAG, HŐSZIGETELT NYÍLÁSZÁRÓK kerültek beépítésre, a padlás födéme SZIGETELÉST kapott, a TELJES VILLAMOSHÁLÓZAT cserélve lett, és OKOS VILLANYÓRA került felszerelésre. Az ingatlan egy TISZTASÁGI FESTÉS után AKÁR AZONNAL KÖLTÖZHETŐ.

A 1739 m2-es TELEK több MELLÉKÉPÜLETET tartalmaz. Egy korábban kocsmaként működő épület FELÚJÍTANDÓ, továbbá található egy GARÁZS is. Az egyik melléképület bontását a jelenlegi tulajdonos megkezdte, a telek így jól alakítható a jövőbeni igényekhez.

Ajánlott MINDENKINEK, aki rendezett, vidéki környezetben keres megbízható, jól felszerelt, azonnal használható otthont egy FEJLŐDŐ FALUBAN. A ház műszaki tartalma, elrendezése és a nagy telek együttese SOK LEHETŐSÉGET kínál.

Érdeklődjön időpontért és tekintse meg személyesen!

31000000 Ft

Referencia szám: M316425

Hirdetés feltöltve: 2025. 12. 13. Utoljára módosítva: 2025. 12. 13.

Az ingatlan elhelyezkedése

Cím: Marcalgergelyi

Eladó ingatlanok a környékről

Eladó téglalakás
Eladó téglalakás

Balatonakarattya

136.9 M Ft
4 szoba
81 m2
Eladó családi ház
Eladó családi ház

Ábrahámhegy

190 M Ft
5 szoba
112 m2
Eladó családi ház
Eladó családi ház

Devecser

33.9 M Ft
3 szoba
75 m2
Eladó családi ház
Eladó családi ház

Városlőd

23 M Ft
2 szoba
95 m2
Eladó családi ház
Eladó családi ház

Bakonybél

91.3 M Ft
4 szoba
171 m2
Eladó sorház
Eladó sorház

Veszprém

77.9 M Ft
2 + 2 szoba
115 m2
Eladó családi ház
Eladó családi ház

Pápa

62.9 M Ft
6 szoba
170 m2
Eladó téglalakás
Eladó téglalakás

Veszprém

79.8 M Ft
3 szoba
84 m2
Eladó családi ház
Eladó családi ház

Marcalgergelyi

29.9 M Ft
2 szoba
72 m2
Eladó családi ház
Eladó családi ház

Marcalgergelyi

31 M Ft
2 + 1 szoba
120 m2
Eladó családi ház
Eladó családi ház

Pápa

45 M Ft
4 szoba
93 m2
Eladó családi ház
Eladó családi ház

Balatonfüred

449.9 M Ft
9 szoba
478 m2
Eladó családi ház
Eladó családi ház

Bakonyjákó

22 M Ft
2 szoba
78 m2
Eladó családi ház
Eladó családi ház

Monoszló

1881.012 M Ft
9 szoba
2250 m2
Eladó családi ház
Eladó családi ház

Veszprém

139.8 M Ft
4 szoba
157 m2
Eladó családi ház
Eladó családi ház

Marcalgergelyi

21.9 M Ft
3 + 1 szoba
118 m2
Eladó családi ház
Eladó családi ház

Badacsonytördemic

179.07 M Ft
4 szoba
160 m2
Eladó családi ház
Eladó családi ház

Ábrahámhegy, Zsákutca

82.9 M Ft
3 + 2 szoba
110 m2
Eladó családi ház
Eladó családi ház

Marcalgergelyi

21.9 M Ft
3 + 1 szoba
118 m2
Eladó családi ház
Eladó családi ház

Veszprém

149 M Ft
6 + 1 szoba
243 m2
Eladó családi ház
Eladó családi ház

Marcalgergelyi

31 M Ft
2 + 1 szoba
120 m2
Eladó családi ház
Eladó családi ház

Balatonfüred

239 M Ft
5 szoba
255 m2
Eladó családi ház
Eladó családi ház

Lesencetomaj

90 M Ft
5 + 1 szoba
180 m2
Eladó családi ház
Eladó családi ház

Marcalgergelyi

21.9 M Ft
3 + 1 szoba
120 m2

Falusi CSOK ingatlanok

Eladó téglalakás
Eladó téglalakás

Újlengyel

72.99 M Ft
2 szoba
68 m2
Eladó családi ház
Eladó családi ház

Kondorfa, Fővég utca

24.9 M Ft
3 szoba
102 m2
Eladó családi ház
Eladó családi ház

Porva

74.6 M Ft
3 szoba
115 m2
Eladó téglalakás
Eladó téglalakás

Balatonszemes

244.5 M Ft
3 szoba
107 m2
Eladó családi ház
Eladó családi ház

Zalacsány

75 M Ft
3 szoba
90 m2
Eladó családi ház
Eladó családi ház

Iváncsa

73.9 M Ft
1 + 3 szoba
97 m2
Eladó téglalakás
Eladó téglalakás

Balatonszemes

110.9 M Ft
2 szoba
60 m2
Eladó téglalakás
Eladó téglalakás

Balatonszemes

125.2 M Ft
2 szoba
50 m2

Falusi CSOK ingatlanok

Eladó családi ház
Eladó családi ház

Devecser

42.9 M Ft
3 szoba
100 m2
Eladó családi ház
Eladó családi ház

Alattyán

8.5 M Ft
1 + 1 szoba
70 m2
Eladó családi ház
Eladó családi ház

Bakonyszentkirály

99.99 M Ft
5 szoba
126 m2
Eladó családi ház
Eladó családi ház

Szil

25 M Ft
2 szoba
90 m2
Eladó családi ház
Eladó családi ház

Bag

16.9 M Ft
6 szoba
160 m2
Eladó téglalakás
Eladó téglalakás

Balatonszemes

125.2 M Ft
2 szoba
50 m2
Eladó családi ház
Eladó családi ház

Zalaszentiván

23.9 M Ft
2 szoba
62 m2
Eladó családi ház
Eladó családi ház

Tápiógyörgye

30 M Ft
3 szoba
65 m2