Metrodom

Eladó családi ház
Marcalgergelyi

Figyelem!

Ez az ingatlan a 2019.07.01-től induló falusi CSOK által támogatott településen található

+ 17 kép 1/20
31 000 000 Ft31 M Ft 258 333 Ft/m2
2 + 1 szoba
120 m2
építés éve:1982

Részletes adatok

Állapot: Felújított
Telekméret: 1739 m2
Fűtés: Gázkazán
Energetikai besorolás: Nem adta meg a hirdető

Az OTP Bank lakáshitel ajánlataFizetett hirdetés

+36 30 662
Tüske Patrícia
OTP Ingatlanpont Pápa

Érdekel az OTP Bank kedvezményes lakáshitel ajánlata? *

* A kérdésre „Igen” válasz bejelölése esetén, az „Üzenet küldése” gombra kattintva kijelentem, hogy az OTP Bank Nyrt. Adatkezelési tájékoztatójának tartalmát megismertem és tudomásul vettem.

Eladó családi ház leírása

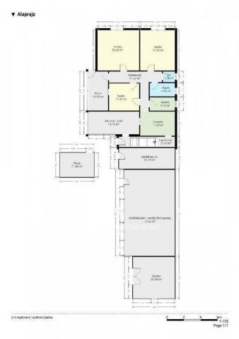
Marcalgergelyiben, Pápától mindössze 20 km-re eladó egy kiváló állapotú, felújított, 120 m2-es, 2+1 szobáscsaládi ház rendezett utcában. Az ingatlan 1982-ben épült, statikai szempontból megbízható, gondosan karbantartott, azonnal használatra kész műszaki háttérrel.

Praktikus, átgondolt elredenzés: három szoba, két előszoba, konyha, kamra, fürdőszoba, külön WC, folyosó, valamint alagsori tároló (itt található a gázkazán). A házhoz tartozik egy 40 m2-es, tágas pince, ahol a vegyes tüzelésű kazán kapott helyet. A fűtés rugalmas: gáz-cirkó és fa tüzelésű kazán radiátoros hőleadókkal, külön-külön és párhuzamosan is működtethető. Meleg vizet villany bojler biztosítja. A szobák burkolata laminált parketta.

A 2023-as felújítás során műanyag, hőszigetelt nyílászárók kerültek beépítésre, a padlás födéme szigetelést kapott, a teljes villamoshálózat cserélve lett, és okos villanyóra került felszerelésre. Az ingatlan egy tisztasági festés után akár azonnal költözhető.

A 1739 m2-es telek több melléképületet tartalmaz. Egy korábban kocsmaként működő épület felújítandó, továbbá található egy garázs is. Az egyik melléképület bontását a jelenlegi tulajdonos megkezdte, a telek így jól alakítható a jövőbeni igényekhez.

Ajánlott mindenkinek, aki rendezett, vidéki környezetben keres megbízható, jól felszerelt, azonnal használható otthont egy fejlődő faluban. A ház műszaki tartalma, elrendezése és a nagy telek együttese sok lehetőséget kínál.

Érdeklődjön időpontért és tekintse meg személyesen!

31000000 Ft

Referencia szám: M316425

Hirdetés feltöltve: 2025. 12. 12. Utoljára módosítva: 2025. 12. 19.

Az ingatlan elhelyezkedése

Cím: Marcalgergelyi

Eladó ingatlanok a környékről

Eladó családi ház
Eladó családi ház

Badacsonytördemic

79.9 M Ft
5 szoba
165 m2
Eladó családi ház
Eladó családi ház

Marcalgergelyi

21.9 M Ft
3 + 1 szoba
118 m2
Eladó családi ház
Eladó családi ház

Marcalgergelyi

21.9 M Ft
3 + 1 szoba
118 m2
Eladó családi ház
Eladó családi ház

Badacsonytördemic

180.95 M Ft
4 szoba
160 m2
Eladó családi ház
Eladó családi ház

Marcalgergelyi

21.9 M Ft
3 + 1 szoba
118 m2
Eladó családi ház
Eladó családi ház

Marcalgergelyi

21.9 M Ft
3 + 1 szoba
118 m2
Eladó családi ház
Eladó családi ház

Marcalgergelyi

21.9 M Ft
3 + 1 szoba
118 m2
Eladó téglalakás
Eladó téglalakás

Várpalota

41.9 M Ft
2 szoba
49 m2
Eladó családi ház
Eladó családi ház

Csopak

266 M Ft
9 szoba
350 m2
Eladó családi ház
Eladó családi ház

Veszprém

149 M Ft
6 + 1 szoba
243 m2
Eladó családi ház
Eladó családi ház

Veszprém

149 M Ft
4 + 1 szoba
250 m2
Eladó családi ház
Eladó családi ház

Monoszló

1888.46 M Ft
9 szoba
2250 m2
Eladó telek
Eladó telek

Révfülöp, Végmáli utca

37.9 M Ft
1717 m²
Eladó családi ház
Eladó családi ház

Balatonfűzfő

144.9 M Ft
5 szoba
150 m2
Eladó ipari ingatlan
Eladó ipari ingatlan

Pétfürdő

30 M Ft
24990 m²
24990 m2
Eladó családi ház
Eladó családi ház

Egyházaskesző

16.5 M Ft
6 szoba
633 m2
Eladó családi ház
Eladó családi ház

Városlőd

23 M Ft
2 szoba
95 m2
Eladó családi ház
Eladó családi ház

Pápa

117 M Ft
2 + 2 szoba
185 m2
Eladó családi ház
Eladó családi ház

Tapolca

89.9 M Ft
5 szoba
120 m2
Eladó családi ház
Eladó családi ház

Veszprém

139.8 M Ft
4 szoba
157 m2
Eladó családi ház
Eladó családi ház

Marcalgergelyi

21.9 M Ft
3 + 1 szoba
120 m2
Eladó téglalakás
Eladó téglalakás

Balatonfüred

139.9 M Ft
3 szoba
99 m2
Eladó téglalakás
Eladó téglalakás

Pápa

20.19 M Ft
1 + 1 szoba
42 m2
Eladó családi ház
Eladó családi ház

Kislőd

53.2 M Ft
3 szoba
86 m2

Falusi CSOK ingatlanok

Eladó családi ház
Eladó családi ház

Kajárpéc

32 M Ft
4 szoba
120 m2
Eladó családi ház
Eladó családi ház

Dág, Petőfi Sándor utca

36.9 M Ft
4 szoba
105 m2
Eladó családi ház
Eladó családi ház

Abaújszántó

19.99 M Ft
3 szoba
84 m2
Eladó családi ház
Eladó családi ház

Tatárszentgyörgy

60.5 M Ft
7 szoba
305 m2
Eladó családi ház
Eladó családi ház

Kenyeri

39.9 M Ft
3 szoba
94 m2
Eladó családi ház
Eladó családi ház

Bököny, Ady Endre utca 90

49.9 M Ft
4 szoba
84 m2
Eladó ikerház
Eladó ikerház

Balatonakali

129 M Ft
4 szoba
145 m2
Eladó családi ház
Eladó családi ház

Kaposgyarmat

695 M Ft
6 szoba
610 m2

Falusi CSOK ingatlanok

Eladó családi ház
Eladó családi ház

Bugac

19.9 M Ft
40 m2
Eladó családi ház
Eladó családi ház

Magyarszombatfa

80 M Ft
3 szoba
90 m2
Eladó családi ház
Eladó családi ház

Apaj

59.6 M Ft
29 + 3 szoba
912 m2
Eladó ikerház
Eladó ikerház

Enese

83.9 M Ft
4 szoba
90 m2
Eladó ikerház
Eladó ikerház

Balatonudvari

129.9 M Ft
3 + 2 szoba
158 m2
Eladó családi ház
Eladó családi ház

Bugac

15 M Ft
3 szoba
52 m2
Eladó családi ház
Eladó családi ház

Kertészsziget

26 M Ft
2 szoba
78 m2
Eladó családi ház
Eladó családi ház

Alattyán

44 M Ft
3 szoba
113 m2