Metrodom

Eladó családi ház
Mád

Figyelem!

Ez az ingatlan a 2019.07.01-től induló falusi CSOK által támogatott településen található

55 000 000 Ft55 M Ft 164 671 Ft/m2
4 + 2 szoba
334 m2
építés éve:1986

Részletes adatok

Állapot: Átlagos
Telekméret: 756 m2
Fűtés: Gázkazán
Közmű: Víz, Gáz, Villany, Csatorna
Energetikai besorolás: Nem adta meg a hirdető
Zenga Premier

Friss hirdetések, amiket nem találsz meg más ingatlankereső portálon.

Fedezd fel elsőként a Zenga Premier címkés eladó ingatlanokat!

További részletek a zenga.hu-n

Az OTP Bank lakáshitel ajánlataFizetett hirdetés

+36 30 709
Oroszné Ferencsák Mária
referens

Érdekel az OTP Bank kedvezményes lakáshitel ajánlata? *

* A kérdésre „Igen” válasz bejelölése esetén, az „Üzenet küldése” gombra kattintva kijelentem, hogy az OTP Bank Nyrt. Adatkezelési tájékoztatójának tartalmát megismertem és tudomásul vettem.

Eladó családi ház leírása

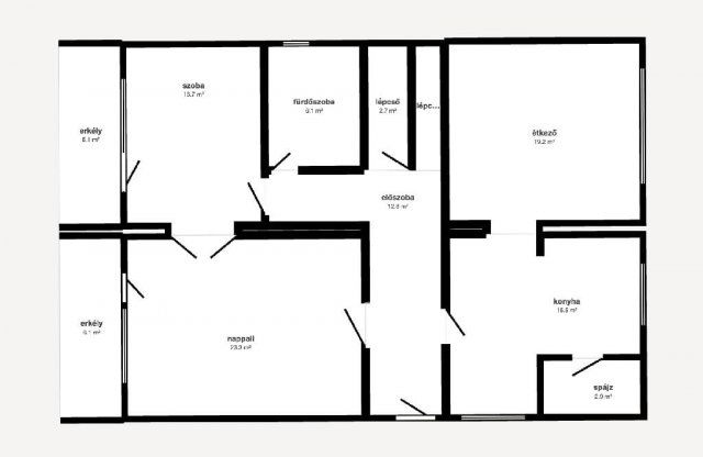
Mádon nagyon jó lakókörnyezetben 2 szintes családi ház eladó, 2 garázzsal kazánházzal borospincével. Mád nagyon felkapott település lett Hegyalján. Az ingatlan 756 m2 telken található lakóterülete 207 m2. Egyéb lakhatáshoz tartozó területek:pince, 2 db garázs,kazánház alapterülete összesen 127 m2 Mádon minden megtalálható ami a napi élethez szükséges. Legközelebbi város 10 km-re Szerencs, ahol bevásárló központok, orvosi rendelők, több középiskola, bölcsődék, óvodák találhatók. A ház alkalmas lehet magánszállás, kisebb panzió kialakítására akár vállalkozás székhelyének, irodának a jó megközelítés miatt, akár több generációnak is alkalmas lakhatásra. Szomszédok rendesek, csendesek. A ház tehermentes. Érdeklődés esetén kérem az alábbi számra hivatkozzon: M316223
OTP Banki hátterünknek köszönhetően finanszírozási igényekben (pl. Otthon Start Hitelprogram, Babaváró, Falusi CSOK, CSOK Plusz, Lakáshitel, Személyi kölcsön stb.), illetve biztosítások tekintetében is díjmentesen, soron kívüli ügyintézéssel segítem ügyfeleim!
Jöjjön nézzük meg együtt!

Hirdetés feltöltve: 2025. 11. 26. Utoljára módosítva: 2025. 11. 26.

Az ingatlan elhelyezkedése

Cím: Mád

Eladó ingatlanok a környékről

Eladó családi ház
Eladó családi ház

Miskolc

25.9 M Ft
4 szoba
148 m2
Eladó téglalakás
Eladó téglalakás

Mezőkövesd

69 M Ft
5 szoba
120 m2
Eladó családi ház
Eladó családi ház

Tarcal

19.9 M Ft
3 szoba
110 m2
Eladó családi ház
Eladó családi ház

Taktaszada, Thököly utca

37 M Ft
4 + 1 szoba
190 m2
Eladó családi ház
Eladó családi ház

Mád

48 M Ft
3 szoba
78 m2
Eladó családi ház
Eladó családi ház

Tiszalúc

6 M Ft
2 szoba
58 m2
Eladó családi ház
Eladó családi ház

Miskolc

149 M Ft
4 szoba
463 m2
Eladó családi ház
Eladó családi ház

Mád

23.9 M Ft
2 szoba
68 m2
Eladó családi ház
Eladó családi ház

Mád

52 M Ft
4 szoba
200 m2
Eladó családi ház
Eladó családi ház

Mád

19.9 M Ft
1 + 2 szoba
54 m2
Eladó családi ház
Eladó családi ház

Ózd

15 M Ft
7 szoba
225 m2
Eladó családi ház
Eladó családi ház

Ózd, Ózd falu, 48-as út

39.9 M Ft
3 + 1 szoba
300 m2
Eladó családi ház
Eladó családi ház

Mád, . utca

35 M Ft
2 + 1 szoba
97 m2
Eladó családi ház
Eladó családi ház

Ózd

14.7 M Ft
3 szoba
95 m2
Eladó családi ház
Eladó családi ház

Ózd

26.5 M Ft
3 szoba
100 m2
Eladó családi ház
Eladó családi ház

Mád

19.9 M Ft
1 + 2 szoba
54 m2
Eladó családi ház
Eladó családi ház

Tarcal

25 M Ft
3 szoba
120 m2
Eladó családi ház
Eladó családi ház

Putnok

11 M Ft
3 szoba
79 m2
Eladó telek
Eladó telek

Kazincbarcika, Táncsics Mihály

14.5 M Ft
2120 m²
2120 m2
Eladó családi ház
Eladó családi ház

Szikszó

89.9 M Ft
3 szoba
100 m2
Eladó családi ház
Eladó családi ház

Mád

35 M Ft
2 + 1 szoba
97 m2
Eladó családi ház
Eladó családi ház

Mád, Árpád utca 11/2

15.09 M Ft
1 + 1 szoba
94 m2
Eladó családi ház
Eladó családi ház

Nagyrozvágy

23.46 M Ft
4 szoba
120 m2
Eladó családi ház
Eladó családi ház

Mád

19.9 M Ft
1 + 2 szoba
54 m2

Falusi CSOK ingatlanok

Eladó családi ház
Eladó családi ház

Vilonya

71.9 M Ft
5 szoba
105 m2
Eladó családi ház
Eladó családi ház

Nagybörzsöny

79.9 M Ft
4 szoba
149 m2
Eladó családi ház
Eladó családi ház

Darnózseli

79.9 M Ft
4 szoba
104 m2
Eladó családi ház
Eladó családi ház

Devecser

18.9 M Ft
2 + 1 szoba
57 m2
Eladó családi ház
Eladó családi ház

Ónod, Kossuth út 10

27.499 M Ft
3 + 2 szoba
120 m2
Eladó családi ház
Eladó családi ház

Nemesszalók

8.9 M Ft
1 szoba
54 m2
Eladó családi ház
Eladó családi ház

Nyírtura

74.9 M Ft
3 szoba
120 m2
Eladó családi ház
Eladó családi ház

Fülöpszállás

299 M Ft
14 + 5 szoba
680 m2

Falusi CSOK ingatlanok

Eladó családi ház
Eladó családi ház

Ceglédbercel, Iskola utca

79.99 M Ft
5 szoba
90 m2
Eladó családi ház
Eladó családi ház

Törtel, Kőrösi út 101

22.21 M Ft
2 szoba
117 m2
Eladó családi ház
Eladó családi ház

Nemesszentandrás

75 M Ft
4 szoba
164 m2
Eladó családi ház
Eladó családi ház

Ónod, Barátság 9

31.999 M Ft
3 szoba
150 m2
Eladó családi ház
Eladó családi ház

Tokod

89 M Ft
6 szoba
187 m2
Eladó családi ház
Eladó családi ház

Galgahévíz

188 M Ft
4 szoba
125 m2
Eladó ikerház
Eladó ikerház

Balatonkenese

84.99 M Ft
3 szoba
76 m2
Eladó családi ház
Eladó családi ház

Hercegszántó

7 M Ft
3 szoba
120 m2