Astora Art House

Eladó családi ház
Mád

Figyelem!

Ez az ingatlan a 2019.07.01-től induló falusi CSOK által támogatott településen található

+ 17 kép 1/20
55 000 000 Ft55 M Ft 164 671 Ft/m2
4 + 2 szoba
334 m2
építés éve:1986

Részletes adatok

Állapot: Átlagos
Telekméret: 756 m2
Fűtés: Gázkazán
Energetikai besorolás: Nem adta meg a hirdető

Az OTP Bank lakáshitel ajánlataFizetett hirdetés

+36 30 709
Oroszné Ferencsák Mária
OTP Ingatlanpont Miskolc Szemere

Érdekel az OTP Bank kedvezményes lakáshitel ajánlata? *

* A kérdésre „Igen” válasz bejelölése esetén, az „Üzenet küldése” gombra kattintva kijelentem, hogy az OTP Bank Nyrt. Adatkezelési tájékoztatójának tartalmát megismertem és tudomásul vettem.

Eladó családi ház leírása

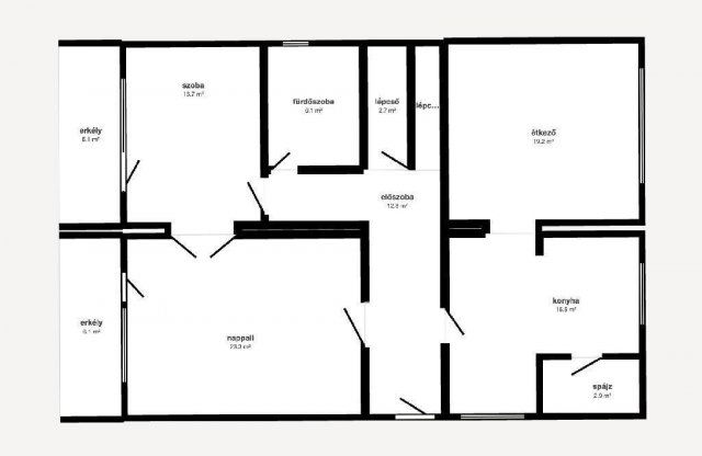
Mádon nagyon jó lakókörnyezetben 2 szintes családi ház eladó, 2 garázzsal, kazánházzal borospincével. Mád nagyon felkapott település lett Hegyalján. Az ingatlan 756 m2-es telken található, lakóterülete 207 m2. Egyéb lakhatáshoz tartozó területek: pince, 2 db garázs, kazánház, alapterülete összesen 127 m2. Mádon minden megtalálható ami a napi élethez szükséges. Legközelebbi város 10 km-re Szerencs, ahol bevásárló központok, orvosi rendelők, több középiskola, bölcsődék, óvodák található. A ház alkalmas lehet magánszállás, kisebb panzió kialakítására, vagy akár vállalkozás székhelyének, irodának, a jó megközelíthetőség miatt, vagy akár több generációnak is alkalmas lakhatásra. Szomszédok rendesek, csendesek. A ház tehermentes. Érdeklődés esetén kérem az alábbi referencia számra hivatkozzon: M316223
OTP Banki hátterünknek köszönhetően finanszírozási igényekben (pl. Otthon Start Hitelprogram, Babaváró, Falusi CSOK, CSOK Plusz, Lakáshitel, Személyi kölcsön stb.), illetve biztosítások tekintetében is díjmentesen, soron kívüli ügyintézéssel segítem ügyfeleim!
Jöjjön nézzük meg együtt!

Hirdetés feltöltve: 2026. 01. 01. Utoljára módosítva: 2026. 01. 13.

Az ingatlan elhelyezkedése

Cím: Mád

Eladó ingatlanok a környékről

Eladó családi ház
Eladó családi ház

Mád

19.5 M Ft
3 szoba
87 m2
Eladó családi ház
Eladó családi ház

Putnok

11 M Ft
3 szoba
79 m2
Eladó családi ház
Eladó családi ház

Mád

19.9 M Ft
1 + 2 szoba
54 m2
Eladó családi ház
Eladó családi ház

Mád

19.9 M Ft
1 + 2 szoba
54 m2
Eladó családi ház
Eladó családi ház

Mád

23.9 M Ft
2 szoba
68 m2
Eladó családi ház
Eladó családi ház

Ózd

25.99 M Ft
4 szoba
198 m2
Eladó családi ház
Eladó családi ház

Komlóska

55.9 M Ft
7 szoba
247 m2
Eladó családi ház
Eladó családi ház

Mád

39.99 M Ft
1871 m2
Eladó családi ház
Eladó családi ház

Mád

149 M Ft
3 szoba
147 m2
Eladó családi ház
Eladó családi ház

Ózd

48.5 M Ft
4 + 1 szoba
211 m2
Eladó családi ház
Eladó családi ház

Mád

8 M Ft
1 + 2 szoba
39 m2
Eladó családi ház
Eladó családi ház

Mád

19.9 M Ft
1 + 2 szoba
54 m2
Eladó családi ház
Eladó családi ház

Mád

19.9 M Ft
1 + 2 szoba
54 m2
Eladó családi ház
Eladó családi ház

Mád

23.9 M Ft
2 szoba
68 m2
Eladó családi ház
Eladó családi ház

Mád

19.9 M Ft
1 + 2 szoba
54 m2
Eladó családi ház
Eladó családi ház

Mád, . utca

35 M Ft
2 + 1 szoba
97 m2
Eladó családi ház
Eladó családi ház

Ózd, 48-as út

39.9 M Ft
3 + 1 szoba
300 m2
Eladó családi ház
Eladó családi ház

Miskolc

149 M Ft
4 szoba
463 m2
Eladó családi ház
Eladó családi ház

Gönc

20.5 M Ft
2 szoba
80 m2
Eladó családi ház
Eladó családi ház

Mád

55 M Ft
4 + 2 szoba
334 m2
Eladó családi ház
Eladó családi ház

Miskolc, Vargahegy, Margaréta utca

14.5 M Ft
1 szoba
42 m2
Eladó családi ház
Eladó családi ház

Felsőnyárád

15.9 M Ft
2 szoba
88 m2
Eladó családi ház
Eladó családi ház

Mád

19.9 M Ft
1 + 2 szoba
54 m2
Eladó családi ház
Eladó családi ház

Nemesbikk, Kossuth utca 3

4.5 M Ft
2 szoba
80 m2

Falusi CSOK ingatlanok

Eladó családi ház
Eladó családi ház

Bugac

34.4 M Ft
3 szoba
70 m2
Eladó családi ház
Eladó családi ház

Szederkény

107.9 M Ft
6 szoba
224 m2
Eladó családi ház
Eladó családi ház

Kétpó

14.9 M Ft
1 + 2 szoba
86 m2
Eladó családi ház
Eladó családi ház

Szabadbattyán

67.5 M Ft
5 szoba
180 m2
Eladó ikerház
Eladó ikerház

Bodajk

64.9 M Ft
5 szoba
90 m2
Eladó családi ház
Eladó családi ház

Maráza

49.99 M Ft
4 szoba
130 m2
Eladó családi ház
Eladó családi ház

Darnózseli

79.9 M Ft
4 szoba
104 m2
Eladó családi ház
Eladó családi ház

Nagypall, Szabadság utca

35.9 M Ft
3 szoba
125 m2

Falusi CSOK ingatlanok

Eladó családi ház
Eladó családi ház

Szólád

99.9 M Ft
6 + 1 szoba
245 m2
Eladó családi ház
Eladó családi ház

Csemő

54.9 M Ft
4 szoba
108 m2
Eladó téglalakás
Eladó téglalakás

Fertőszentmiklós

52.2 M Ft
3 szoba
89 m2
Eladó családi ház
Eladó családi ház

Újlengyel

110 M Ft
4 szoba
121 m2
Eladó családi ház
Eladó családi ház

Nyékládháza, Mátyás király utca

34.9 M Ft
2 szoba
88 m2
Eladó családi ház
Eladó családi ház

Bugac

34.4 M Ft
3 szoba
70 m2
Eladó családi ház
Eladó családi ház

Darnózseli

79.9 M Ft
4 szoba
104 m2
Eladó családi ház
Eladó családi ház

Harsány

51.9 M Ft
5 szoba
140 m2