Avico Greentop

Eladó családi ház
Lepsény

Figyelem!

Ez az ingatlan a 2019.07.01-től induló falusi CSOK által támogatott településen található

+ 14 kép 1/17
72 000 000 Ft72 M Ft 857 143 Ft/m2
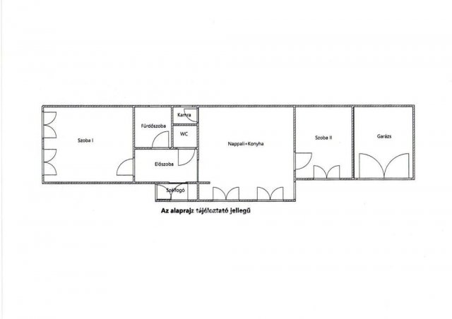
2 szoba
84 m²
építés éve:1960

Részletes adatok

Állapot: Felújított
Telekméret: 2130 m2
Fűtés: Elektromos
Energetikai besorolás: Nem adta meg a hirdető

Az OTP Bank lakáshitel ajánlataFizetett hirdetés

+36 20 534
Gombos Zita
Szigetszentmiklós OTP Ip

Érdekel az OTP Bank kedvezményes lakáshitel ajánlata? *

* A kérdésre „Igen” válasz bejelölése esetén, az „Üzenet küldése” gombra kattintva kijelentem, hogy az OTP Bank Nyrt. Adatkezelési tájékoztatójának tartalmát megismertem és tudomásul vettem.

Eladó családi ház leírása

Eladó Fejér vármegyében, Lepsény központjában egy 82 nm-es, napfényes, felújított családi ház egy 2130 nm-es tágas telken.
A ház praktikus elrendezésű: 2 külön nyíló szoba, tágas nappali-konyha és fürdőszoba. A nagy ablakoknak köszönhetően minden helyiség világos, barátságos hangulatú.

A műszaki tartalom kiemelkedő: új tető és szigetelés, napelemes rendszer az alacsony rezsiért, valamint többféle fűtési lehetőség. A telek számos lehetőséget rejt: kertészkedés, önellátó gazdálkodás, pihenőkert vagy akár további bővítés.

Lepsény jó közlekedésű település: az M7-es autópálya és a 7-es főút révén könnyen elérhető Székesfehérvár, Siófok és Budapest (kb. 1 óra). A környéken óvoda, iskola, boltok és orvosi ellátás biztosítja a kényelmes mindennapokat.

Ajánlott: családoknak nagy kerttel, nyugalmat keresőknek, gazdálkodásban gondolkodóknak, illetve befektetőknek.

Ne hagyja ki! További információért és megtekintésért keressen bizalommal!

Referenciaszám: M323194

Az OTP Bankcsoport teljeskörű ügyintézéssel áll az eladók és a vevők rendelkezésére! A kínálatunkból választott ingatlan finanszírozásához kedvezményes hitelkonstrukciókat kínálunk. Az adásvételi szerződés megkötéséhez igény szerint megbízható ügyvédi közreműködést biztosítunk és segítséget nyújtunk az adásvételhez kapcsolódó ügyek intézéséhez.

Hirdetés feltöltve: 2026. 04. 08. Utoljára módosítva: 2026. 04. 08.

Az ingatlan elhelyezkedése

Cím: Lepsény

Eladó családi házak a környékről

Lepsény, Róka sétány
Eladó családi ház

Lepsény

64.9 M Ft
5 + 1 szoba
203 m²
Lepsény
Eladó családi ház

Lepsény

305.128 M Ft
10 szoba
800 m²
Lepsény
Eladó családi ház

Lepsény

72 M Ft
3 szoba
80 m²
Pusztavám
Eladó családi ház

Pusztavám

22.9 M Ft
3 szoba
103 m²
Adony
Eladó családi ház

Adony

9.5 M Ft
2 szoba
30 m²
Lepsény
Eladó családi ház

Lepsény

72 M Ft
2 szoba
84 m²
Székesfehérvár
Eladó családi ház

Székesfehérvár

59 M Ft
3 szoba
100 m²
Lepsény
Eladó családi ház

Lepsény

149.9 M Ft
3 szoba
150 m²
Lepsény
Eladó családi ház

Lepsény

72 M Ft
3 szoba
80 m²
Lepsény
Eladó családi ház

Lepsény

17.5 M Ft
4 szoba
80 m²
Lepsény
Eladó családi ház

Lepsény

149.9 M Ft
3 szoba
130 m²
Bakonycsernye
Eladó családi ház

Bakonycsernye

39 M Ft
3 szoba
350 m²
Bicske, Baboshegy
Eladó családi ház

Bicske

26.9 M Ft
1 szoba
30 m²
Szabadbattyán
Eladó családi ház

Szabadbattyán

357.518 M Ft
9 + 2 szoba
1053 m²
Velence, Liget utca
Eladó családi ház

Velence

149 M Ft
2 + 2 szoba
150 m²
Csákvár, Kossuth utca
Eladó családi ház

Csákvár

76 M Ft
1 szoba
181 m²
Lepsény
Eladó családi ház

Lepsény

22 M Ft
2 szoba
45 m²
Lepsény
Eladó családi ház

Lepsény

149.9 M Ft
3 szoba
130 m²
Vértesacsa
Eladó családi ház

Vértesacsa

86 M Ft
3 + 1 szoba
123 m²
Etyek
Eladó családi ház

Etyek

160 M Ft
6 szoba
228 m²
Kulcs
Eladó családi ház

Kulcs

180 M Ft
8 szoba
167 m²
Lepsény
Eladó családi ház

Lepsény

85 M Ft
4 szoba
102 m²
Gánt, Gánti út
Eladó családi ház

Gánt

29.9 M Ft
2 + 1 szoba
40 m²
Mór
Eladó családi ház

Mór

110 M Ft
12 szoba
340 m²

Falusi CSOK ingatlanok

Kadarkút, Körmendi utca
Eladó családi ház

Kadarkút

21 M Ft
3 szoba
82 m²
Röszke
Eladó családi ház

Röszke

69.99 M Ft
4 szoba
99 m²
Tabdi
Eladó családi ház

Tabdi

95 M Ft
45 szoba
1490 m²
Ostffyasszonyfa
Eladó családi ház

Ostffyasszonyfa

37.9 M Ft
5 szoba
494 m²
Somogyszil
Eladó családi ház

Somogyszil

27.9 M Ft
3 szoba
140 m²
Szabadbattyán
Eladó családi ház

Szabadbattyán

147.99 M Ft
5 szoba
255 m²
Bánokszentgyörgy
Eladó családi ház

Bánokszentgyörgy

22.5 M Ft
2 szoba
72 m²
Bánokszentgyörgy
Eladó családi ház

Bánokszentgyörgy

22.5 M Ft
2 szoba
72 m²

Falusi CSOK ingatlanok

Herend
Eladó családi ház

Herend

114.3 M Ft
5 szoba
108 m²
Tápiógyörgye
Eladó családi ház

Tápiógyörgye

24.99 M Ft
6 + 1 szoba
153 m²
Bozsok
Eladó családi ház

Bozsok

290 M Ft
6 szoba
370 m²
Bőny
Eladó sorház

Bőny

37.8 M Ft
3 szoba
63 m²
Nagyhegyes
Eladó családi ház

Nagyhegyes

54.99 M Ft
2 szoba
79 m²
Csesztreg
Eladó családi ház

Csesztreg

5.5 M Ft
3 szoba
90 m²
Mezőkeresztes
Eladó ikerház

Mezőkeresztes

13.5 M Ft
2 + 1 szoba
70 m²
Ceglédbercel
Eladó családi ház

Ceglédbercel

65.9 M Ft
3 szoba
97 m²