Aerogate Homes

Eladó családi ház
Kunadacs

Figyelem!

Ez az ingatlan a 2019.07.01-től induló falusi CSOK által támogatott településen található

+ 12 kép 1/15
29 900 000 Ft29.9 M Ft 249 167 Ft/m2
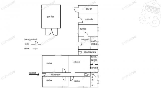
4 szoba
120 m2
építés éve:1979

Részletes adatok

Állapot: Átlagos
Telekméret: 1440 m2
Fűtés: Gázkazán
Energetikai besorolás: Nem adta meg a hirdető

Az OTP Bank lakáshitel ajánlataFizetett hirdetés

+36 30 686
Mihócza Zsolt
HOUSE36 Ingatlanbázis Kft.

Érdekel az OTP Bank kedvezményes lakáshitel ajánlata? *

* A kérdésre „Igen” válasz bejelölése esetén, az „Üzenet küldése” gombra kattintva kijelentem, hogy az OTP Bank Nyrt. Adatkezelési tájékoztatójának tartalmát megismertem és tudomásul vettem.

Eladó családi ház leírása

Kunadacson, központi elhelyezkedésű, csendes utcában eladó tágas családi ház nagy telekkel!
Eladásra kínálunk egy családi házat, amely kialakításának köszönhetően akár KÉT GENERÁCIÓ együttélésére is kiválóan alkalmas.!

A ház jellemzői;
- 2007-ben, tető teljes felújítás történt, a gerendákkal együtt cserélve
- 2 konyha, 2 fürdőszoba
- melléképületek és dupla garázs
- 1440 m2 telek
- 4 szoba, étkező

Figyelem az adatlap megbízóinktól kapott adatok alapján készült, pontosságáért felelősséget nem tudunk vállalni!
A HOUSE36 kínálatában található összes ingatlannal kapcsolatban tudok felvilágosítást nyújtani!
Az iroda legfrissebb, aktuális kínálatát a HOUSE36 saját weboldalán találja!

Hirdetés feltöltve: 2025. 10. 05. Utoljára módosítva: 2026. 01. 28.

Az ingatlan elhelyezkedése

Cím: Kunadacs

Eladó ingatlanok a környékről

Eladó családi ház
Eladó családi ház

Kecskemét

135 M Ft
5 szoba
220 m2
Eladó családi ház
Eladó családi ház

Kecskemét

199 M Ft
5 szoba
350 m2
Eladó nyaraló
Eladó nyaraló

Tiszakécske

13.9 M Ft
1 szoba
31 m2
Eladó családi ház
Eladó családi ház

Kecskemét

95.5 M Ft
4 szoba
94 m2
Eladó családi ház
Eladó családi ház

Kiskunfélegyháza

31.3 M Ft
1 + 1 szoba
41 m2
Eladó panellakás
Eladó panellakás

Kecskemét

47.5 M Ft
3 szoba
72 m2
Eladó családi ház
Eladó családi ház

Kecskemét

40 M Ft
4 szoba
100 m2
Eladó családi ház
Eladó családi ház

Kiskunhalas

47 M Ft
12428 m²
183 m2
Eladó telek
Eladó telek

Bugacpusztaháza, Pásztor utca

4.9 M Ft
1626 m²
1626 m2
Eladó panellakás
Eladó panellakás

Kecskemét

50.5 M Ft
3 szoba
64 m2
Eladó családi ház
Eladó családi ház

Kecskemét

93 M Ft
3 szoba
140 m2
Eladó családi ház
Eladó családi ház

Kiskunmajsa, Kiskunmajsa - Birtok

91.8 M Ft
5 szoba
170 m2
Eladó családi ház
Eladó családi ház

Kunadacs

34 M Ft
50000 m²
240 m2
Eladó családi ház
Eladó családi ház

Baja

209 M Ft
3 szoba
188 m2
Eladó családi ház
Eladó családi ház

Felsőlajos

56.99 M Ft
824 m²
124 m2
Eladó családi ház
Eladó családi ház

Kunadacs

210 M Ft
14 szoba
920 m2
Eladó családi ház
Eladó családi ház

Kecskemét, Alsószéktó, Alsószéktó 138

55 M Ft
5 szoba
91 m2
Eladó családi ház
Eladó családi ház

Kunadacs

26.9 M Ft
3 szoba
82 m2
Eladó családi ház
Eladó családi ház

Kecskemét

69 M Ft
7 szoba
156 m2
Eladó családi ház
Eladó családi ház

Kecskemét

95.5 M Ft
4 szoba
94 m2
Eladó családi ház
Eladó családi ház

Bácsalmás

25.5 M Ft
2 + 1 szoba
90 m2
Eladó garázs
Eladó garázs

Kecskemét

9.6 M Ft
16 m2
Eladó családi ház
Eladó családi ház

Kunadacs

73.9 M Ft
5 szoba
150 m2
Eladó telek
Eladó telek

Bugacpusztaháza, Pásztor utca

4.9 M Ft
1626 m²
1626 m2

Falusi CSOK ingatlanok

Eladó családi ház
Eladó családi ház

Balatonkeresztúr, Dózsa György u. 29

145 M Ft
5 szoba
150 m2
Eladó családi ház
Eladó családi ház

Verseg

54 M Ft
2 szoba
92 m2
Eladó családi ház
Eladó családi ház

Kaposgyarmat

695 M Ft
6 szoba
610 m2
Eladó családi ház
Eladó családi ház

Ásványráró, Egres utca

30 M Ft
2 szoba
70 m2
Eladó téglalakás
Eladó téglalakás

Herend

63 M Ft
3 szoba
69 m2
Eladó családi ház
Eladó családi ház

Újhartyán, Gödör utca

81.99 M Ft
3 szoba
110 m2
Eladó családi ház
Eladó családi ház

Hajmáskér

62.5 M Ft
3 szoba
85 m2
Eladó családi ház
Eladó családi ház

Darnózseli

79.9 M Ft
4 szoba
104 m2

Falusi CSOK ingatlanok

Eladó családi ház
Eladó családi ház

Szakmár

12.9 M Ft
3 + 1 szoba
90 m2
Eladó családi ház
Eladó családi ház

Gersekarát

21.9 M Ft
3 szoba
80 m2
Eladó téglalakás
Eladó téglalakás

Balatonszemes

91.5 M Ft
2 szoba
60 m2
Eladó családi ház
Eladó családi ház

Epöl, Petőfi Sándor tér

27.9 M Ft
4 szoba
90 m2
Eladó családi ház
Eladó családi ház

Ásványráró, Egres utca

35 M Ft
3 szoba
75 m2
Eladó családi ház
Eladó családi ház

Segesd

14.3 M Ft
3 szoba
100 m2
Eladó téglalakás
Eladó téglalakás

Csurgó

13.5 M Ft
2 szoba
54 m2
Eladó családi ház
Eladó családi ház

Hajmáskér

62.5 M Ft
3 szoba
85 m2