BAM Living

Eladó családi ház
Kisvarsány

Figyelem!

Ez az ingatlan a 2019.07.01-től induló falusi CSOK által támogatott településen található

+ 17 kép 1/20
13 500 000 Ft13.5 M Ft 135 000 Ft/m2
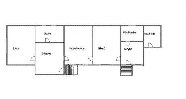
3 szoba
100 m²
építés éve:1970

Részletes adatok

Állapot: Felújítandó
Telekméret: 2062 m2
Fűtés: Gázkazán
Energetikai besorolás: Nem adta meg a hirdető

Az OTP Bank lakáshitel ajánlataFizetett hirdetés

+36 30 181
Kiss Zoltán Bence
OTPIP Nyíregyháza Hunyadi u.

Érdekel az OTP Bank kedvezményes lakáshitel ajánlata? *

* A kérdésre „Igen” válasz bejelölése esetén, az „Üzenet küldése” gombra kattintva kijelentem, hogy az OTP Bank Nyrt. Adatkezelési tájékoztatójának tartalmát megismertem és tudomásul vettem.

Eladó családi ház leírása

Falusi CSOK-ra alkalmas!

Kisvarsány csendes mellékutcájában eladó egy azonnal költözhető családi ház. A ház a hetvenes évek elején épült, majd a nyolcvanas években hozzá lett építve, így egy élhető méretű családi ház lett kialakítva.
A 3 szobás ház két bejárattal rendelkezik. Állapotát tekintve felújítandó. Az utóbbi években a nyílászárók cserélve lettek műanyagra.
A fűtése gázkazánnal és vegyestüzelésű kazánnal megoldott, radiátoros hőleadókkal.
A meleg vizet villanybojler állítja elő.
A kert nagy méretű, az öntözést fúrt kút segíti.

A ház már bútorozatlan, gyakortilag azonnal birtokba vehető.

Kisvarsány község az Észak-Alföldi régióban, Szabolcs-Szatmár-Bereg vármegyében, a Vásárosnaményi járásban. Vásárosnaménytől mintegy 3 km-re található.
Távlati tervek szerint a település mellett fog elhaladni az M3-as autópálya legkeletibb, az országhatárig vezető szakasza is.
A közúti tömegközlekedést a Volánbusz autóbuszai biztosítják.

Amennyiben a hirdetés felkeltette érdeklődését, kérdéseivel, megtekintéssel kapcsolatban keressen bizalommal!

A vásárláshoz az OTP Bank lakáshitel konstrukcióival, egyedi akciókkal és kamatkedvezményekkel állunk ügyfeleink rendelkezésére, DÍJMENTES ügyintézéssel.

Hirdetés feltöltve: 2026. 04. 18. Utoljára módosítva: 2026. 05. 10.

Az ingatlan elhelyezkedése

Cím: Kisvarsány

Eladó ingatlanok a környékről

Nyíregyháza, Belváros
Eladó ikerház

Nyíregyháza

79.9 M Ft
3 szoba
80 m²
Nagykálló
Eladó családi ház

Nagykálló

44.9 M Ft
4 szoba
168 m²
Nyírtass
Eladó családi ház

Nyírtass

21 M Ft
5 + 2 szoba
360 m²
Nyíregyháza
Eladó családi ház

Nyíregyháza

150 M Ft
2 szoba
120 m²
Nyíregyháza
Eladó családi ház

Nyíregyháza

159 M Ft
2 szoba
130 m²
Nyíregyháza
Eladó családi ház

Nyíregyháza

63.9 M Ft
2 + 1 szoba
100 m²
Tiszarád
Eladó családi ház

Tiszarád

22 M Ft
4 szoba
146 m²
Kisvarsány
Eladó családi ház

Kisvarsány

27 M Ft
3 szoba
116 m²
Nyíregyháza
Eladó családi ház

Nyíregyháza

100 M Ft
4 szoba
220 m²
Nyíregyháza
Eladó családi ház

Nyíregyháza

140 M Ft
3 szoba
190 m²
Nyíregyháza
Eladó családi ház

Nyíregyháza

65 M Ft
3 szoba
135 m²
Nyíregyháza
Eladó téglalakás

Nyíregyháza

59.9 M Ft
3 szoba
68 m²
Kisvarsány
Eladó családi ház

Kisvarsány

27 M Ft
3 szoba
116 m²
Nyíregyháza
Eladó téglalakás

Nyíregyháza

45.5 M Ft
3 szoba
58 m²
Nyíregyháza
Eladó családi ház

Nyíregyháza

190 M Ft
4 szoba
230 m²
Nyírpazony
Eladó ikerház

Nyírpazony

79.5 M Ft
3 szoba
97 m²
Rakamaz
Eladó családi ház

Rakamaz

20.9 M Ft
2 szoba
57 m²
Baktalórántháza
Eladó családi ház

Baktalórántháza

53 M Ft
4 + 2 szoba
150 m²
Nyíregyháza, Belváros
Eladó ikerház

Nyíregyháza

84.9 M Ft
3 szoba
90 m²
Nyíregyháza
Eladó panellakás

Nyíregyháza

43.2 M Ft
2 szoba
51 m²
Nyíregyháza, Belváros
Eladó ikerház

Nyíregyháza

73.9 M Ft
3 szoba
80 m²
Tiszaeszlár
Eladó családi ház

Tiszaeszlár

26.5 M Ft
3 szoba
104 m²
Nyíregyháza
Eladó családi ház

Nyíregyháza

89.9 M Ft
5 szoba
274 m²
Kemecse
Eladó családi ház

Kemecse

27 M Ft
2 + 1 szoba
96 m²

Falusi CSOK ingatlanok

Nagykarácsony
Eladó családi ház

Nagykarácsony

34.9 M Ft
3 szoba
112 m²
Újlengyel
Eladó családi ház

Újlengyel

75.9 M Ft
4 szoba
0 m²
Kondoros
Eladó családi ház

Kondoros

25 M Ft
4 szoba
150 m²
Mencshely
Eladó családi ház

Mencshely

99 M Ft
3 szoba
126 m²
Bakonycsernye
Eladó családi ház

Bakonycsernye

39 M Ft
3 szoba
350 m²
Mesteri
Eladó családi ház

Mesteri

29.7 M Ft
4 szoba
140 m²
Törtel
Eladó családi ház

Törtel

16 M Ft
3 szoba
87 m²
Balatonkenese
Eladó családi ház

Balatonkenese

165.7 M Ft
2 + 4 szoba
179 m²

Falusi CSOK ingatlanok

Mencshely
Eladó családi ház

Mencshely

99 M Ft
3 szoba
126 m²
Balatonszemes
Eladó téglalakás

Balatonszemes

119.9 M Ft
2 szoba
0 m²
Nagykarácsony
Eladó családi ház

Nagykarácsony

34.9 M Ft
3 szoba
112 m²
Rétság
Eladó téglalakás

Rétság

34.9 M Ft
2 szoba
55 m²
Kislippó
Eladó családi ház

Kislippó

17.99 M Ft
3 szoba
100 m²
Törtel
Eladó családi ház

Törtel

31 M Ft
3 szoba
66 m²
Nyáregyháza
Eladó ikerház

Nyáregyháza

75.9 M Ft
4 szoba
0 m²
Balatonederics
Eladó családi ház

Balatonederics

119 M Ft
3 szoba
140 m²