BAM Living

Eladó családi ház
Kisvarsány

Figyelem!

Ez az ingatlan a 2019.07.01-től induló falusi CSOK által támogatott településen található

+ 17 kép 1/20
13 500 000 Ft13.5 M Ft 135 000 Ft/m2
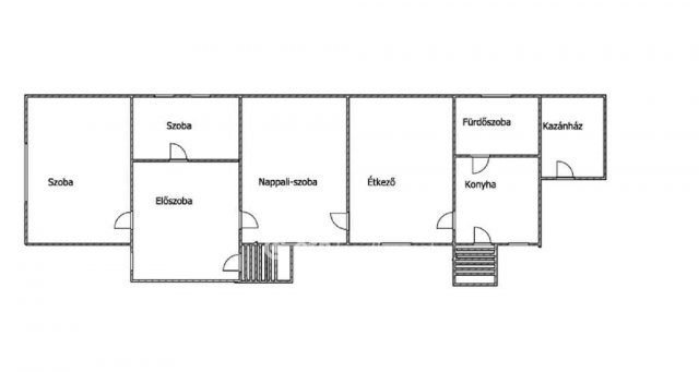
3 szoba
100 m²
építés éve:1970

Részletes adatok

Állapot: Felújítandó
Telekméret: 2062 m2
Fűtés: Gázkazán
Energetikai besorolás: E

Az OTP Bank lakáshitel ajánlataFizetett hirdetés

+36 70 415
Kozári Tünde
referens

Érdekel az OTP Bank kedvezményes lakáshitel ajánlata? *

* A kérdésre „Igen” válasz bejelölése esetén, az „Üzenet küldése” gombra kattintva kijelentem, hogy az OTP Bank Nyrt. Adatkezelési tájékoztatójának tartalmát megismertem és tudomásul vettem.

Eladó családi ház leírása

Falusi CSOK-ra alkalmas!

Kisvarsány csendes mellékutcájában eladó egy azonnal költözhető családi ház. A ház a hetvenes évek elején épült, majd a nyolcvanas években hozzá lett építve, így egy élhető méretű családi ház lett kialakítva.
A 3 szobás ház két bejárattal rendelkezik. Állapotát tekintve felújítandó. Az utóbbi években a nyílászárók cserélve lettek műanyagra.
A fűtése gázkazánnal és vegyestüzelésű kazánnal megoldott, radiátoros hőleadókkal.
A meleg vizet villanybojler állítja elő.
A kert nagy méretű, az öntözést fúrt kút segíti.

A ház már bútorozatlan, gyakortilag azonnal birtokba vehető.

Kisvarsány község az Észak-Alföldi régióban, Szabolcs-Szatmár-Bereg vármegyében, a Vásárosnaményi járásban. Vásárosnaménytől mintegy 3 km-re található.
Távlati tervek szerint a település mellett fog elhaladni az M3-as autópálya legkeletibb, az országhatárig vezető szakasza is.
A közúti tömegközlekedést a Volánbusz autóbuszai biztosítják.

Amennyiben a hirdetés felkeltette érdeklődését, kérdéseivel, megtekintéssel kapcsolatban keressen bizalommal!

A vásárláshoz az OTP Bank lakáshitel konstrukcióival, egyedi akciókkal és kamatkedvezményekkel állunk ügyfeleink rendelkezésére, DÍJMENTES ügyintézéssel.

Referencia szám: M324233

Hirdetés feltöltve: 2026. 04. 01. Utoljára módosítva: 2026. 05. 10.

Az ingatlan elhelyezkedése

Cím: Kisvarsány

Eladó ingatlanok a környékről

Nyíregyháza
Eladó családi ház

Nyíregyháza

68 M Ft
5 szoba
177 m²
Nyíregyháza
Eladó téglalakás

Nyíregyháza

61.5 M Ft
3 szoba
76 m²
Nyíregyháza
Eladó családi ház

Nyíregyháza

90 M Ft
3 + 1 szoba
100 m²
Nyíregyháza
Eladó panellakás

Nyíregyháza

40.9 M Ft
2 szoba
51 m²
Nyíregyháza
Eladó családi ház

Nyíregyháza

150 M Ft
2 szoba
120 m²
Kisvarsány
Eladó családi ház

Kisvarsány

13.5 M Ft
3 szoba
100 m²
Nyíregyháza
Eladó családi ház

Nyíregyháza

199.9 M Ft
6 szoba
500 m²
Kisvarsány
Eladó családi ház

Kisvarsány

16.2 M Ft
2 szoba
80 m²
Nyíregyháza, Belváros, Északi körút
Eladó téglalakás

Nyíregyháza

44.9 M Ft
2 szoba
57 m²
Mátészalka
Eladó téglalakás

Mátészalka

67 M Ft
2 szoba
81 m²
Nyíregyháza
Eladó telek

Nyíregyháza

32.9 M Ft
26.21 ha
0 m²
Nyírmada
Eladó családi ház

Nyírmada

31 M Ft
5 szoba
160 m²
Gégény
Eladó családi ház

Gégény

31.9 M Ft
5 szoba
164 m²
Nyírtelek
Eladó családi ház

Nyírtelek

130 M Ft
3 szoba
159 m²
Nyíregyháza
Eladó családi ház

Nyíregyháza

69.9 M Ft
3 szoba
140 m²
Kemecse
Eladó családi ház

Kemecse

27 M Ft
2 + 1 szoba
96 m²
Újfehértó
Eladó családi ház

Újfehértó

27.99 M Ft
2 szoba
89 m²
Nyíregyháza
Eladó családi ház

Nyíregyháza

60 M Ft
3 szoba
100 m²
Kisvarsány
Eladó családi ház

Kisvarsány

16.2 M Ft
2 szoba
80 m²
Nyíregyháza
Eladó téglalakás

Nyíregyháza

74.7 M Ft
2 szoba
78 m²
Kótaj
Eladó családi ház

Kótaj

42.9 M Ft
3 szoba
72 m²
Nyíregyháza
Eladó telek

Nyíregyháza

16.9 M Ft
1495 m²
0 m²
Kisvarsány
Eladó családi ház

Kisvarsány

13.5 M Ft
3 szoba
100 m²
Kisvárda
Eladó téglalakás

Kisvárda

30.99 M Ft
2 + 1 szoba
62 m²

Falusi CSOK ingatlanok

Rétság
Eladó téglalakás

Rétság

34.9 M Ft
2 szoba
55 m²
Parád
Eladó családi ház

Parád

55.9 M Ft
3 szoba
100 m²
Tab, Rákóczi utca 45
Eladó családi ház

Tab

17.13 M Ft
1 + 1 szoba
105 m²
Gyékényes
Eladó családi ház

Gyékényes

16.9 M Ft
3 szoba
83 m²
Vatta
Eladó családi ház

Vatta

28.3 M Ft
2 szoba
56 m²
Egerbakta
Eladó családi ház

Egerbakta

43.9 M Ft
5 + 1 szoba
160 m²
Balatonszemes
Eladó téglalakás

Balatonszemes

119.9 M Ft
2 szoba
0 m²
Porva
Eladó családi ház

Porva

74.6 M Ft
3 szoba
115 m²

Falusi CSOK ingatlanok

Mesteri
Eladó családi ház

Mesteri

29.7 M Ft
4 szoba
140 m²
Rakamaz
Eladó családi ház

Rakamaz

86.9 M Ft
5 szoba
280 m²
Igal
Eladó családi ház

Igal

45.9 M Ft
5 szoba
280 m²
Rétság
Eladó téglalakás

Rétság

39.9 M Ft
2 szoba
55 m²
Balatonszepezd
Eladó családi ház

Balatonszepezd

299 M Ft
5 szoba
220 m²
Hegyeshalom, Margaréta utca 12
Eladó téglalakás

Hegyeshalom

32.89 M Ft
1 szoba
27 m²
Arló, Mátyás Király utca
Eladó családi ház

Arló

14.99 M Ft
2 szoba
66 m²
Bázakerettye
Eladó családi ház

Bázakerettye

24 M Ft
2 szoba
57 m²