Astora Olive Club House

Eladó családi ház
Kisvarsány

Figyelem!

Ez az ingatlan a 2019.07.01-től induló falusi CSOK által támogatott településen található

+ 17 kép 1/20
13 500 000 Ft13.5 M Ft 135 000 Ft/m2
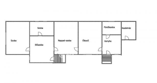
3 szoba
100 m²
építés éve:1970

Részletes adatok

Állapot: Felújítandó
Telekméret: 2062 m2
Fűtés: Gázkazán
Energetikai besorolás: Nem adta meg a hirdető

Az OTP Bank lakáshitel ajánlataFizetett hirdetés

+36 70 415
Kozári Tünde
referens

Érdekel az OTP Bank kedvezményes lakáshitel ajánlata? *

* A kérdésre „Igen” válasz bejelölése esetén, az „Üzenet küldése” gombra kattintva kijelentem, hogy az OTP Bank Nyrt. Adatkezelési tájékoztatójának tartalmát megismertem és tudomásul vettem.

Eladó családi ház leírása

Falusi CSOK-ra alkalmas!

Kisvarsány csendes mellékutcájában eladó egy azonnal költözhető családi ház. A ház a hetvenes évek elején épült, majd a nyolcvanas években hozzá lett építve, így egy élhető méretű családi ház lett kialakítva.
A 3 szobás ház két bejárattal rendelkezik. Állapotát tekintve felújítandó. Az utóbbi években a nyílászárók cserélve lettek műanyagra.
A fűtése gázkazánnal és vegyestüzelésű kazánnal megoldott, radiátoros hőleadókkal.
A meleg vizet villanybojler állítja elő.
A kert nagy méretű, az öntözést fúrt kút segíti.

A ház már bútorozatlan, gyakortilag azonnal birtokba vehető.

Kisvarsány község az Észak-Alföldi régióban, Szabolcs-Szatmár-Bereg vármegyében, a Vásárosnaményi járásban. Vásárosnaménytől mintegy 3 km-re található.
Távlati tervek szerint a település mellett fog elhaladni az M3-as autópálya legkeletibb, az országhatárig vezető szakasza is.
A közúti tömegközlekedést a Volánbusz autóbuszai biztosítják.

Amennyiben a hirdetés felkeltette érdeklődését, kérdéseivel, megtekintéssel kapcsolatban keressen bizalommal!

A vásárláshoz az OTP Bank lakáshitel konstrukcióival, egyedi akciókkal és kamatkedvezményekkel állunk ügyfeleink rendelkezésére, DÍJMENTES ügyintézéssel.

Hirdetés feltöltve: 2026. 03. 07. Utoljára módosítva: 2026. 04. 01.

Az ingatlan elhelyezkedése

Cím: Kisvarsány

Eladó ingatlanok a környékről

Apagy
Eladó családi ház

Apagy

22.5 M Ft
2 + 1 szoba
66 m²
Kisvarsány
Eladó családi ház

Kisvarsány

16.2 M Ft
2 szoba
80 m²
Nyíregyháza
Eladó ikerház

Nyíregyháza

79.9 M Ft
4 szoba
123 m²
Nyíregyháza
Eladó családi ház

Nyíregyháza

159 M Ft
2 szoba
130 m²
Nyíregyháza
Eladó sorház

Nyíregyháza

84.9 M Ft
3 + 1 szoba
160 m²
Nyíregyháza
Eladó családi ház

Nyíregyháza

150 M Ft
2 szoba
120 m²
Nyíregyháza
Eladó téglalakás

Nyíregyháza

45.99 M Ft
1 + 1 szoba
45 m²
Nyíregyháza
Eladó családi ház

Nyíregyháza

68 M Ft
5 szoba
177 m²
Nyírtelek
Eladó családi ház

Nyírtelek

130 M Ft
3 szoba
159 m²
Nyírtelek
Eladó családi ház

Nyírtelek

67.999 M Ft
2 + 3 szoba
130 m²
Kemecse
Eladó családi ház

Kemecse

34.9 M Ft
2 szoba
100 m²
Nyíregyháza
Eladó családi ház

Nyíregyháza

100 M Ft
4 szoba
220 m²
Ajak
Eladó családi ház

Ajak

36 M Ft
3 szoba
105 m²
Kisvárda
Eladó téglalakás

Kisvárda

42 M Ft
2 szoba
56 m²
Nyíregyháza
Eladó családi ház

Nyíregyháza

90 M Ft
5 szoba
210 m²
Mátészalka
Eladó téglalakás

Mátészalka

31.9 M Ft
1 + 1 szoba
47 m²
Nyíregyháza
Eladó ikerház

Nyíregyháza

119 M Ft
2 + 1 szoba
112 m²
Nyíregyháza
Eladó téglalakás

Nyíregyháza

63 M Ft
2 + 1 szoba
65 m²
Máriapócs
Eladó családi ház

Máriapócs

20.7 M Ft
3 szoba
124 m²
Nyíregyháza
Eladó családi ház

Nyíregyháza

66.9 M Ft
3 szoba
86 m²
Nyíregyháza
Eladó sorház

Nyíregyháza

82.9 M Ft
4 + 1 szoba
166 m²
Nyíregyháza
Eladó családi ház

Nyíregyháza

98 M Ft
4 szoba
125 m²
Kisvarsány
Eladó családi ház

Kisvarsány

27 M Ft
3 szoba
116 m²
Nyíregyháza
Eladó ikerház

Nyíregyháza

161.5 M Ft
3 szoba
153 m²

Falusi CSOK ingatlanok

Kiszombor, Óbébai utca
Eladó családi ház

Kiszombor

32.9 M Ft
4 szoba
140 m²
Nagytevel
Eladó családi ház

Nagytevel

34.9 M Ft
3 szoba
110 m²
Ladánybene
Eladó családi ház

Ladánybene

49.99 M Ft
3 szoba
80 m²
Magyarkeszi
Eladó családi ház

Magyarkeszi

29.5 M Ft
3 + 1 szoba
80 m²
Beremend, 7827 Beremend, Petőfi Sándor utca 10
Eladó családi ház

Beremend

11.95 M Ft
1 + 1 szoba
124 m²
Páka
Eladó családi ház

Páka

29.99 M Ft
3 szoba
121 m²
Bag
Eladó ikerház

Bag

93 M Ft
3 szoba
67 m²
Hegyeshalom, Margaréta utca 12
Eladó téglalakás

Hegyeshalom

50.09 M Ft
2 szoba
43 m²

Falusi CSOK ingatlanok

Szigetújfalu
Eladó családi ház

Szigetújfalu

66 M Ft
3 szoba
118 m²
Mihályháza
Eladó családi ház

Mihályháza

2.9 M Ft
1 szoba
42 m²
Hahót
Eladó családi ház

Hahót

48 M Ft
4 + 1 szoba
110 m²
Balatonszemes
Eladó családi ház

Balatonszemes

95 M Ft
4 szoba
82 m²
Bak
Eladó családi ház

Bak

55 M Ft
5 szoba
140 m²
Beremend, 7827 Beremend, Petőfi Sándor utca 10
Eladó családi ház

Beremend

11.95 M Ft
1 + 1 szoba
124 m²
Bag
Eladó ikerház

Bag

93 M Ft
3 szoba
68 m²
Szigetújfalu
Eladó családi ház

Szigetújfalu

71.65 M Ft
2 + 1 szoba
81 m²