BAM Living

Eladó családi ház
Kiskunfélegyháza

+ 8 kép 1/11
42 000 000 Ft42 M Ft 287 671 Ft/m2
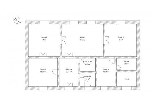
4 szoba
146 m2
építés éve:1925

Részletes adatok

Állapot: Felújítandó
Telekméret: 866 m2
Fűtés: Egyéb
Parkolás: Kocsibeálló
Energetikai besorolás: Nem adta meg a hirdető

Az OTP Bank lakáshitel ajánlataFizetett hirdetés

+36 30 667
Kocsis Zoltán
STOP Ingatlan

Érdekel az OTP Bank kedvezményes lakáshitel ajánlata? *

* A kérdésre „Igen” válasz bejelölése esetén, az „Üzenet küldése” gombra kattintva kijelentem, hogy az OTP Bank Nyrt. Adatkezelési tájékoztatójának tartalmát megismertem és tudomásul vettem.

Eladó családi ház leírása

Otthonok és Megoldások = Boldogság!

Felújítandó polgári ház kiváló elhelyezkedéssel – sokoldalú lehetőség belvárosban!

Eladásra kínálunk egy kivételes adottságokkal rendelkező, felújítandó állapotú polgári jellegű családi házat frekventált, belvárosi környezetben. Az ingatlan egy 866 m²-es telken helyezkedik el, jelenleg mintegy 146 m²-es alapterülettel rendelkezik.

A ház a múlt század elején épült, hangulatos homlokzata megőrizhető, ugyanakkor a telek adottságai lehetőséget kínálnak új épületek kialakítására is. Ideális választás lehet mindazoknak, akik saját igényeikre szabott otthont alakítanának ki, de befektetők, vállalkozók számára is remek lehetőség: akár iroda, rendelő, szolgáltatóegység vagy vendéglátóhely is megvalósítható.

A környék infrastruktúrája kiemelkedő, a központi elhelyezkedés kiváló megközelíthetőséget és sokoldalú hasznosítást tesz lehetővé – mind lakó-, mind üzleti célra.

További részletekért hívjon bizalommal! ...TOVÁBBI, TÖBBEZRES INGATLAN KÍNÁLAT: www.gdn-ingatlan.hu - GDN azonosító: 383430

Hirdetés feltöltve: 2025. 06. 06. Utoljára módosítva: 2025. 11. 04.

4 szobás családi házak ára Kiskunfélegyházán

Ebből az összehasonlításból megtudhatod, hogyan viszonyul a lakás ára a környékbeli családi házak átlagos árához. Ez nem azt jelenti, hogy ennyivel olcsóbb vagy drágább, mint amennyit a lakás ér, hanem hogy ennyivel tér el a környékbeli átlagtól.

Ennek a m² ára
Kiskunfélegyháza m² ár
288 e Ft
447 e Ft 36%
Ennek az ára
Kiskunfélegyháza átlagár
42 M Ft m Ft
53.3 m Ft 21%

Az ingatlan elhelyezkedése

Cím: Kiskunfélegyháza

Eladó családi házak a környékről

Eladó családi ház
Eladó családi ház

Kiskunmajsa, Kiskunmajsa - Birtok

91.8 M Ft
5 szoba
170 m2
Eladó családi ház
Eladó családi ház

Kiskunfélegyháza

32 M Ft
4 szoba
110 m2
Eladó családi ház
Eladó családi ház

Kiskunmajsa, 1

60.9 M Ft
6 szoba
220 m2
Eladó családi ház
Eladó családi ház

Kiskunfélegyháza

14.9 M Ft
3 szoba
70 m2
Eladó családi ház
Eladó családi ház

Kiskunfélegyháza

17.9 M Ft
2 + 1 szoba
78 m2
Eladó családi ház
Eladó családi ház

Kiskunfélegyháza

32 M Ft
4 szoba
200 m2
Eladó családi ház
Eladó családi ház

Kiskunfélegyháza

62.59 M Ft
4 szoba
109 m2
Eladó családi ház
Eladó családi ház

Kecskemét, Alsószéktó, Alsószéktó 138

65 M Ft
5 szoba
98 m2
Eladó családi ház
Eladó családi ház

Kiskunfélegyháza

36 M Ft
3 szoba
90 m2
Eladó családi ház
Eladó családi ház

Kunadacs

210 M Ft
14 szoba
920 m2
Eladó családi ház
Eladó családi ház

Kiskunfélegyháza

8 M Ft
2 szoba
60 m2
Eladó családi ház
Eladó családi ház

Kiskunfélegyháza

56.945 M Ft
1 szoba
96 m2
Eladó családi ház
Eladó családi ház

Bácsalmás

46.5 M Ft
5 szoba
232 m2
Eladó családi ház
Eladó családi ház

Kiskunfélegyháza

92.28 M Ft
5 szoba
173 m2
Eladó családi ház
Eladó családi ház

Kecskemét, Alsószéktó, Alsószéktó 138

55 M Ft
5 szoba
91 m2
Eladó családi ház
Eladó családi ház

Tiszakécske, Bajza utca

52.5 M Ft
3 szoba
110 m2
Eladó családi ház
Eladó családi ház

Kiskunfélegyháza

36 M Ft
3 szoba
90 m2
Eladó családi ház
Eladó családi ház

Kiskunfélegyháza

55.265 M Ft
4 szoba
93 m2
Eladó családi ház
Eladó családi ház

Kiskunfélegyháza

14.9 M Ft
3 szoba
70 m2
Eladó családi ház
Eladó családi ház

Kecskemét

93 M Ft
3 szoba
140 m2
Eladó családi ház
Eladó családi ház

Dunavecse

88.49 M Ft
8 szoba
378 m2
Eladó családi ház
Eladó családi ház

Kiskunfélegyháza

30 M Ft
3 szoba
110 m2
Eladó családi ház
Eladó családi ház

Kiskunfélegyháza

54.15 M Ft
5 szoba
91 m2
Eladó családi ház
Eladó családi ház

Fajsz

12 M Ft
3 szoba
128 m2

Falusi CSOK ingatlanok

Eladó családi ház
Eladó családi ház

Hernádnémeti

19.9 M Ft
2 szoba
62 m2
Eladó családi ház
Eladó családi ház

Tápszentmiklós

64.9 M Ft
5 szoba
110 m2
Eladó családi ház
Eladó családi ház

Bócsa

68 M Ft
3 szoba
100 m2
Eladó családi ház
Eladó családi ház

Tiszaalpár

39.5 M Ft
2 szoba
67 m2
Eladó családi ház
Eladó családi ház

Mályi

89.9 M Ft
4 szoba
100 m2
Eladó családi ház
Eladó családi ház

Kunágota

15.5 M Ft
2 + 1 szoba
102 m2
Eladó családi ház
Eladó családi ház

Tápiógyörgye

34.9 M Ft
3 szoba
85 m2
Eladó családi ház
Eladó családi ház

Varbóc

7.9 M Ft
2 szoba
86 m2