Astora Márvány8

Eladó családi ház
Kecskemét

+ 17 kép 1/20
149 900 000 Ft149.9 M Ft 724 155 Ft/m2
5 szoba
207 m²
építés éve:2014

Részletes adatok

Állapot: Felújított
Telekméret: 2878 m2
Fűtés: Gázkazán
Komfort: Összkomfortos
Energetikai besorolás: Nem adta meg a hirdető

Az OTP Bank lakáshitel ajánlataFizetett hirdetés

+36 1 690
Szabó-Lévai Annamária
Duna House Kispest

Érdekel az OTP Bank kedvezményes lakáshitel ajánlata? *

* A kérdésre „Igen” válasz bejelölése esetén, az „Üzenet küldése” gombra kattintva kijelentem, hogy az OTP Bank Nyrt. Adatkezelési tájékoztatójának tartalmát megismertem és tudomásul vettem.

Eladó családi ház leírása

Eladásra kínálunk egy különleges, 2014-ben épült családi házat Kecskeméten, amely minden részletében a minőséget, igényességet és az átgondolt tervezést képviseli.

A ház betonút mellett, csendes, rendezett környezetben helyezkedik el, egy 2878 m²-es, parkosított telken, ahol a zöld növényzet, az öntözőrendszerrel gondozott kert és a tágas terek azonnal magával ragadják az embert.

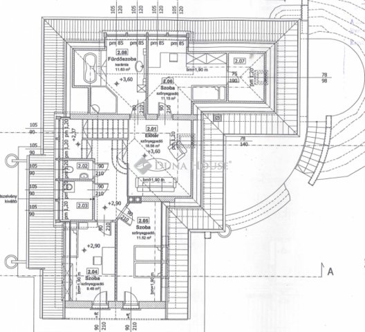
A földszinti lakótér (81 m²) központi eleme a napfényes nappali és étkező, amelyhez közvetlenül kapcsolódik a dupla garázs (34 m2), egy praktikus előtér és vendég toalett.

A tetőtér (94 m2) egyedi megoldása két eltérő padlószintje nemcsak különleges hangulatot, hanem kiváló térkihasználást is biztosít:

az alsó szinten két hálószoba, toalett és háztartási helyiség,

a felső szinten hálószoba, fürdőszoba és egy hangulatos közösségi tér várja új tulajdonosait.

A pincetér (129 m2) jelentős része lakótér jellegű, mely teraszkapcsolattal rendelkezik így akár önálló lakrésznek, fitneszteremnek, irodának vagy kozmetikának is ideális. A szinten fürdőszoba és mosdó is található, így teljes értékű élettérként funkcionál.

Az 53 m² összterületű teraszok a gondosan ápolt kertre néznek, igazi nyugalomszigetet teremtve. A ház riasztóval, klímával, hőszigetelt fa nyílászárókkal felszerelt, építése során pedig természetes, időtálló anyagokat használtak.

Ez az otthon tökéletes választás azoknak, akik minőségi kivitelezésű, akár többgenerációs családi házat keresnek Kecskemét kedvelt térségében, ahol a nyugalom és az elegancia kéz a kézben jár.
Az ingatlan hitelezhető (CSOK+), kifüggesztés nem szükséges.

Az energetikai tanúsítvány készítése folyamatban van, amint rendelkezésre áll, úgy azzal a hirdetés frissítésre kerül.

Irányár: 149900000 Ft
Érd.: Szabó-Lévai Annamária, +36 70 307 7503

Referencia szám: HZ085585-ZE

Hirdetés feltöltve: 2026. 03. 03. Utoljára módosítva: 2026. 05. 16.

5 szobás családi házak ára Kecskeméten

Ebből az összehasonlításból megtudhatod, hogyan viszonyul a lakás ára a környékbeli családi házak átlagos árához. Ez nem azt jelenti, hogy ennyivel olcsóbb vagy drágább, mint amennyit a lakás ér, hanem hogy ennyivel tér el a környékbeli átlagtól.

Ennek a m² ára
Kecskemét m² ár
724 e Ft
737 e Ft 2%
Ennek az ára
Kecskemét átlagár
149.9 M Ft m Ft
155.1 m Ft 3%

Az ingatlan elhelyezkedése

Cím: Kecskemét

Eladó családi házak a környékről

Kecskemét
Eladó családi ház

Kecskemét

259 M Ft
3 + 7 szoba
266 m²
Bácsalmás
Eladó családi ház

Bácsalmás

25.5 M Ft
2 + 1 szoba
90 m²
Kecskemét
Eladó családi ház

Kecskemét

93 M Ft
3 szoba
140 m²
Kecskemét, Alsószéktó, Alsószéktó 138
Eladó családi ház

Kecskemét

65 M Ft
5 szoba
98 m²
Kecskemét
Eladó családi ház

Kecskemét

42 M Ft
4 szoba
180 m²
Kecskemét
Eladó családi ház

Kecskemét

219 M Ft
5 szoba
190 m²
Kecskemét
Eladó családi ház

Kecskemét

219 M Ft
5 szoba
190 m²
Kunadacs
Eladó családi ház

Kunadacs

210 M Ft
14 szoba
920 m²
Kecskemét, Alsószéktó, Alsószéktó 138
Eladó családi ház

Kecskemét

65 M Ft
5 szoba
98 m²
Kecskemét
Eladó családi ház

Kecskemét

330 M Ft
1 szoba
470 m²
Kecskemét
Eladó családi ház

Kecskemét

119.8 M Ft
5 szoba
138 m²
Kecskemét
Eladó családi ház

Kecskemét

6.9 M Ft
1 szoba
30 m²
Kecskemét
Eladó családi ház

Kecskemét

24.9 M Ft
3 szoba
62 m²
Kecskemét
Eladó családi ház

Kecskemét

135 M Ft
5 szoba
220 m²
Kecskemét
Eladó családi ház

Kecskemét

9.9 M Ft
2 szoba
30 m²
Kiskunhalas
Eladó családi ház

Kiskunhalas

47 M Ft
1.24 ha
183 m²
Kecskemét, Alsószéktó, Alsószéktó 138
Eladó családi ház

Kecskemét

63 M Ft
5 szoba
91 m²
Kecskemét, Alsószéktó, Alsószéktó 138
Eladó családi ház

Kecskemét

58 M Ft
5 szoba
92 m²
Kecskemét
Eladó családi ház

Kecskemét

165 M Ft
301 m²
200 m²
Kecskemét
Eladó családi ház

Kecskemét

93 M Ft
3 szoba
140 m²
Kecskemét
Eladó családi ház

Kecskemét

39.9 M Ft
2 szoba
110 m²
Kecskemét
Eladó családi ház

Kecskemét

119.8 M Ft
5 szoba
138 m²
Kecskemét, Alsószéktó, Alsószéktó 138
Eladó családi ház

Kecskemét

55 M Ft
5 szoba
91 m²
Kecskemét
Eladó családi ház

Kecskemét

224.9 M Ft
5 szoba
330 m²

Falusi CSOK ingatlanok

Bak
Eladó családi ház

Bak

49.9 M Ft
5 szoba
140 m²
Balatonszemes
Eladó téglalakás

Balatonszemes

91.5 M Ft
2 szoba
0 m²
Balatonszemes, Ady E. utca 6
Eladó téglalakás

Balatonszemes

108.9 M Ft
2 + 1 szoba
63 m²
Cece
Eladó családi ház

Cece

69.8 M Ft
4 szoba
215 m²
Bag
Eladó családi ház

Bag

16.9 M Ft
6 szoba
160 m²
Tokaj
Eladó családi ház

Tokaj

125 M Ft
9 szoba
230 m²
Maklár
Eladó családi ház

Maklár

99 M Ft
6 szoba
230 m²
Mikebuda
Eladó családi ház

Mikebuda

45.9 M Ft
7 szoba
120 m²