Astora Art House

Eladó családi ház
Kápolnásnyék

+ 17 kép 1/20
159 900 000 Ft159.9 M Ft 726 818 Ft/m2
4 szoba
220 m²
építés éve:2006

Részletes adatok

Állapot: Felújított
Telekméret: 1428 m2
Fűtés: Gázkazán
Komfort: Összkomfortos
Energetikai besorolás: Nem adta meg a hirdető

Az OTP Bank lakáshitel ajánlataFizetett hirdetés

+36 70 681
Pap Éva Zsuzsanna
OTPip - Érd Bajcsy-Zsilinszky út 160 - OTP Ingatlanpont Iroda

Érdekel az OTP Bank kedvezményes lakáshitel ajánlata? *

* A kérdésre „Igen” válasz bejelölése esetén, az „Üzenet küldése” gombra kattintva kijelentem, hogy az OTP Bank Nyrt. Adatkezelési tájékoztatójának tartalmát megismertem és tudomásul vettem.

Eladó családi ház leírása

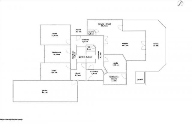
Fejér megye Kápolnásnyék 220 nm-es egyszintes családi ház eladó. A 2006-ban épült, tégla falazatú, szigetelt ingatlan a település csendes, családi házas övezetében egy 1428 nm-es gyönyörűen parkosított, folyamatosan gondozott telken helyezkedik el. A családi házat tágas terek jellemzik, amerikai konyhás nappali, 3 szoba, 1 kamra, 1 kádas fürdőszoba, 1 zuhanyzós fürdőszoba szaunával,1 külön WC, gardróbszoba, 2 tároló található benne, valamint tartozik hozzá egy 47,2 nm-es garázs, 4,3 m-es terasz és egy 55 nm-es fedett terasz jacuzzival. Az ingatlan hasznos alapterülete 167,6 nm, melyhez a garázs és a két fedett terasz fele bele lett számolva a meghirdetett alapterületbe, viszont a különálló melléképületek nem. Az ingatlan jogilag rendezett és tehermentes. A telek végében két különálló melléképület található, melyből az egyik tárolásra, a másik önálló kétszintes kisház 58 nm-es, akár kiadásra, otthoni vállalkozásnak, műhelynek, családi rendezvényeknek adhat otthon. A garázson felül a térkövezett udvaron több autó számára beállási lehetőség biztosított, a telken öntözőrendszer, bográcsozó, jacuzzi is található, Az összes nyílászáró műanyag és redőnnyel felszerelt. A fűtésről gázkazán gondoskodik, a nappaliban padlófűtéses, a többi helyiségben radiátoros hő leadással, ezenfelül a nappaliban található egy hangulatos cserépkályha, az ingatlanban pedig 3 db klíma. Az épület 6 kw-os napelemmel felszerelt. Nyugodt, biztonságos környék, átmenőforgalomtól mentes utcában, a vasútállomás 15 perces kényelmes sétával elérhető. Amennyiben felkeltette az érdeklődését, további kérdések esetén várom hívását, akár hétvégén is! Kedvezményes kamatú hitellel, teljes körű ügyintézéssel segítjük ügyfeleinket díjtalanul, az adásvétel és ingatlanátírás teljes lebonyolításával.

Az energetikai tanúsítvány készítése folyamatban van, amint rendelkezésre áll, úgy azzal a hirdetés frissítésre kerül.

Hirdetés feltöltve: 2026. 04. 08. Utoljára módosítva: 2026. 05. 20.

4 szobás családi házak ára Kápolnásnyéken

Ebből az összehasonlításból megtudhatod, hogyan viszonyul a lakás ára a környékbeli családi házak átlagos árához. Ez nem azt jelenti, hogy ennyivel olcsóbb vagy drágább, mint amennyit a lakás ér, hanem hogy ennyivel tér el a környékbeli átlagtól.

Ennek a m² ára
Kápolnásnyék m² ár
727 e Ft
570 e Ft -27%
Ennek az ára
Kápolnásnyék átlagár
159.9 M Ft m Ft
80.9 m Ft -98%

Az ingatlan elhelyezkedése

Cím: Kápolnásnyék

Eladó családi házak a környékről

Velence, Liget utca
Eladó családi ház

Velence

149 M Ft
2 + 2 szoba
150 m²
Székesfehérvár
Eladó családi ház

Székesfehérvár

69.9 M Ft
3 szoba
95 m²
Velence
Eladó családi ház

Velence

80 M Ft
6 szoba
200 m²
Kápolnásnyék
Eladó családi ház

Kápolnásnyék

59.9 M Ft
1 + 1 szoba
68 m²
Kápolnásnyék
Eladó családi ház

Kápolnásnyék

189 M Ft
6 szoba
273 m²
Kápolnásnyék
Eladó családi ház

Kápolnásnyék

125 M Ft
6 szoba
150 m²
Gánt, Gánti út
Eladó családi ház

Gánt

29.9 M Ft
2 + 1 szoba
40 m²
Kápolnásnyék
Eladó családi ház

Kápolnásnyék

132.5 M Ft
1 + 4 szoba
156 m²
Kápolnásnyék
Eladó családi ház

Kápolnásnyék

125 M Ft
6 szoba
150 m²
Kápolnásnyék
Eladó családi ház

Kápolnásnyék

75 M Ft
4 szoba
92 m²
Bicske, Baboshegy
Eladó családi ház

Bicske

26.9 M Ft
1 szoba
30 m²
Pusztaszabolcs
Eladó családi ház

Pusztaszabolcs

143.9 M Ft
4 szoba
149 m²
Székesfehérvár
Eladó családi ház

Székesfehérvár

59 M Ft
3 szoba
100 m²
Kápolnásnyék
Eladó családi ház

Kápolnásnyék

59.9 M Ft
1 + 1 szoba
68 m²
Kápolnásnyék
Eladó családi ház

Kápolnásnyék

490 M Ft
11 + 3 szoba
700 m²
Szabadbattyán
Eladó családi ház

Szabadbattyán

357.518 M Ft
9 + 2 szoba
1053 m²
Lepsény, Róka sétány
Eladó családi ház

Lepsény

64.9 M Ft
5 + 1 szoba
203 m²
Csákvár
Eladó családi ház

Csákvár

29.9 M Ft
4 szoba
120 m²
Kápolnásnyék
Eladó családi ház

Kápolnásnyék

118.6 M Ft
1 + 4 szoba
136 m²
Kápolnásnyék
Eladó családi ház

Kápolnásnyék

159.9 M Ft
4 szoba
220 m²
Kápolnásnyék, Kossuth Lajos út 5
Eladó családi ház

Kápolnásnyék

39.15 M Ft
1 + 1 szoba
115 m²
Kápolnásnyék
Eladó családi ház

Kápolnásnyék

55.9 M Ft
1 + 1 szoba
35 m²
Bakonycsernye
Eladó családi ház

Bakonycsernye

39 M Ft
3 szoba
350 m²
Velence, Liget utca
Eladó családi ház

Velence

99.8 M Ft
2 + 1 szoba
134 m²

Falusi CSOK ingatlanok

Pannonhalma
Eladó családi ház

Pannonhalma

129.7 M Ft
5 szoba
142 m²
Dunaegyháza
Eladó családi ház

Dunaegyháza

29.49 M Ft
3 szoba
70 m²
Balatonszárszó
Eladó családi ház

Balatonszárszó

178 M Ft
6 szoba
260 m²
Szigliget, Soponyai út
Eladó ikerház

Szigliget

429 M Ft
7 + 2 szoba
212 m²
Balatonszemes
Eladó téglalakás

Balatonszemes

125.2 M Ft
2 szoba
50 m²
Bakonycsernye
Eladó családi ház

Bakonycsernye

39 M Ft
3 szoba
350 m²
Mikepércs
Eladó családi ház

Mikepércs

56 M Ft
3 + 1 szoba
87 m²
Szabadbattyán
Eladó családi ház

Szabadbattyán

139.9 M Ft
4 szoba
201 m²