Pesti Házak

Eladó családi ház
Kápolnásnyék

+ 2 kép 1/5
74 000 000 Ft74 M Ft 740 000 Ft/m2
3 szoba
100 m2
építés éve:2026

Részletes adatok

Telekméret: 750 m2
Fűtés: Elektromos
Energetikai besorolás: Nem adta meg a hirdető
Zenga Premier

Friss hirdetések, amiket nem találsz meg más ingatlankereső portálon.

Fedezd fel elsőként a Zenga Premier címkés eladó ingatlanokat!

További részletek a zenga.hu-n

Az OTP Bank lakáshitel ajánlataFizetett hirdetés

+36 70 884
Lepsényi Kornél
referens

Érdekel az OTP Bank kedvezményes lakáshitel ajánlata? *

* A kérdésre „Igen” válasz bejelölése esetén, az „Üzenet küldése” gombra kattintva kijelentem, hogy az OTP Bank Nyrt. Adatkezelési tájékoztatójának tartalmát megismertem és tudomásul vettem.

Eladó családi ház leírása

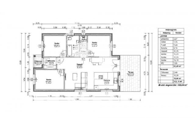
Eladó Kápolnásnyéken egy új építésű, modern 100 nm-es családi ház egy 750 nm-es telken!
Az ingatlan kiváló elrendezésének köszönhetően kényelmes életteret biztosít: három ideális méretű hálószoba, világos amerikai konyhás nappali, külön WC, valamint egy fürdőszoba az ingatlan beosztása. A házhoz továbbá egy 18 nm-es terasz is kapcsolódik, amely tökéletes helyszín lehet a pihenéshez vagy baráti összejövetelekhez.

A fűtés korszerű elektromos rendszerrel megoldott, a parkolás pedig a telken belül több autó számára is kényelmesen biztosított.

Ha szeretne egy modern, jól megtervezett otthont Kápolnásnyék kedvelt részén, ne habozzon kapcsolatba lépni velem! Akár hétvégén is elérhető vagyok.

Ügyfeleink részére díjmentesen biztosítunk előzetes hitelbírálatot, piaci hitelek esetén egyedi kamatot, valamint teljes körű ügyintézést egészen a birtokbaadásig!

Hirdetés feltöltve: 2026. 01. 20. Utoljára módosítva: 2026. 01. 20.

3 szobás családi házak ára Kápolnásnyéken

Ebből az összehasonlításból megtudhatod, hogyan viszonyul a lakás ára a környékbeli családi házak átlagos árához. Ez nem azt jelenti, hogy ennyivel olcsóbb vagy drágább, mint amennyit a lakás ér, hanem hogy ennyivel tér el a környékbeli átlagtól.

Ennek a m² ára
Kápolnásnyék m² ár
740 e Ft
577 e Ft -28%
Ennek az ára
Kápolnásnyék átlagár
74 M Ft m Ft
67.1 m Ft -10%

Az ingatlan elhelyezkedése

Cím: Kápolnásnyék

Eladó családi házak a környékről

Eladó családi ház
Eladó családi ház

Kápolnásnyék

41 M Ft
3 szoba
97 m2
Eladó családi ház
Eladó családi ház

Bakonycsernye

39 M Ft
3 szoba
350 m2
Eladó családi ház
Eladó családi ház

Székesfehérvár

69.9 M Ft
3 szoba
95 m2
Eladó családi ház
Eladó családi ház

Velence

85.9 M Ft
4 szoba
103 m2
Eladó családi ház
Eladó családi ház

Kápolnásnyék

132.5 M Ft
1 + 4 szoba
156 m2
Eladó családi ház
Eladó családi ház

Kápolnásnyék, Ercsi út

210 M Ft
5 + 2 szoba
180 m2
Eladó családi ház
Eladó családi ház

Tordas, Szabadság út

29.9 M Ft
2 szoba
63 m2
Eladó családi ház
Eladó családi ház

Kápolnásnyék

84.9 M Ft
4 szoba
90 m2
Eladó családi ház
Eladó családi ház

Kápolnásnyék

59.9 M Ft
1 + 1 szoba
68 m2
Eladó családi ház
Eladó családi ház

Kápolnásnyék, Kossuth Lajos út 5

39.15 M Ft
1 + 1 szoba
115 m2
Eladó családi ház
Eladó családi ház

Besnyő

25 M Ft
1 szoba
30 m2
Eladó családi ház
Eladó családi ház

Mány

18.5 M Ft
3 szoba
70 m2
Eladó családi ház
Eladó családi ház

Kápolnásnyék, Bem utca

119.175 M Ft
5 szoba
156 m2
Eladó családi ház
Eladó családi ház

Tordas

105 M Ft
3 szoba
75 m2
Eladó családi ház
Eladó családi ház

Vereb

49.9 M Ft
1 + 3 szoba
80 m2
Eladó családi ház
Eladó családi ház

Kápolnásnyék

35 M Ft
2 szoba
74 m2
Eladó családi ház
Eladó családi ház

Kápolnásnyék, Bem utca

108.675 M Ft
5 szoba
136 m2
Eladó családi ház
Eladó családi ház

Kápolnásnyék

85 M Ft
4 szoba
112 m2
Eladó családi ház
Eladó családi ház

Kápolnásnyék

41 M Ft
3 szoba
97 m2
Eladó családi ház
Eladó családi ház

Velence

42.9 M Ft
1 szoba
40 m2
Eladó családi ház
Eladó családi ház

Kápolnásnyék

130 M Ft
4 szoba
326 m2
Eladó családi ház
Eladó családi ház

Pusztavám

22.9 M Ft
3 szoba
103 m2
Eladó családi ház
Eladó családi ház

Alcsútdoboz, Szabadság utca

320 M Ft
12 szoba
620 m2
Eladó családi ház
Eladó családi ház

Kápolnásnyék

84.9 M Ft
4 szoba
90 m2

Falusi CSOK ingatlanok

Eladó ikerház
Eladó ikerház

Balatonakali

129 M Ft
4 szoba
145 m2
Eladó családi ház
Eladó családi ház

Sükösd

40 M Ft
3 szoba
112 m2
Eladó családi ház
Eladó családi ház

Vép

38.9 M Ft
4 szoba
94 m2
Eladó családi ház
Eladó családi ház

Ceglédbercel

67 M Ft
4 szoba
165 m2
Eladó családi ház
Eladó családi ház

Tiszatenyő

13.99 M Ft
2 szoba
63 m2
Eladó családi ház
Eladó családi ház

Pécsvárad

85 M Ft
4 szoba
100 m2
Eladó családi ház
Eladó családi ház

Vönöck

19.99 M Ft
3 szoba
120 m2
Eladó családi ház
Eladó családi ház

Ádánd

53.5 M Ft
6 szoba
180 m2