River Life

Eladó családi ház
Jászfényszaru

+ 14 kép 1/17
25 000 000 Ft25 M Ft 297 619 Ft/m2
3 szoba
84 m2
építés éve:1970

Részletes adatok

Állapot: Felújítandó
Telekméret: 2131 m2
Fűtés: Gázkonvektor
Energetikai besorolás: Nem adta meg a hirdető

Az OTP Bank lakáshitel ajánlataFizetett hirdetés

+36 20 329
Burik Katalin
referens

Érdekel az OTP Bank kedvezményes lakáshitel ajánlata? *

* A kérdésre „Igen” válasz bejelölése esetén, az „Üzenet küldése” gombra kattintva kijelentem, hogy az OTP Bank Nyrt. Adatkezelési tájékoztatójának tartalmát megismertem és tudomásul vettem.

Eladó családi ház leírása

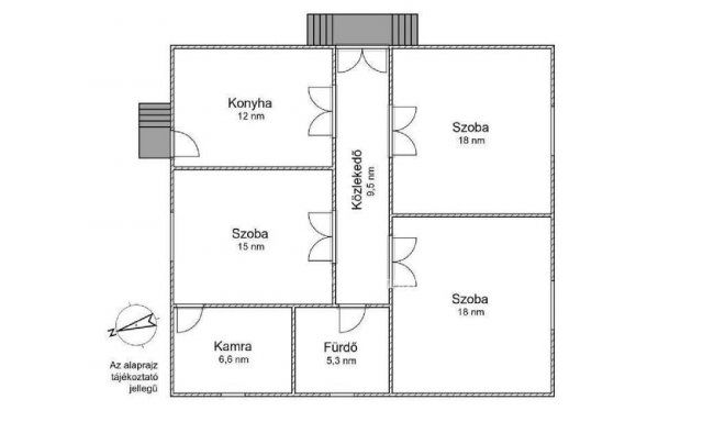
Jász-Nagykun-Szolnok vármegyében, Jászfényszaru óvárosi részén eladó egy 3 szobás, 84 nm-es családi ház, amelyhez egy tágas, 2131 nm-es telek tartozik. Az ingatlan 1970-ben épült beton alapra, tégla falazattal, a tető cserép borítást kapott. A ház klasszikus kockaház jellegű, két bejárattal rendelkezik, minden közművel ellátott, ugyanakkor felújítást igényel, így remek lehetőséget kínál új tulajdonosa számára, hogy saját ízlése és igényei szerint alakítsa ki otthonát. A telek mérete és adottságai bőven biztosítanak helyet kertészkedéshez, pihenőkert kialakításához vagy akár további építmények elhelyezéséhez is.

Jászfényszaru város Önkormányzata a letelepedni kívánó fiatalokat a feltételek megléte esetén otthonteremtési támogatással segíti, így az ingatlan fiatal családok számára különösen vonzó választás lehet. Ingatlanvásárláshoz az OTP Bank kedvező hitelkonstrukcióit ajánlom. Kérem, hívjon bizalommal, készséggel tájékoztatom a részletekről.

Referencia szám: M311111

Hirdetés feltöltve: 2025. 09. 30. Utoljára módosítva: 2025. 12. 21.

3 szobás családi házak ára Jászfényszarun

Ebből az összehasonlításból megtudhatod, hogyan viszonyul a lakás ára a környékbeli családi házak átlagos árához. Ez nem azt jelenti, hogy ennyivel olcsóbb vagy drágább, mint amennyit a lakás ér, hanem hogy ennyivel tér el a környékbeli átlagtól.

Ennek a m² ára
Jászfényszaru m² ár
298 e Ft
378 e Ft 21%
Ennek az ára
Jászfényszaru átlagár
25 M Ft m Ft
45.3 m Ft 45%

Az ingatlan elhelyezkedése

Cím: Jászfényszaru

Eladó családi házak a környékről

Eladó családi ház
Eladó családi ház

Jászfényszaru

55 M Ft
4 szoba
140 m2
Eladó családi ház
Eladó családi ház

Jászfényszaru

27.9 M Ft
2 + 1 szoba
83 m2
Eladó családi ház
Eladó családi ház

Jászfényszaru

44.9 M Ft
2 szoba
66 m2
Eladó családi ház
Eladó családi ház

Szolnok

20 M Ft
1 + 2 szoba
62 m2
Eladó családi ház
Eladó családi ház

Jászfényszaru

47.9 M Ft
3 szoba
120 m2
Eladó családi ház
Eladó családi ház

Szolnok

21.9 M Ft
1 + 1 szoba
53 m2
Eladó családi ház
Eladó családi ház

Jászjákóhalma

17.5 M Ft
3 szoba
78 m2
Eladó családi ház
Eladó családi ház

Jászfényszaru

50 M Ft
3 szoba
120 m2
Eladó családi ház
Eladó családi ház

Jászfényszaru

36.9 M Ft
1080 m²
80 m2
Eladó családi ház
Eladó családi ház

Jászberény, Tőtevény tanya

99.9 M Ft
6 szoba
229 m2
Eladó családi ház
Eladó családi ház

Jászfényszaru

59.9 M Ft
3 szoba
167 m2
Eladó családi ház
Eladó családi ház

Jászárokszállás

21.5 M Ft
2 szoba
45 m2
Eladó családi ház
Eladó családi ház

Jászjákóhalma

25 M Ft
4 + 1 szoba
200 m2
Eladó családi ház
Eladó családi ház

Jászfényszaru

59.9 M Ft
3 szoba
107 m2
Eladó családi ház
Eladó családi ház

Szolnok

20.5 M Ft
2 szoba
78 m2
Eladó családi ház
Eladó családi ház

Szolnok

30 M Ft
2 szoba
70 m2
Eladó családi ház
Eladó családi ház

Kunszentmárton

13.9 M Ft
3 szoba
92 m2
Eladó családi ház
Eladó családi ház

Újszász

39.7 M Ft
2 + 2 szoba
180 m2
Eladó családi ház
Eladó családi ház

Cibakháza

12.9 M Ft
4 szoba
111 m2
Eladó családi ház
Eladó családi ház

Jászfényszaru

55 M Ft
4 szoba
140 m2
Eladó családi ház
Eladó családi ház

Jászfényszaru

27.9 M Ft
2 + 1 szoba
83 m2
Eladó családi ház
Eladó családi ház

Jászfényszaru

50 M Ft
3 szoba
120 m2
Eladó családi ház
Eladó családi ház

Jászfényszaru

59.9 M Ft
3 szoba
167 m2
Eladó családi ház
Eladó családi ház

Cibakháza

2.5 M Ft
2 szoba
75 m2

Falusi CSOK ingatlanok

Eladó családi ház
Eladó családi ház

Tapsony

10 M Ft
2 szoba
57 m2
Eladó családi ház
Eladó családi ház

Tömörkény

8.9 M Ft
2 szoba
80 m2
Eladó családi ház
Eladó családi ház

Onga

72.9 M Ft
4 szoba
109 m2
Eladó téglalakás
Eladó téglalakás

Hegyeshalom

56.9 M Ft
3 szoba
80 m2
Eladó családi ház
Eladó családi ház

Ádánd

79 M Ft
4 szoba
140 m2
Eladó családi ház
Eladó családi ház

Somogygeszti

38.6 M Ft
3 + 1 szoba
98 m2
Eladó családi ház
Eladó családi ház

Tápiógyörgye

30 M Ft
3 szoba
65 m2
Eladó ikerház
Eladó ikerház

Mágocs

34 M Ft
3 szoba
77 m2