Oasis Residence

Eladó családi ház
Jászfényszaru

+ 14 kép 1/17
50 000 000 Ft50 M Ft 416 667 Ft/m2
3 szoba
120 m2
építés éve:1974

Részletes adatok

Állapot: Átlagos
Telekméret: 280 m2
Fűtés: Gázkonvektor
Energetikai besorolás: Nem adta meg a hirdető

Az OTP Bank lakáshitel ajánlataFizetett hirdetés

+36 20 329
Burik Katalin
referens

Érdekel az OTP Bank kedvezményes lakáshitel ajánlata? *

* A kérdésre „Igen” válasz bejelölése esetén, az „Üzenet küldése” gombra kattintva kijelentem, hogy az OTP Bank Nyrt. Adatkezelési tájékoztatójának tartalmát megismertem és tudomásul vettem.

Eladó családi ház leírása

Világos, tágas, központi - Családi ház eladó Jászfényszaru szívében!

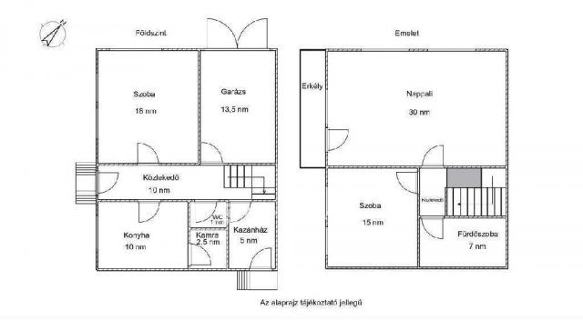
Jász-Nagykun-Szolnok vármegye egyik legdinamikusabban fejlődő kisvárosában, Jászfényszaru központjában kínálunk megvételre egy két szintes, 120 nm-es, téglaépítésű családi házat.

A 3 szobás, jó elrendezésű ingatlanhoz garázs, kazánház és több tárolóhelyiség is tartozik, a 280 nm-es telken pedig kisebb melléképület is található. A földszinten egy világos 18 nm-es szoba, konyha, kamra, külön WC, valamint a garázs és a kazánház kaptak helyet, az emeleten pedig egy impozáns, 30 nm-es nappali, egy hálószoba, és egy fürdőszoba WC-vel található. A nappaliból erkély nyílik, amely kellemes szabadtéri kikapcsolódást kínál.

A részleges felújítás során 5 éve teljes elektromos hálózatcsere történt, valamint minden külső nyílászárót hőszigetelt, modern ablakokra cseréltek, amelyeknek köszönhetően az otthon egész nap világos és napfényes.

Az ingatlan 3x16A áramerősséggel rendelkezik, az inverter helye kiépítésre került, így a napelemrendszer telepítése gyerekjáték. A fűtésről gázkazán és vegyestüzelésű kazán is gondoskodik - ez kiváló választás azoknak, akik energiahatékony megoldásokat keresnek.

Az ingatlan elhelyezkedése ideális: minden fontos intézmény (iskola, bolt, posta és gyógyszertár) karnyújtásnyira található.

Az OTP Bank kedvező pénzügyi megoldásait is ajánlom figyelmedbe, hogy könnyebben valóra válthasd otthonteremtési terveidet.

Keress bizalommal! Szívesen válaszolok minden kérdésedre és segítek a megtekintés megszervezésében.

Referencia szám: M304732

Hirdetés feltöltve: 2025. 11. 04. Utoljára módosítva: 2025. 11. 26.

3 szobás családi házak ára Jászfényszarun

Ebből az összehasonlításból megtudhatod, hogyan viszonyul a lakás ára a környékbeli családi házak átlagos árához. Ez nem azt jelenti, hogy ennyivel olcsóbb vagy drágább, mint amennyit a lakás ér, hanem hogy ennyivel tér el a környékbeli átlagtól.

Ennek a m² ára
Jászfényszaru m² ár
417 e Ft
377 e Ft -11%
Ennek az ára
Jászfényszaru átlagár
50 M Ft m Ft
45.3 m Ft -10%

Az ingatlan elhelyezkedése

Cím: Jászfényszaru

Eladó családi házak a környékről

Eladó családi ház
Eladó családi ház

Jászfényszaru

50 M Ft
5 szoba
150 m2
Eladó családi ház
Eladó családi ház

Zagyvarékas

19.5 M Ft
2 + 1 szoba
73 m2
Eladó családi ház
Eladó családi ház

Jászberény

75 M Ft
3 szoba
168 m2
Eladó családi ház
Eladó családi ház

Szászberek

88 M Ft
5 szoba
150 m2
Eladó családi ház
Eladó családi ház

Jászárokszállás

21.5 M Ft
2 szoba
45 m2
Eladó családi ház
Eladó családi ház

Jászfényszaru

36.9 M Ft
1080 m²
80 m2
Eladó családi ház
Eladó családi ház

Jászfényszaru

27.9 M Ft
2 + 1 szoba
83 m2
Eladó családi ház
Eladó családi ház

Jászfényszaru

13.9 M Ft
2 szoba
52 m2
Eladó családi ház
Eladó családi ház

Jászfényszaru

64.9 M Ft
5 szoba
95 m2
Eladó családi ház
Eladó családi ház

Szolnok

35.8 M Ft
2 szoba
70 m2
Eladó családi ház
Eladó családi ház

Jászfényszaru

47.9 M Ft
3 szoba
120 m2
Eladó családi ház
Eladó családi ház

Cibakháza

2.5 M Ft
2 szoba
75 m2
Eladó családi ház
Eladó családi ház

Jászfényszaru

27.9 M Ft
2 + 1 szoba
83 m2
Eladó családi ház
Eladó családi ház

Jászfényszaru

36.2 M Ft
3 szoba
100 m2
Eladó családi ház
Eladó családi ház

Szolnok

20 M Ft
1 + 2 szoba
62 m2
Eladó családi ház
Eladó családi ház

Cserkeszőlő, Napsugár utca

350 M Ft
4 szoba
440 m2
Eladó családi ház
Eladó családi ház

Szászberek

88 M Ft
5 szoba
150 m2
Eladó családi ház
Eladó családi ház

Jászfényszaru

50 M Ft
3 szoba
120 m2
Eladó családi ház
Eladó családi ház

Jászfényszaru

47.9 M Ft
3 szoba
120 m2
Eladó családi ház
Eladó családi ház

Szolnok

30 M Ft
2 szoba
70 m2
Eladó családi ház
Eladó családi ház

Újszász

24.9 M Ft
3 szoba
90 m2
Eladó családi ház
Eladó családi ház

Jászladány, Liszt Ferenc utca

35 M Ft
2 + 2 szoba
120 m2
Eladó családi ház
Eladó családi ház

Jászfényszaru

49.7 M Ft
5 szoba
195 m2
Eladó családi ház
Eladó családi ház

Jászfényszaru

13.9 M Ft
2 szoba
52 m2

Falusi CSOK ingatlanok

Eladó családi ház
Eladó családi ház

Nagyszénás

15 M Ft
3 szoba
81 m2
Eladó családi ház
Eladó családi ház

Vásárosdombó

14.99 M Ft
2 szoba
69 m2
Eladó családi ház
Eladó családi ház

Pécsely, Szőlő Dülő

499 M Ft
4 + 2 szoba
183 m2
Eladó családi ház
Eladó családi ház

Somlóvásárhely

19.9 M Ft
1 szoba
59 m2
Eladó családi ház
Eladó családi ház

Ceglédbercel, Iskola utca

109 M Ft
5 szoba
133 m2
Eladó családi ház
Eladó családi ház

Ceglédbercel, Iskola utca

99.99 M Ft
5 szoba
128 m2
Eladó családi ház
Eladó családi ház

Balatonfenyves

430 M Ft
4 szoba
274 m2
Eladó ikerház
Eladó ikerház

Balatonakali

129 M Ft
4 szoba
145 m2