Seven Pearl

Eladó családi ház
Jánoshalma

+ 17 kép 1/20
14 500 125 Ft14.5 M Ft 213 237 Ft/m2
2 szoba
68 m²
építés éve:1960

Részletes adatok

Telekméret: 754 m2
Fűtés: Egyéb
Parkolás: Kocsibeálló
Közmű: Víz, Villany, Csatorna, Szélessáv, KábelTV
Energetikai besorolás: E

Az OTP Bank lakáshitel ajánlataFizetett hirdetés

+36 30 509
Juhász Ingatlan
Juhász Ingatlan

Érdekel az OTP Bank kedvezményes lakáshitel ajánlata? *

* A kérdésre „Igen” válasz bejelölése esetén, az „Üzenet küldése” gombra kattintva kijelentem, hogy az OTP Bank Nyrt. Adatkezelési tájékoztatójának tartalmát megismertem és tudomásul vettem.

Eladó családi ház leírása

Eladó hangulatos családi ház Bács-Kiskun vármegye Jánoshalma– ahol a nyugalom otthonra talál!
Ingatlan adatok:
Típus: családi ház
Helyszín: Bács-Kiskun vármegye, Jánoshalma
Lakótér: 68 m²
Szobák: 2
Konyha: 1
Fürdőszoba: 1
Tároló: 1
Telek méret: 754m²
Falazat: tégla és vályog
Leírás:
Jánoshalma központjához közel kínáljuk megvételre ezt a 68m²-es családi házat. A tágas, világos helyiségek és a praktikus elrendezés ideális otthonná tehetik. A konyha kapcsolódik egy étkezővel,ahol a család kényelmesen elfér.A szobák laminált padló burkolatot kapott . A nyílászárók Pár éve cserélve lettek műanyagra.A többi helyiség járólappal lett burkolva. Az ingatlan bejáratát terasz védi.
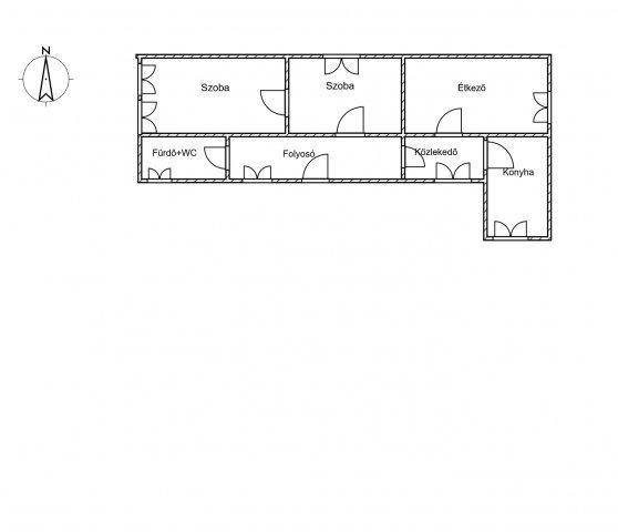
Helyiségek:
Szoba : 20 m²
Szoba : 12,4 m²
Konyha: 5 m²
Étkező: 17 m²
Fürdő+WC: 3 m²
Folyosó: 8,4m²
Közlekedő :2m²
Összesen: 67.8 m²
Kert és udvar:
A 754 m²-es telek rendezett, ideális kertészkedésre vagy parkosításra. Több fajta gyümölcsfa és szőlő is található a telken.
Fűtés és meleg víz:
A fűtést vegyes tüzelésű kazánnal történik, mely nemrégen lett kiépítve lapradiátorokkal.A meleg vizet villanybojler biztosítja.
Irányár: 14.500.000 Ft
Különösen jó lehetőség azoknak a családoknak, akik saját otthont keresnek Jánoshalma .Iskola,óvoda,gyógyszertár ,orvosi rendelő, megtalálható a településen.
Elérhetőség:
Juhász Krisztina
+36 30 509 0434
juhaszk.ingatlan@gmail.com

Hirdetés feltöltve: 2026. 03. 14. Utoljára módosítva: 2026. 03. 16.

2 szobás családi házak ára Jánoshalmán

Ebből az összehasonlításból megtudhatod, hogyan viszonyul a lakás ára a környékbeli családi házak átlagos árához. Ez nem azt jelenti, hogy ennyivel olcsóbb vagy drágább, mint amennyit a lakás ér, hanem hogy ennyivel tér el a környékbeli átlagtól.

Ennek a m² ára
Jánoshalma m² ár
213 e Ft
147 e Ft -45%
Ennek az ára
Jánoshalma átlagár
14.5 M Ft m Ft
14.7 m Ft 1%

Az ingatlan elhelyezkedése

Cím: Jánoshalma

Eladó családi házak a környékről

Kecskemét
Eladó családi ház

Kecskemét

93 M Ft
3 szoba
140 m²
Dunavecse
Eladó családi ház

Dunavecse

88.49 M Ft
8 szoba
378 m²
Jánoshalma, Orczy utca 115
Eladó családi ház

Jánoshalma

7.97 M Ft
1 + 1 szoba
204 m²
Jánoshalma
Eladó családi ház

Jánoshalma

18 M Ft
3 szoba
140 m²
Kecskemét
Eladó családi ház

Kecskemét

135 M Ft
5 szoba
220 m²
Kecskemét
Eladó családi ház

Kecskemét

39.9 M Ft
2 szoba
110 m²
Kunadacs
Eladó családi ház

Kunadacs

210 M Ft
14 szoba
920 m²
Jánoshalma
Eladó családi ház

Jánoshalma

2.5 M Ft
2 szoba
95 m²
Kiskunmajsa, 1
Eladó családi ház

Kiskunmajsa

60.9 M Ft
6 szoba
220 m²
Bácsalmás
Eladó családi ház

Bácsalmás

25.5 M Ft
2 + 1 szoba
90 m²
Kecskemét
Eladó családi ház

Kecskemét

6.9 M Ft
1 szoba
30 m²
Jánoshalma
Eladó családi ház

Jánoshalma

13.5 M Ft
3 szoba
86 m²
Fülöpháza
Eladó családi ház

Fülöpháza

68 M Ft
6 szoba
250 m²
Kiskunfélegyháza
Eladó családi ház

Kiskunfélegyháza

14.9 M Ft
3 szoba
70 m²
Dunapataj
Eladó családi ház

Dunapataj

15 M Ft
5 szoba
150 m²
Kecskemét, Alsószéktó, Alsószéktó 138
Eladó családi ház

Kecskemét

58 M Ft
5 szoba
92 m²
Kecskemét, Alsószéktó, Alsószéktó 138
Eladó családi ház

Kecskemét

55 M Ft
5 szoba
91 m²
Kiskunhalas
Eladó családi ház

Kiskunhalas

47 M Ft
1.24 ha
183 m²
Jánoshalma
Eladó családi ház

Jánoshalma

14.9 M Ft
2 + 1 szoba
92 m²
Jánoshalma
Eladó családi ház

Jánoshalma

11.9 M Ft
2 + 1 szoba
85 m²
Kecskemét
Eladó családi ház

Kecskemét

119.8 M Ft
5 szoba
138 m²
Jánoshalma, Zenta utca 14
Eladó családi ház

Jánoshalma

4.9 M Ft
1 + 1 szoba
51 m²
Jánoshalma
Eladó családi ház

Jánoshalma

54.9 M Ft
4 szoba
125 m²
Jánoshalma
Eladó családi ház

Jánoshalma

15.9 M Ft
2 szoba
58 m²

Falusi CSOK ingatlanok

Kadarkút, Körmendi utca
Eladó családi ház

Kadarkút

21 M Ft
3 szoba
82 m²
Vokány
Eladó családi ház

Vokány

30 M Ft
4 szoba
100 m²
Nagykarácsony
Eladó családi ház

Nagykarácsony

34.9 M Ft
3 szoba
112 m²
Ceglédbercel
Eladó családi ház

Ceglédbercel

65.9 M Ft
3 szoba
97 m²
Vajszló
Eladó családi ház

Vajszló

43 M Ft
4 szoba
123 m²
Badacsonytördemic
Eladó családi ház

Badacsonytördemic

90 M Ft
3 szoba
130 m²
Bag
Eladó családi ház

Bag

16.9 M Ft
6 szoba
160 m²
Érpatak
Eladó családi ház

Érpatak

35 M Ft
4 szoba
160 m²