Aerogate Homes

Eladó családi ház
Hosszúhetény

Figyelem!

Ez az ingatlan a 2019.07.01-től induló falusi CSOK által támogatott településen található

1/1
97 000 000 Ft97 M Ft 923 810 Ft/m2
3 szoba
105 m²
építés éve:1980

Részletes adatok

Állapot: Felújított
Telekméret: 16 m2
Fűtés: Egyéb
Energetikai besorolás: Nem adta meg a hirdető

Az OTP Bank lakáshitel ajánlataFizetett hirdetés

+36 70 393
Berkes Ilona
OTPIP - Pécs, Rákóczi út 19.

Érdekel az OTP Bank kedvezményes lakáshitel ajánlata? *

* A kérdésre „Igen” válasz bejelölése esetén, az „Üzenet küldése” gombra kattintva kijelentem, hogy az OTP Bank Nyrt. Adatkezelési tájékoztatójának tartalmát megismertem és tudomásul vettem.

Eladó családi ház leírása

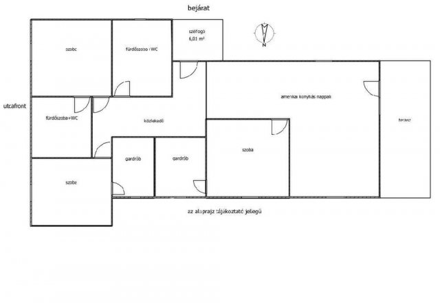
105 négyzetméteres ház eladó Hosszúhetényben a központ közelében!

Pontosabban 2026-2027-ben fog elkészülni a teljes felújítás. Egy minden részében felújított ház lesz belőle.
3 szoba lesz, 2 gardróbbal. A két gardrób igény szerint újabb szobává alakítható át. Lehetőség van más megoldásra is, a belső választófalak igény szerint átrakhatók.

2 db fürdőszoba + WC lesz kialakítva, az egyik a nagyhálóból nyílik káddal, a másik a közlekedőből tusolóval.

Egy amerikai konyhás nappali lesz kialakítva. A megfelelő csatlakozások (víz, szennyvíz, villany) ki lesznek alakítva, de a konyabútort nem építi be az építő cég. A mennyiben az új tulajdonos kéri, az is megteszi. Olyan méretű, és elrendezésű, valamint gépesítettségű konyha lesz, amit az új tulajdonos kér. Itt klíma is lesz felszerelve (igény szerint máshova is lehet). Innen lehet kimenni a teraszra, ami az udvar felé nyílik, ami 1149 négyzetméteres a házzal együtt.

Minden burkolóanyag (csempe, járólap, laminált padló) új lesz. Az új tulajdonos megválaszthatja a színt, és a minőséget. Amennyiben a betervezett jó minőségi szint fölé szeretne menni az új tulajdonos, arra is lesz lehetőség az árkülönbözet kifizetése után.

A fűtés hőszivattyús rendszerrel lesz kialakítva padlófűtéssel. Teljesen új vezetékek lesznek mindenütt, úgy, hogy az estlegesen később felszerelésre kerülő napelem rendszer fogadására is ki lesz építve. Mivel a gázcsonk a kerítésen belül van, akár gáz cirkófűtés is lehetséges.

Új lesz a tető, az összes fal téglából lesz 15 centiméteres hűszigetelő burkolattal. Minden nyílászáró új lesz. A külsők hőszigetelt műanyagból, elektromos redőnyökkel, és szúnyoghálóval lesznek felszerelve.

Az udvarban egy féltetős kialakítású garázs lesz kialakítva. Sok melléképület van, szerszámok. kerékpárok, babakocsik tárolására, vagy gazdálkodásra. Egy kút is van az udvarban, amivel az öntözést lehet megoldani.

Amennyiben az új tulajdonos megveszi az ingatlant, fel lesz gyorsítva a felújítás, fél év múlva kulcsátadás.

Referenciaszám: M325548

Az energetikai tanúsítvány készítése folyamatban van, amint rendelkezésre áll, úgy azzal a hirdetés frissítésre kerül.

Referencia szám: M325548

Hirdetés feltöltve: 2026. 04. 01. Utoljára módosítva: 2026. 05. 10.

3 szobás családi házak ára Hosszúhetényen

Ebből az összehasonlításból megtudhatod, hogyan viszonyul a lakás ára a környékbeli családi házak átlagos árához. Ez nem azt jelenti, hogy ennyivel olcsóbb vagy drágább, mint amennyit a lakás ér, hanem hogy ennyivel tér el a környékbeli átlagtól.

Ennek a m² ára
Hosszúhetény m² ár
924 e Ft
373 e Ft -147%
Ennek az ára
Hosszúhetény átlagár
97 M Ft m Ft
30.5 m Ft -218%

Az ingatlan elhelyezkedése

Cím: Hosszúhetény

Eladó családi házak a környékről

Hosszúhetény, Fő utca
Eladó családi ház

Hosszúhetény

41.95 M Ft
3 szoba
98 m²
Hosszúhetény
Eladó családi ház

Hosszúhetény

99 M Ft
4 szoba
160 m²
Pécs, Szabolcsfalu, Szabadságharc utca
Eladó családi ház

Pécs

58.99 M Ft
3 szoba
240 m²
Bükkösd, Kossuth Lajos utca
Eladó családi ház

Bükkösd

16 M Ft
1 szoba
210 m²
Hosszúhetény, Püspökszentlászló
Eladó családi ház

Hosszúhetény

185 M Ft
6 + 1 szoba
290 m²
Hosszúhetény
Eladó családi ház

Hosszúhetény

99 M Ft
4 szoba
160 m²
Szentlőrinc, Bertalan püspök utca
Eladó családi ház

Szentlőrinc

85 M Ft
3 szoba
330 m²
Palotabozsok
Eladó családi ház

Palotabozsok

9.9 M Ft
3 szoba
0 m²
Hosszúhetény
Eladó családi ház

Hosszúhetény

73 M Ft
4 szoba
142 m²
Hosszúhetény, Petőfi Sándor utca 10
Eladó családi ház

Hosszúhetény

20.65 M Ft
4 + 2 szoba
133 m²
Hosszúhetény, Püspökszentlászló
Eladó családi ház

Hosszúhetény

185 M Ft
6 + 1 szoba
290 m²
Hosszúhetény, Szőlőhegy
Eladó családi ház

Hosszúhetény

12 M Ft
1 + 1 szoba
4824 m²
Siklós, Külterület
Eladó családi ház

Siklós

61.5 M Ft
2 szoba
110 m²
Hosszúhetény
Eladó családi ház

Hosszúhetény

99 M Ft
4 szoba
160 m²
Magyartelek, Újsor utca
Eladó családi ház

Magyartelek

16.5 M Ft
3 szoba
75 m²
Pécsvárad, Szilágypuszta
Eladó családi ház

Pécsvárad

189 M Ft
7 szoba
618 m²
Hosszúhetény
Eladó családi ház

Hosszúhetény

99 M Ft
4 szoba
160 m²
Magyarhertelend, Bokréta utca
Eladó családi ház

Magyarhertelend

24.9 M Ft
3 + 3 szoba
102 m²
Hosszúhetény
Eladó családi ház

Hosszúhetény

185 M Ft
3 + 1 szoba
200 m²
Mohács
Eladó családi ház

Mohács

25 M Ft
4 szoba
120 m²
Lánycsók
Eladó családi ház

Lánycsók

75 M Ft
7 szoba
247 m²
Hosszúhetény
Eladó családi ház

Hosszúhetény

99 M Ft
4 szoba
160 m²
Mohács, Szőlőhegy
Eladó családi ház

Mohács

32.99 M Ft
2 szoba
72 m²
Pécs, Csoronika, Jakabhegyi út
Eladó családi ház

Pécs

99 M Ft
3000 m²
576 m²

Falusi CSOK ingatlanok

Himesháza
Eladó családi ház

Himesháza

30 M Ft
3 szoba
92 m²
Jászkarajenő
Eladó családi ház

Jászkarajenő

17 M Ft
3 szoba
81 m²
Lajoskomárom
Eladó családi ház

Lajoskomárom

22.9 M Ft
2 szoba
66 m²
Kondoros
Eladó családi ház

Kondoros

25 M Ft
4 szoba
150 m²
Tápiószőlős
Eladó családi ház

Tápiószőlős

39.9 M Ft
4 szoba
120 m²
Zsámbok
Eladó családi ház

Zsámbok

54.85 M Ft
3 szoba
120 m²
Galgahévíz
Eladó családi ház

Galgahévíz

43 M Ft
3 szoba
115 m²
Törtel
Eladó családi ház

Törtel

32.5 M Ft
3 szoba
66 m²

Falusi CSOK ingatlanok

Tápióság
Eladó családi ház

Tápióság

71.5 M Ft
4 szoba
72 m²
Csurgó
Eladó téglalakás

Csurgó

12.5 M Ft
2 szoba
54 m²
Kétpó
Eladó családi ház

Kétpó

14.9 M Ft
1 + 2 szoba
86 m²
Rétság
Eladó téglalakás

Rétság

34.9 M Ft
2 szoba
55 m²
Zsámbok
Eladó családi ház

Zsámbok

30 M Ft
2 szoba
58 m²
Rakamaz
Eladó családi ház

Rakamaz

86.9 M Ft
5 szoba
280 m²
Dunaegyháza
Eladó családi ház

Dunaegyháza

29.49 M Ft
3 szoba
70 m²
Baks
Eladó családi ház

Baks

82 M Ft
6 szoba
260 m²