Metrodom

Eladó családi ház
Hegyeshalom

Figyelem!

Ez az ingatlan a 2019.07.01-től induló falusi CSOK által támogatott településen található

+ 17 kép 1/20
105 000 000 Ft105 M Ft 400 763 Ft/m2
5 + 2 szoba
262 m2
építés éve:2002

Részletes adatok

Állapot: Átlagos
Telekméret: 817 m2
Fűtés: Gázkazán
Parkolás: Garázs
Energetikai besorolás: Nem adta meg a hirdető

Az OTP Bank lakáshitel ajánlataFizetett hirdetés

+36 30 332
Bertalan Máté
Győr Bartók Béla utca 8 - OTP Ingatlanpont Iroda

Érdekel az OTP Bank kedvezményes lakáshitel ajánlata? *

* A kérdésre „Igen” válasz bejelölése esetén, az „Üzenet küldése” gombra kattintva kijelentem, hogy az OTP Bank Nyrt. Adatkezelési tájékoztatójának tartalmát megismertem és tudomásul vettem.

Eladó családi ház leírása

SZUPER LEHETŐSÉG HEGYESHALOMBAN, CSALÁDI HÁZ MODERN VENDÉGHÁZZAL!

Költözés miatt megvételre kínálok Hegyeshalomban egy tekintélyes alapterülettel rendelkező, impozáns családi házat. Elhelyezkedését tekintve tökéletes választás azoknak, akik el akarnak szakadni a városi lét nyüzsgésétől és egy csendes, nyugodt környezetben képzelik el az életüket. Az ingatlan több, mint 800nm-es telken helyezkedik el, így kiváló lehetőséget nyújt a családi életnek a baráti összejöveteleknek, a hétvégi grillpartiknak.
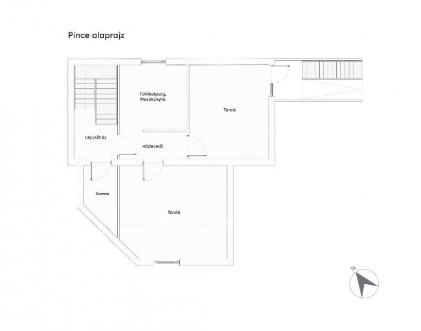
A ház alápincézett, itt kapott helyet a kazánház, a mosókonyha, több tároló és a kamra is. Ide a földszintről egy lépcsővel juthatunk le, de közvetlenül az udvar felől is van lejárat.
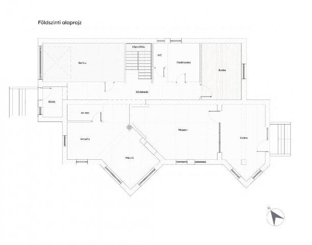
A földszint központjában egy nagy nappali található, amit egy cserépkályha tesz még hangulatosabbá. Az átmeneti őszi-tavaszi időszakban kiváltja a központi fűtést. A nappaliból régebben egy teraszra lehetett kijutni, de ezt idővel átépítették szobává. Az igényesen kialakított konyhában rengeteg hely van a sütéshez-főzéshez. A közlekedő folyosóról nyílik külön helyiségben a wc és a fürdőszoba, illetve egy hálószoba és a lépcső, aminek a segítségével az emeletre jutunk. Fent egy galériás közlekedő van, körben 4 szoba, külön helyiségben a fürdő és a wc és egy gardrób szoba.
A ház földszintjén kapott helyet még egy garázs is, külön bejárattal a házba. Az ingatlant kívülről már csak szigetelni és ízlés szerint színezni kell.
A kert végében egy 65nm alapterületű vendégház is épült, amiben két szoba, nappali, konyha, zuhanyzó és wc, tároló helyiségek és egy szauna is beépítésre került.
Ajánlom nagycsaládosoknak, de akár két generációnak is alkalmas ez az épület.
Az ár IRÁNYÁR, alkuképes ésszerű keretek között! JÖJJÖN el, NÉZZE meg és TEGYEN ajánlatot!
Amennyiben az ingatlannal kapcsolatban további információkat szeretne, keressen bizalommal elérhetőségeimen!
Ingatlanközvetítés és hitelmegoldások egy helyen, az OTP Bank szakmai hátterével!
Ingyenes előszűrés, értékbecslés!
Gyorsított ügyintézéssel.

Hirdetés feltöltve: 2025. 09. 05. Utoljára módosítva: 2025. 11. 13.

Az ingatlan elhelyezkedése

Cím: Hegyeshalom

Eladó családi házak a környékről

Eladó családi ház
Eladó családi ház

Hegyeshalom

188 M Ft
2 szoba
120 m2
Eladó családi ház
Eladó családi ház

Lébény

62.99 M Ft
4 szoba
90 m2
Eladó családi ház
Eladó családi ház

Győrság

93.45 M Ft
4 szoba
96 m2
Eladó családi ház
Eladó családi ház

Hegyeshalom

110.5 M Ft
4 szoba
119 m2
Eladó családi ház
Eladó családi ház

Mosonmagyaróvár

85 M Ft
3 szoba
119 m2
Eladó családi ház
Eladó családi ház

Hegyeshalom

148 M Ft
8 szoba
364 m2
Eladó családi ház
Eladó családi ház

Hegyeshalom

94.99 M Ft
4 szoba
152 m2
Eladó családi ház
Eladó családi ház

Hegyeshalom

85 M Ft
4 + 1 szoba
123 m2
Eladó családi ház
Eladó családi ház

Harka

99 M Ft
4 szoba
103 m2
Eladó családi ház
Eladó családi ház

Harka

86.7 M Ft
3 szoba
102 m2
Eladó családi ház
Eladó családi ház

Hegyeshalom

110.5 M Ft
4 szoba
119 m2
Eladó családi ház
Eladó családi ház

Nagycenk

102.5 M Ft
4 szoba
98 m2
Eladó családi ház
Eladó családi ház

Hegyeshalom

165 M Ft
6 szoba
184 m2
Eladó családi ház
Eladó családi ház

Hegyeshalom

144.9 M Ft
4 szoba
170 m2
Eladó családi ház
Eladó családi ház

Hegyeshalom

110.5 M Ft
4 szoba
119 m2
Eladó családi ház
Eladó családi ház

Sopron

189.9 M Ft
8 szoba
280 m2
Eladó családi ház
Eladó családi ház

Hegyeshalom

34.99 M Ft
4 szoba
100 m2
Eladó családi ház
Eladó családi ház

Mosonmagyaróvár

64.99 M Ft
3 szoba
112 m2
Eladó családi ház
Eladó családi ház

Jánossomorja

606.983 M Ft
12 szoba
405 m2
Eladó családi ház
Eladó családi ház

Veszprémvarsány

129 M Ft
6 szoba
215 m2
Eladó családi ház
Eladó családi ház

Hegyeshalom

93 M Ft
3 + 1 szoba
133 m2
Eladó családi ház
Eladó családi ház

Zsira

110.9 M Ft
8 szoba
200 m2
Eladó családi ház
Eladó családi ház

Hegyeshalom

105 M Ft
5 + 2 szoba
262 m2
Eladó családi ház
Eladó családi ház

Hegyeshalom

94.99 M Ft
3 szoba
100 m2

Falusi CSOK ingatlanok

Eladó családi ház
Eladó családi ház

Felsőlajos

100 M Ft
4 szoba
140 m2
Eladó családi ház
Eladó családi ház

Nemesszentandrás

75 M Ft
4 szoba
164 m2
Eladó családi ház
Eladó családi ház

Nagyberény

23.9 M Ft
3 szoba
69 m2
Eladó családi ház
Eladó családi ház

Márianosztra

85 M Ft
6 szoba
198 m2
Eladó családi ház
Eladó családi ház

Hegyeshalom

85 M Ft
4 + 1 szoba
123 m2
Eladó családi ház
Eladó családi ház

Ceglédbercel

49.9 M Ft
4 szoba
120 m2
Eladó családi ház
Eladó családi ház

Törtel

25.9 M Ft
5 szoba
95 m2
Eladó családi ház
Eladó családi ház

Aszaló

16.49 M Ft
3 szoba
112 m2

Falusi CSOK ingatlanok

Eladó ikerház
Eladó ikerház

Balatonakali

165 M Ft
4 szoba
138 m2
Eladó családi ház
Eladó családi ház

Balatonfenyves

119 M Ft
5 szoba
142 m2
Eladó családi ház
Eladó családi ház

Ceglédbercel, Iskola utca

99.99 M Ft
5 szoba
128 m2
Eladó családi ház
Eladó családi ház

Sárosd

21.9 M Ft
3 szoba
86 m2
Eladó téglalakás
Eladó téglalakás

Nagyharsány

22.5 M Ft
3 szoba
71 m2
Eladó családi ház
Eladó családi ház

Törtel

25.9 M Ft
5 szoba
95 m2
Eladó családi ház
Eladó családi ház

Gáborján

5.5 M Ft
2 szoba
68 m2
Eladó családi ház
Eladó családi ház

Kenyeri

21.8 M Ft
2 szoba
75 m2