River Life

Eladó családi ház
Hatvan

+ 17 kép 1/20
45 000 000 Ft45 M Ft 335 821 Ft/m2
3 + 1 szoba
134 m²
építés éve:1981

Részletes adatok

Állapot: Felújítandó
Telekméret: 630 m2
Fűtés: Gázkonvektor
Energetikai besorolás: Nem adta meg a hirdető

Az OTP Bank lakáshitel ajánlataFizetett hirdetés

+36 20 426
Gulyás Gáborné
referens

Érdekel az OTP Bank kedvezményes lakáshitel ajánlata? *

* A kérdésre „Igen” válasz bejelölése esetén, az „Üzenet küldése” gombra kattintva kijelentem, hogy az OTP Bank Nyrt. Adatkezelési tájékoztatójának tartalmát megismertem és tudomásul vettem.

Eladó családi ház leírása

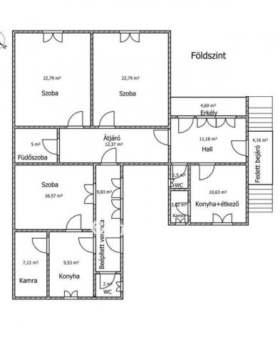
Heves megye, Hatvan Új-Hatvan városrészben, eladása kínálok, egy felújítandó, 80-as években épült, stabil, 2 lakrészből álló családi házat. A fő épület 90 m2, B-30-as téglából épült, beton födémes, melyben 2 nagy szoba, hall, konyha-étkező, spájz, üvegezett előtér, fürdőszoba és külön WC található. A hátsó 44 m2-es, korábban épült traktusban szoba, konyha, kamra, WC található. A ház elülső része alatt 24 m2 mélygarázs, 22 m2 pince helyezkedik el. Az épület alkalmas több generáció együtt élésére. A telek hátsó részében egy második garázs, 15 m2-es kamra, alatta 9 m2 zöldséges pince, valamint 20 m2 műhely található. Az otthon melegéről gázkonvektor, míg a meleg vízről bojler gondoskodik. A bevezetett 380 V ipari áram vállalkozáshoz ad segítséget. A kertben gyümölcsfák és konyhakerti növények termesztéséhez használható területek állnak rendelkezésre. A telek területe 630 m2. Költözhető, tehermentes ingatlan. Ha egy barátságos otthont szeretne, jó szomszédokkal, jöjjön, tekintse meg! Ingatlanirodánk ügyvédi háttérrel, CSOK, babaváró hitel, Otthon Start Hitelprogram, valamint kamatkedvezményes hitel ügyintézésével támogatja ügyfelei ingatlanvásárlását. Ingyenes banki segítség! Hívjon bizalommal!

Hirdetés feltöltve: 2026. 04. 14. Utoljára módosítva: 2026. 04. 14.

4 szobás családi házak ára Hatvanban

Ebből az összehasonlításból megtudhatod, hogyan viszonyul a lakás ára a környékbeli családi házak átlagos árához. Ez nem azt jelenti, hogy ennyivel olcsóbb vagy drágább, mint amennyit a lakás ér, hanem hogy ennyivel tér el a környékbeli átlagtól.

Ennek a m² ára
Hatvan m² ár
336 e Ft
605 e Ft 45%
Ennek az ára
Hatvan átlagár
45 M Ft m Ft
77.9 m Ft 42%

Az ingatlan elhelyezkedése

Cím: Hatvan

Eladó családi házak a környékről

Bodony
Eladó családi ház

Bodony

19.5 M Ft
3 szoba
95 m²
Hatvan
Eladó családi ház

Hatvan

55 M Ft
2 + 2 szoba
119 m²
Szarvaskő
Eladó családi ház

Szarvaskő

230 M Ft
5 szoba
424 m²
Hatvan
Eladó családi ház

Hatvan

67.9 M Ft
4 szoba
187 m²
Hatvan
Eladó családi ház

Hatvan

75 M Ft
3 szoba
100 m²
Hatvan
Eladó családi ház

Hatvan

55 M Ft
2 + 2 szoba
119 m²
Recsk
Eladó családi ház

Recsk

21 M Ft
4 szoba
220 m²
Hatvan
Eladó családi ház

Hatvan

75 M Ft
3 szoba
100 m²
Hatvan
Eladó családi ház

Hatvan

97.95 M Ft
5 + 2 szoba
253 m²
Hatvan
Eladó családi ház

Hatvan

11.2 M Ft
1 szoba
40 m²
Bükkszék
Eladó családi ház

Bükkszék

78.9 M Ft
2 + 1 szoba
160 m²
Mátraderecske
Eladó családi ház

Mátraderecske

74 M Ft
4 szoba
200 m²
Andornaktálya
Eladó családi ház

Andornaktálya

28.5 M Ft
2 szoba
60 m²
Hatvan
Eladó családi ház

Hatvan

33.99 M Ft
2 + 1 szoba
69 m²
Hatvan, Balassi Bálint út 82
Eladó családi ház

Hatvan

98.5 M Ft
4 + 1 szoba
170 m²
Hatvan
Eladó családi ház

Hatvan

62 M Ft
5 szoba
193 m²
Karácsond
Eladó családi ház

Karácsond

29.5 M Ft
3 szoba
112 m²
Hatvan
Eladó családi ház

Hatvan

129.99 M Ft
4 szoba
110 m²
Hatvan
Eladó családi ház

Hatvan

79.9 M Ft
4 szoba
125 m²
Andornaktálya
Eladó családi ház

Andornaktálya

42.5 M Ft
3 szoba
115 m²
Hatvan
Eladó családi ház

Hatvan

75 M Ft
3 szoba
100 m²
Hatvan
Eladó családi ház

Hatvan

79.9 M Ft
4 szoba
125 m²
Felsőtárkány
Eladó családi ház

Felsőtárkány

135 M Ft
3 + 1 szoba
160 m²
Hatvan, Rákóczi út
Eladó családi ház

Hatvan

95 M Ft
4 szoba
100 m²

Falusi CSOK ingatlanok

Villány
Eladó családi ház

Villány

31 M Ft
1 szoba
35 m²
Ambrózfalva
Eladó családi ház

Ambrózfalva

26.9 M Ft
5 szoba
194 m²
Szepetnek
Eladó családi ház

Szepetnek

16.5 M Ft
4 szoba
75 m²
Nagyhegyes
Eladó családi ház

Nagyhegyes

92900 M Ft
3 + 1 szoba
120 m²
Tápióbicske
Eladó ikerház

Tápióbicske

93.5 M Ft
7 szoba
136 m²
Mártély
Eladó családi ház

Mártély

75 M Ft
1107 m²
0 m²
Tápióság
Eladó családi ház

Tápióság

36.99 M Ft
2 szoba
81 m²
Bozsok
Eladó családi ház

Bozsok

290 M Ft
6 szoba
370 m²