Astora Olive Club House

Eladó családi ház
Harasztifalu

Figyelem!

Ez az ingatlan a 2019.07.01-től induló falusi CSOK által támogatott településen található

+ 7 kép 1/10
30 000 000 Ft30 M Ft 300 000 Ft/m2
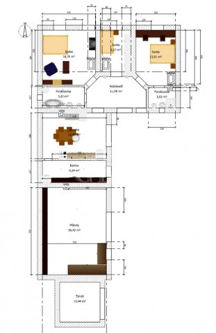
2 + 1 szoba
100 m²
építés éve:1930

Részletes adatok

Állapot: Felújítandó
Telekméret: 3559 m2
Fűtés: Egyéb
Parkolás: Garázs
Komfort: Duplakomfortos
Energetikai besorolás: Nem adta meg a hirdető

Az OTP Bank lakáshitel ajánlataFizetett hirdetés

+36 30 562
Kovács Dávid
referens

Érdekel az OTP Bank kedvezményes lakáshitel ajánlata? *

* A kérdésre „Igen” válasz bejelölése esetén, az „Üzenet küldése” gombra kattintva kijelentem, hogy az OTP Bank Nyrt. Adatkezelési tájékoztatójának tartalmát megismertem és tudomásul vettem.

Eladó családi ház leírása

Árcsökkenés 35.000.000 Ft helyett most 30.000.000 Ft!
Eladó egy, 100 m²-es családi ház Harasztifaluban, amely tökéletes választás mindazok számára, akik nyugodt vidéki életre, gazdálkodásra vagy akár befektetési lehetőségre vágynak.

A 3559 m²-es, tágas telek számos lehetőséget rejt magában: igény esetén megosztható, de kiválóan alkalmas állattartásra, kertészkedésre vagy egyéb gazdálkodási tevékenységekre is. A terület mérete és elrendezése miatt ideális választás azoknak is, akik saját önellátó életmódot szeretnének kialakítani.

Az ingatlanhoz tartozik egy nagy méretű műhely vagy garázs, amely tökéletes vállalkozás indításához, hobbi tevékenységekhez vagy több autó tárolására is.

A ház műszakilag felújított: új, korszerű villanyhálózat (3 fázis), teljesen megújult vízhálózat, cserépkályhás fűtés, amely gazdaságos és hangulatos megoldást biztosít

Ez az ingatlan nemcsak otthonként, hanem hosszú távú befektetésként is kiváló választás, hiszen a telek mérete és sokoldalúsága egyedülálló lehetőségeket kínál.

Ne hagyja ki ezt a ritka alkalmat! Ha egy nyugodt, mégis sokoldalúan kihasználható ingatlant keres, ez a ház Önre vár. Keressen bizalommal! ...TOVÁBBI, TÖBBEZRES INGATLAN KÍNÁLAT: www.gdn-ingatlan.hu - GDN azonosító: 394091

Hirdetés feltöltve: 2026. 04. 01. Utoljára módosítva: 2026. 05. 13.

Az ingatlan elhelyezkedése

Cím: Harasztifalu

Eladó ingatlanok a környékről

Körmend
Eladó téglalakás

Körmend

26 M Ft
2 szoba
49 m²
Kőszeg
Eladó családi ház

Kőszeg

16 M Ft
1 szoba
26 m²
Szombathely
Eladó családi ház

Szombathely

72.9 M Ft
2 szoba
70 m²
Csempeszkopács
Eladó családi ház

Csempeszkopács

119 M Ft
8 szoba
344 m²
Szombathely
Eladó téglalakás

Szombathely

39.5 M Ft
2 szoba
61 m²
Kőszeg
Eladó családi ház

Kőszeg

165 M Ft
4 + 1 szoba
138 m²
Sárvár
Eladó téglalakás

Sárvár

66.9 M Ft
2 szoba
64 m²
Szombathely
Eladó ikerház

Szombathely

77.9 M Ft
4 szoba
80 m²
Szombathely
Eladó ikerház

Szombathely

74.9 M Ft
4 szoba
80 m²
Molnaszecsőd, Kossuth út
Eladó családi ház

Molnaszecsőd

28.9 M Ft
2 szoba
71 m²
Hosszúpereszteg
Eladó családi ház

Hosszúpereszteg

26.9 M Ft
3 szoba
72 m²
Gencsapáti
Eladó családi ház

Gencsapáti

67.5 M Ft
3 szoba
70 m²
Sé
Eladó családi ház

129.99 M Ft
4 szoba
130 m²
Szombathely, Gyöngyösszőlős kertváros, Szőlős utca
Eladó családi ház

Szombathely

125 M Ft
4 + 1 szoba
223 m²
Szombathely
Eladó ikerház

Szombathely

85.9 M Ft
5 szoba
92 m²
Kenyeri
Eladó családi ház

Kenyeri

14.9 M Ft
2 szoba
86 m²
Szombathely
Eladó panellakás

Szombathely

38.5 M Ft
2 szoba
54 m²
Szombathely
Eladó téglalakás

Szombathely

58.9 M Ft
4 szoba
75 m²
Sárvár
Eladó családi ház

Sárvár

89 M Ft
9 + 1 szoba
292 m²
Szombathely
Eladó téglalakás

Szombathely

64.99 M Ft
3 szoba
60 m²
Kőszeg
Eladó téglalakás

Kőszeg

38.9 M Ft
2 szoba
56 m²
Szombathely
Eladó sorház

Szombathely

75 M Ft
4 szoba
117 m²
Sárvár
Eladó családi ház

Sárvár

390 M Ft
6 + 2 szoba
180 m²
Gencsapáti
Eladó családi ház

Gencsapáti

67.5 M Ft
3 szoba
70 m²

Falusi CSOK ingatlanok

Törtel
Eladó családi ház

Törtel

32.5 M Ft
3 szoba
66 m²
Kislippó
Eladó családi ház

Kislippó

17.99 M Ft
3 szoba
100 m²
Galgahévíz
Eladó családi ház

Galgahévíz

43 M Ft
3 szoba
115 m²
Balatonkeresztúr, Kaposvári utca
Eladó családi ház

Balatonkeresztúr

81 M Ft
5 szoba
140 m²
Tótszentmárton
Eladó családi ház

Tótszentmárton

31.5 M Ft
5 szoba
130 m²
Hahót
Eladó családi ház

Hahót

48 M Ft
4 + 1 szoba
110 m²
Hegyeshalom, Margaréta utca 12
Eladó téglalakás

Hegyeshalom

35.92 M Ft
1 szoba
31 m²
Vértesboglár, Dózsa utca
Eladó családi ház

Vértesboglár

99 M Ft
4 szoba
110 m²

Falusi CSOK ingatlanok

Csabacsűd
Eladó családi ház

Csabacsűd

21 M Ft
3 szoba
125 m²
Bag
Eladó családi ház

Bag

16.9 M Ft
6 szoba
160 m²
Bag
Eladó ikerház

Bag

93 M Ft
3 szoba
68 m²
Balatonszemes, Ady E. utca 6
Eladó téglalakás

Balatonszemes

108.9 M Ft
2 + 1 szoba
63 m²
Tab
Eladó családi ház

Tab

64.99 M Ft
4 szoba
160 m²
Mándok, Mónus Illés utca 12
Eladó családi ház

Mándok

0.1 M Ft
2 szoba
99 m²
Bakonycsernye
Eladó családi ház

Bakonycsernye

39 M Ft
3 szoba
350 m²
Németkér
Eladó családi ház

Németkér

149.9 M Ft
2 szoba
540 m²