Oasis Residence

Eladó családi ház
Hajdúnánás

+ 17 kép 1/20
35 000 000 Ft35 M Ft 324 074 Ft/m2
4 szoba
108 m2
építés éve:1950

Részletes adatok

Állapot: Felújítandó
Telekméret: 548 m2
Fűtés: Gázkonvektor
Energetikai besorolás: Nem adta meg a hirdető

Az OTP Bank lakáshitel ajánlataFizetett hirdetés

+36 70 262
Szücs-Hajdú Angelika
OTPIP Nyíregyháza Hunyadi u.

Érdekel az OTP Bank kedvezményes lakáshitel ajánlata? *

* A kérdésre „Igen” válasz bejelölése esetén, az „Üzenet küldése” gombra kattintva kijelentem, hogy az OTP Bank Nyrt. Adatkezelési tájékoztatójának tartalmát megismertem és tudomásul vettem.

Eladó családi ház leírása

Felújításra Méltó,
Nagypolgári Ház eladó,
csendes, de aszfaltozott, összközműves utcában,
Hajdúnánás központjának közvetlen közelében.

A Felújítás láthatóan, érzékelhetően egyre több kreatív Fiatalnak válik vágyálmává.
Mesteremberek hiánya, kiszámíthatatlansága, anyagi megfontolások miatt,
egyre többen vallják: DIY, Csináld Magadnak!

Ebben a Házban, csodásan kiélheti Kreativitását Minden ilyen Ember!
Örömmel és szívesen fogadom Őket!

Természetesen azok számára is eladó, akik továbbra is szakemberek munkáit szeretnék igénybe venni.

Kitűnő elhelyezkedésű, szerethető,
és még művelhető léptékű,
548 nm-es, málnás, gyümölcsfás és szőlős telken, helyezkedik el ez a
108 nm-es téglaépítésű Nagypolgári Ház.

A 1950-ben épült, összközműves Ház takarásoktól mentesen, őszintén tárja elénk a felújítás szükségességét.
Még így jelen állapotában is, magával ragadó tud lenni a terek térérzete, a beáradó fény, a világosság mennyisége, az egész tömb meghitt nyugalma.

Megújításával Nagyszerű Otthont lehet belőle készíteni!

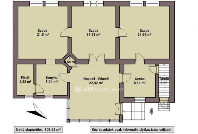
Az alaprajzon jól azonosítható Helyiségei: 4 Szoba, Nappali - Étkező, Konyha, Fürdőszoba és WC, tárolók.
A kert melléképületében, egykori asztalos műhely, Szőlészeti-Borászati tároló, 2 Garázs található.
A kertben, szilvafa, barackfák, nemes szőlők, 30 éves málna ültetvény, és füves tereületek zöldjei adnak nagyszerű kilátást a napfényes Nappali - Étkezőből.

Az ingatlan kitűnő lokációjának köszönhetően, bármi könnyedén és gyorsan elérhető, legyen szó a városközpontról, óvodáról, iskoláról, bevásárlásról vagy akár az autópályáról. Hajdúnánás egy igazán élhető, szerethető város.

Komoly érdeklődés esetén, Személyesen is megtekinthető, előre egyeztetett időpontban.
További információkat biztosítunk a megtekintőknek, keressenek bizalommal megadott elérhetőségeimen!
Referenciaszám: M314139

Kedvezményes kamatozású lakásvásárlási és felújítási hitelek, valamint
Otthon Start, CSOK Plusz és Babaváró ügyintézés az OTP hátterével irodánkban.

Képek és adatok Csak tájékoztatási jelleggel!

35000000 Ft

Referencia szám: M314139

Hirdetés feltöltve: 2026. 01. 16. Utoljára módosítva: 2026. 01. 16.

4 szobás családi házak ára Hajdúnánáson

Ebből az összehasonlításból megtudhatod, hogyan viszonyul a lakás ára a környékbeli családi házak átlagos árához. Ez nem azt jelenti, hogy ennyivel olcsóbb vagy drágább, mint amennyit a lakás ér, hanem hogy ennyivel tér el a környékbeli átlagtól.

Ennek a m² ára
Hajdúnánás m² ár
324 e Ft
254 e Ft -28%
Ennek az ára
Hajdúnánás átlagár
35 M Ft m Ft
33.1 m Ft -6%

Az ingatlan elhelyezkedése

Cím: Hajdúnánás

Eladó családi házak a környékről

Eladó családi ház
Eladó családi ház

Hajdúnánás

52 M Ft
2 szoba
72 m2
Eladó családi ház
Eladó családi ház

Hajdúnánás

68.75 M Ft
3 szoba
232 m2
Eladó családi ház
Eladó családi ház

Hajdúnánás

37 M Ft
3 szoba
143 m2
Eladó családi ház
Eladó családi ház

Debrecen

85 M Ft
4 szoba
100 m2
Eladó családi ház
Eladó családi ház

Derecske

24.9 M Ft
2 szoba
67 m2
Eladó családi ház
Eladó családi ház

Hajdúnánás, Soós Gábor utca 24

11.26 M Ft
1 + 1 szoba
68 m2
Eladó családi ház
Eladó családi ház

Hajdúnánás

52 M Ft
2 szoba
72 m2
Eladó családi ház
Eladó családi ház

Püspökladány

59.6 M Ft
4 szoba
165 m2
Eladó családi ház
Eladó családi ház

Hajdúnánás

13 M Ft
2 + 1 szoba
56 m2
Eladó családi ház
Eladó családi ház

Balmazújváros

104.9 M Ft
3 szoba
172 m2
Eladó családi ház
Eladó családi ház

Hajdúnánás

54 M Ft
2 szoba
80 m2
Eladó családi ház
Eladó családi ház

Hajdúdorog, Templom utca

95 M Ft
9 szoba
270 m2
Eladó családi ház
Eladó családi ház

Hajdúnánás

66.9 M Ft
6 szoba
242 m2
Eladó családi ház
Eladó családi ház

Szentpéterszeg

47 M Ft
3 szoba
92 m2
Eladó családi ház
Eladó családi ház

Hajdúsámson

81 M Ft
2 szoba
80 m2
Eladó családi ház
Eladó családi ház

Debrecen

550 M Ft
16 szoba
967 m2
Eladó családi ház
Eladó családi ház

Hajdúnánás

69 M Ft
2 szoba
182 m2
Eladó családi ház
Eladó családi ház

Hajdúszoboszló

185 M Ft
7 szoba
415 m2
Eladó családi ház
Eladó családi ház

Debrecen

13.9 M Ft
2 szoba
56 m2
Eladó családi ház
Eladó családi ház

Debrecen

150 M Ft
4 szoba
318 m2
Eladó családi ház
Eladó családi ház

Debrecen

150 M Ft
7 szoba
300 m2
Eladó családi ház
Eladó családi ház

Debrecen, Kádár dűlő

150 M Ft
4 szoba
140 m2
Eladó családi ház
Eladó családi ház

Hajdúnánás

136.9 M Ft
4 + 2 szoba
320 m2
Eladó családi ház
Eladó családi ház

Hajdúböszörmény

137 M Ft
6 szoba
240 m2

Falusi CSOK ingatlanok

Eladó családi ház
Eladó családi ház

Szabadbattyán

163.99 M Ft
5 szoba
255 m2
Eladó családi ház
Eladó családi ház

Madaras

13.5 M Ft
3 szoba
210 m2
Eladó családi ház
Eladó családi ház

Recsk

24.5 M Ft
2 szoba
100 m2
Eladó családi ház
Eladó családi ház

Vaskút

76 M Ft
3 szoba
120 m2
Eladó családi ház
Eladó családi ház

Balatonszárszó

178 M Ft
6 szoba
260 m2
Eladó családi ház
Eladó családi ház

Döbrönte

110 M Ft
2 + 2 szoba
183 m2
Eladó családi ház
Eladó családi ház

Kislippó

16 M Ft
3 szoba
100 m2
Eladó családi ház
Eladó családi ház

Mátraderecske

14 M Ft
1 + 1 szoba
47 m2