Kedves Felhasználónk! Rendszerfrissítés miatt az oldalunk 2026. február 9-én 12 órától várhatóan 20 óráig nem lesz elérhető. Köszönjük megértésed!
NapForrás 20 - Buda

Eladó családi ház
Hajdúnánás

+ 17 kép 1/20
35 000 000 Ft35 M Ft 324 074 Ft/m2
4 szoba
108 m2
építés éve:1950

Részletes adatok

Állapot: Felújítandó
Telekméret: 548 m2
Fűtés: Gázkonvektor
Parkolás: Garázs
Energetikai besorolás: Nem adta meg a hirdető

Az OTP Bank lakáshitel ajánlataFizetett hirdetés

+36 70 607
Balogh Imre
Debrecen Kürtös utca

Érdekel az OTP Bank kedvezményes lakáshitel ajánlata? *

* A kérdésre „Igen” válasz bejelölése esetén, az „Üzenet küldése” gombra kattintva kijelentem, hogy az OTP Bank Nyrt. Adatkezelési tájékoztatójának tartalmát megismertem és tudomásul vettem.

Eladó családi ház leírása

Felújításra Méltó,
Nagypolgári Ház eladó,
csendes, de aszfaltozott, összközműves utcában,
Hajdúnánás központjának közvetlen közelében.

A Felújítás láthatóan, érzékelhetően egyre több kreatív Fiatalnak válik vágyálmává.
Mesteremberek hiánya, kiszámíthatatlansága, anyagi megfontolások miatt,
egyre többen vallják: DIY, Csináld Magadnak!

Ebben a Házban, csodásan kiélheti Kreativitását Minden ilyen Ember!
Örömmel és szívesen fogadom Őket!

Természetesen azok számára is eladó, akik továbbra is szakemberek munkáit szeretnék igénybe venni.

Kitűnő elhelyezkedésű, szerethető,
és még művelhető léptékű,
548 nm-es, málnás, gyümölcsfás és szőlős telken, helyezkedik el ez a
108 nm-es téglaépítésű Nagypolgári Ház.

A 1950-ben épült, összközműves Ház takarásoktól mentesen, őszintén tárja elénk a felújítás szükségességét.
Még így jelen állapotában is, magával ragadó tud lenni a terek térérzete, a beáradó fény, a világosság mennyisége, az egész tömb meghitt nyugalma.

Megújításával Nagyszerű Otthont lehet belőle készíteni!

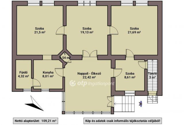
Az alaprajzon jól azonosítható Helyiségei: 4 Szoba, Nappali - Étkező, Konyha, Fürdőszoba és WC, tárolók.
A kert melléképületében, egykori asztalos műhely, Szőlészeti-Borászati tároló, 2 Garázs található.
A kertben, szilvafa, barackfák, nemes szőlők, 30 éves málna ültetvény, és füves tereületek zöldjei adnak nagyszerű kilátást a napfényes Nappali - Étkezőből.

Az ingatlan kitűnő lokációjának köszönhetően, bármi könnyedén és gyorsan elérhető, legyen szó a városközpontról, óvodáról, iskoláról, bevásárlásról vagy akár az autópályáról. Hajdúnánás egy igazán élhető, szerethető város.

Komoly érdeklődés esetén, Személyesen is megtekinthető, előre egyeztetett időpontban.
További információkat biztosítunk a megtekintőknek, keressenek bizalommal megadott elérhetőségeimen!
Referenciaszám: M314139

Kedvezményes kamatozású lakásvásárlási és felújítási hitelek, valamint
Otthon Start, CSOK Plusz és Babaváró ügyintézés az OTP hátterével irodánkban.

Képek és adatok Csak tájékoztatási jelleggel!

Referencia szám: M314139

Hirdetés feltöltve: 2025. 10. 22. Utoljára módosítva: 2026. 01. 23.

4 szobás családi házak ára Hajdúnánáson

Ebből az összehasonlításból megtudhatod, hogyan viszonyul a lakás ára a környékbeli családi házak átlagos árához. Ez nem azt jelenti, hogy ennyivel olcsóbb vagy drágább, mint amennyit a lakás ér, hanem hogy ennyivel tér el a környékbeli átlagtól.

Ennek a m² ára
Hajdúnánás m² ár
324 e Ft
254 e Ft -28%
Ennek az ára
Hajdúnánás átlagár
35 M Ft m Ft
33.1 m Ft -6%

Az ingatlan elhelyezkedése

Cím: Hajdúnánás

Eladó családi házak a környékről

Eladó családi ház
Eladó családi ház

Hajdúnánás

52 M Ft
2 szoba
72 m2
Eladó családi ház
Eladó családi ház

Debrecen

85 M Ft
4 szoba
100 m2
Eladó családi ház
Eladó családi ház

Püspökladány

49.8 M Ft
5 szoba
150 m2
Eladó családi ház
Eladó családi ház

Hajdúnánás

69 M Ft
2 szoba
182 m2
Eladó családi ház
Eladó családi ház

Hajdúnánás

54 M Ft
2 szoba
80 m2
Eladó családi ház
Eladó családi ház

Debrecen

13.9 M Ft
2 szoba
56 m2
Eladó családi ház
Eladó családi ház

Debrecen

150 M Ft
7 szoba
300 m2
Eladó családi ház
Eladó családi ház

Püspökladány

59.6 M Ft
4 szoba
165 m2
Eladó családi ház
Eladó családi ház

Debrecen

550 M Ft
16 szoba
967 m2
Eladó családi ház
Eladó családi ház

Hajdúnánás

136.9 M Ft
4 + 2 szoba
320 m2
Eladó családi ház
Eladó családi ház

Debrecen

75 M Ft
4 szoba
96 m2
Eladó családi ház
Eladó családi ház

Szentpéterszeg

47 M Ft
3 szoba
92 m2
Eladó családi ház
Eladó családi ház

Hajdúnánás

279 M Ft
5 szoba
249 m2
Eladó családi ház
Eladó családi ház

Hajdúnánás

52 M Ft
2 szoba
72 m2
Eladó családi ház
Eladó családi ház

Hajdúnánás

54 M Ft
2 szoba
80 m2
Eladó családi ház
Eladó családi ház

Debrecen

108.9 M Ft
6 szoba
170 m2
Eladó családi ház
Eladó családi ház

Hajdúnánás

9 M Ft
1 + 1 szoba
65 m2
Eladó családi ház
Eladó családi ház

Hajdúnánás, Soós Gábor utca 24

11.26 M Ft
1 + 1 szoba
68 m2
Eladó családi ház
Eladó családi ház

Hajdúnánás

9 M Ft
1 + 1 szoba
65 m2
Eladó családi ház
Eladó családi ház

Hajdúnánás

52 M Ft
2 szoba
72 m2
Eladó családi ház
Eladó családi ház

Hajdúnánás

13 M Ft
2 + 1 szoba
56 m2
Eladó családi ház
Eladó családi ház

Debrecen

150 M Ft
4 szoba
318 m2
Eladó családi ház
Eladó családi ház

Debrecen

66.9 M Ft
3 szoba
85 m2
Eladó családi ház
Eladó családi ház

Debrecen, Méhészföld utca

26 M Ft
1 szoba
36 m2

Falusi CSOK ingatlanok

Eladó családi ház
Eladó családi ház

Pétfürdő

74.9 M Ft
3 szoba
89 m2
Eladó családi ház
Eladó családi ház

Ónod, Szent István u. 9

9.24 M Ft
1 + 1 szoba
155 m2
Eladó családi ház
Eladó családi ház

Szarvaskend

26.9 M Ft
2 szoba
83 m2
Eladó családi ház
Eladó családi ház

Alattyán

8.5 M Ft
1 + 1 szoba
70 m2
Eladó családi ház
Eladó családi ház

Jánosháza

39 M Ft
2 szoba
116 m2
Eladó családi ház
Eladó családi ház

Háromfa, Kossuth

22.4 M Ft
139 m2
Eladó családi ház
Eladó családi ház

Hercegszántó

29.9 M Ft
4 szoba
130 m2
Eladó téglalakás
Eladó téglalakás

Balatonszemes

119.9 M Ft
2 szoba
81 m2