Aerogate Homes

Eladó családi ház
Hajdúnánás

+ 16 kép 1/19
35 000 000 Ft35 M Ft 324 074 Ft/m2
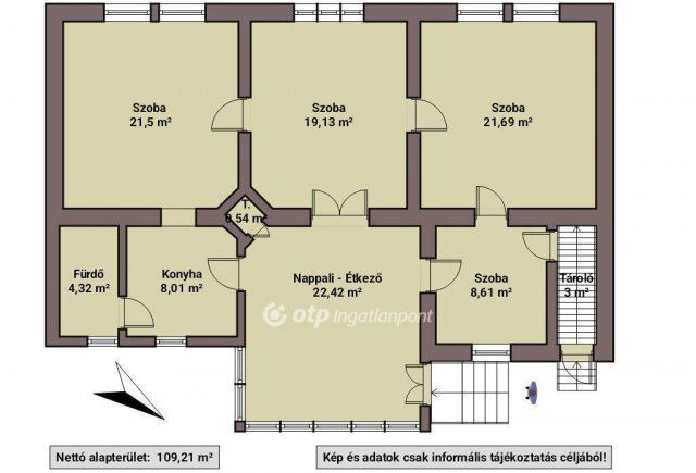
4 szoba
108 m2
építés éve:1950

Részletes adatok

Állapot: Felújítandó
Telekméret: 548 m2
Fűtés: Gázkonvektor
Energetikai besorolás: Nem adta meg a hirdető

Az OTP Bank lakáshitel ajánlataFizetett hirdetés

+36 20 940
Lipcseiné Kozák Judit
OTPIP Nyíregyháza Hunyadi u.

Érdekel az OTP Bank kedvezményes lakáshitel ajánlata? *

* A kérdésre „Igen” válasz bejelölése esetén, az „Üzenet küldése” gombra kattintva kijelentem, hogy az OTP Bank Nyrt. Adatkezelési tájékoztatójának tartalmát megismertem és tudomásul vettem.

Eladó családi ház leírása

Nagypolgári hangulat, kiváló elhelyezkedés, óriási lehetőség Hajdúnánáson

Hajdúnánás központjának közvetlen közelében, csendes, mégis aszfaltozott és összközműves utcában kínálunk megvételre egy 108 nm-es, nagypolgári stílusú téglaépítésű családi házat, 548 nm-es, gondozott gyümölcsfás telken.

Az ingatlan a felújításra szoruló állapotot nyíltan vállalja, ugyanakkor stabil alapokat és olyan adottságokat kínál, amelyekből valódi, karakteres otthon formálható. A tágas belső terek, a nagy belmagasság és a természetes fény már most is különleges hangulatot teremtenek.

A ház főbb jellemzői
4 szoba
nappali étkező
konyha
fürdőszoba és külön WC
tárolók

A kertben egykori asztalosműhely, szőlészeti és borászati tároló, valamint 2 garázs található. A telken szilvafa, barackfák, nemes szőlők és egy kb. 30 éves málnaültetvény teremti meg a nyugodt, zöld környezetet.

Aki saját kezűleg szeretné megalkotni álomotthonát, vagy szereti a kreatív felújításokat, ebben az ingatlanban valódi lehetőséget talál. Természetesen azok számára is kiváló választás, akik szakemberek bevonásával képzelik el a modernizálást.

Lokáció szempontjából is kiemelkedő:
közel a városközpont
gyalogosan elérhető óvoda, iskola és bevásárlási lehetőségek
autópálya könnyen elérhető
Hajdúnánás élhető, dinamikusan fejlődő, szerethető város

OTP Banki hátterünknek köszönhetően finanszírozási igényekben (pl. Otthon Start Hitelprogram, Babaváró, Falusi CSOK, CSOK Plusz, Lakáshitel, Személyi kölcsön stb.), illetve biztosítások tekintetében is díjmentesen, soron kívüli ügyintézéssel segítem ügyfeleim! Referenciaszám: M314139

Hirdetés feltöltve: 2025. 12. 12. Utoljára módosítva: 2026. 01. 16.

4 szobás családi házak ára Hajdúnánáson

Ebből az összehasonlításból megtudhatod, hogyan viszonyul a lakás ára a környékbeli családi házak átlagos árához. Ez nem azt jelenti, hogy ennyivel olcsóbb vagy drágább, mint amennyit a lakás ér, hanem hogy ennyivel tér el a környékbeli átlagtól.

Ennek a m² ára
Hajdúnánás m² ár
324 e Ft
254 e Ft -28%
Ennek az ára
Hajdúnánás átlagár
35 M Ft m Ft
33.1 m Ft -6%

Az ingatlan elhelyezkedése

Cím: Hajdúnánás

Eladó családi házak a környékről

Eladó családi ház
Eladó családi ház

Püspökladány

49.8 M Ft
5 szoba
150 m2
Eladó családi ház
Eladó családi ház

Hajdúszoboszló

99 M Ft
5 + 1 szoba
160 m2
Eladó családi ház
Eladó családi ház

Hajdúnánás, Soós Gábor utca 24

11.26 M Ft
1 + 1 szoba
68 m2
Eladó családi ház
Eladó családi ház

Debrecen

150 M Ft
7 szoba
300 m2
Eladó családi ház
Eladó családi ház

Debrecen, Haláp Tanya

365.75 M Ft
10 szoba
500 m2
Eladó családi ház
Eladó családi ház

Debrecen

108.9 M Ft
6 szoba
170 m2
Eladó családi ház
Eladó családi ház

Hajdúszoboszló

185 M Ft
7 szoba
415 m2
Eladó családi ház
Eladó családi ház

Hajdúböszörmény

137 M Ft
6 szoba
240 m2
Eladó családi ház
Eladó családi ház

Hajdúnánás

68.75 M Ft
3 szoba
232 m2
Eladó családi ház
Eladó családi ház

Hajdúnánás

52 M Ft
2 szoba
72 m2
Eladó családi ház
Eladó családi ház

Debrecen, Méhészföld utca

26 M Ft
1 szoba
36 m2
Eladó családi ház
Eladó családi ház

Hajdúnánás

9.8 M Ft
1 + 1 szoba
65 m2
Eladó családi ház
Eladó családi ház

Hajdúnánás

52 M Ft
2 szoba
72 m2
Eladó családi ház
Eladó családi ház

Hajdúnánás

13 M Ft
2 + 1 szoba
56 m2
Eladó családi ház
Eladó családi ház

Hajdúnánás

59.9 M Ft
6 szoba
242 m2
Eladó családi ház
Eladó családi ház

Hajdúnánás

54 M Ft
2 szoba
80 m2
Eladó családi ház
Eladó családi ház

Hajdúnánás

9 M Ft
1 + 1 szoba
65 m2
Eladó családi ház
Eladó családi ház

Hajdúsámson

81 M Ft
2 szoba
80 m2
Eladó családi ház
Eladó családi ház

Derecske

24.9 M Ft
2 szoba
67 m2
Eladó családi ház
Eladó családi ház

Hajdúnánás

279 M Ft
5 szoba
249 m2
Eladó családi ház
Eladó családi ház

Debrecen

75 M Ft
4 szoba
96 m2
Eladó családi ház
Eladó családi ház

Balmazújváros

104.9 M Ft
3 szoba
172 m2
Eladó családi ház
Eladó családi ház

Hajdúnánás

136.9 M Ft
4 + 2 szoba
320 m2
Eladó családi ház
Eladó családi ház

Hajdúnánás

136.9 M Ft
4 + 2 szoba
320 m2

Falusi CSOK ingatlanok

Eladó családi ház
Eladó családi ház

Kislippó

16 M Ft
3 szoba
100 m2
Eladó családi ház
Eladó családi ház

Berzence

38.7 M Ft
5 szoba
110 m2
Eladó családi ház
Eladó családi ház

Szabadbattyán

67.5 M Ft
5 szoba
180 m2
Eladó ikerház
Eladó ikerház

Balatonkeresztúr, Bolygó utca

59.9 M Ft
4 szoba
83 m2
Eladó családi ház
Eladó családi ház

Nagyiván, Rákóczi Ferenc út 17

4.99 M Ft
2 szoba
50 m2
Eladó családi ház
Eladó családi ház

Balatonfenyves

430 M Ft
4 szoba
274 m2
Eladó családi ház
Eladó családi ház

Újlengyel

110 M Ft
4 szoba
121 m2
Eladó családi ház
Eladó családi ház

Homokbödöge

49.9 M Ft
4 + 1 szoba
167 m2