Eladó családi ház
Hajdúnánás

+ 17 kép 1/20
35 000 000 Ft35 M Ft 324 074 Ft/m2
4 szoba
108 m2
építés éve:1950

Részletes adatok

Állapot: Felújítandó
Telekméret: 548 m2
Fűtés: Gázkonvektor
Energetikai besorolás: Nem adta meg a hirdető
Zenga Premier

Friss hirdetések, amiket nem találsz meg más ingatlankereső portálon.

Fedezd fel elsőként a Zenga Premier címkés eladó ingatlanokat!

További részletek a zenga.hu-n

Az OTP Bank lakáshitel ajánlataFizetett hirdetés

+36 70 607
Balogh Imre
referens

Érdekel az OTP Bank kedvezményes lakáshitel ajánlata? *

* A kérdésre „Igen” válasz bejelölése esetén, az „Üzenet küldése” gombra kattintva kijelentem, hogy az OTP Bank Nyrt. Adatkezelési tájékoztatójának tartalmát megismertem és tudomásul vettem.

Eladó családi ház leírása

Felújításra Méltó,
Nagypolgári Ház eladó,
csendes, de aszfaltozott, összközműves utcában,
Hajdúnánás központjának közvetlen közelében.

A Felújítás láthatóan, érzékelhetően egyre több kreatív Fiatalnak válik vágyálmává.
Mesteremberek hiánya, kiszámíthatatlansága, anyagi megfontolások miatt,
egyre többen vallják: DIY, Csináld Magadnak!

Ebben a Házban, csodásan kiélheti Kreativitását Minden ilyen Ember!
Örömmel és szívesen fogadom Őket!

Természetesen azok számára is eladó, akik továbbra is szakemberek munkáit szeretnék igénybe venni.

Kitűnő elhelyezkedésű, szerethető,
és még művelhető léptékű,
548 nm-es, málnás, gyümölcsfás és szőlős telken, helyezkedik el ez a
108 nm-es téglaépítésű Nagypolgári Ház.

A 1950-ben épült, összközműves Ház takarásoktól mentesen, őszintén tárja elénk a felújítás szükségességét.
Még így jelen állapotában is, magával ragadó tud lenni a terek térérzete, a beáradó fény, a világosság mennyisége, az egész tömb meghitt nyugalma.

Megújításával Nagyszerű Otthont lehet belőle készíteni!

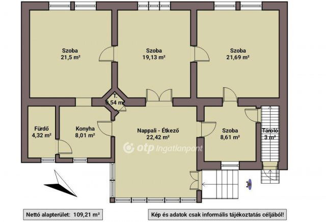
Az alaprajzon jól azonosítható Helyiségei: 4 Szoba, Nappali - Étkező, Konyha, Fürdőszoba és WC, tárolók.
A kert melléképületében, egykori asztalos műhely, Szőlészeti-Borászati tároló, 2 Garázs található.
A kertben, szilvafa, barackfák, nemes szőlők, 30 éves málna ültetvény, és füves tereületek zöldjei adnak nagyszerű kilátást a napfényes Nappali - Étkezőből.

Az ingatlan kitűnő lokációjának köszönhetően, bármi könnyedén és gyorsan elérhető, legyen szó a városközpontról, óvodáról, iskoláról, bevásárlásról vagy akár az autópályáról. Hajdúnánás egy igazán élhető, szerethető város.

Komoly érdeklődés esetén, Személyesen is megtekinthető, előre egyeztetett időpontban.
További információkat biztosítunk a megtekintőknek, keressenek bizalommal megadott elérhetőségeimen!
Referenciaszám: M314139

Kedvezményes kamatozású lakásvásárlási és felújítási hitelek, valamint
Otthon Start, CSOK Plusz és Babaváró ügyintézés az OTP hátterével irodánkban.

Képek és adatok Csak tájékoztatási jelleggel!

Hirdetés feltöltve: 2025. 10. 08. Utoljára módosítva: 2025. 10. 08.

4 szobás családi házak ára Hajdúnánáson

Ebből az összehasonlításból megtudhatod, hogyan viszonyul a lakás ára a környékbeli családi házak átlagos árához. Ez nem azt jelenti, hogy ennyivel olcsóbb vagy drágább, mint amennyit a lakás ér, hanem hogy ennyivel tér el a környékbeli átlagtól.

Ennek a m² ára
Hajdúnánás m² ár
324 e Ft
254 e Ft -28%
Ennek az ára
Hajdúnánás átlagár
35 M Ft m Ft
33.1 m Ft -6%

Az ingatlan elhelyezkedése

Cím: Hajdúnánás

Eladó családi házak a környékről

Eladó családi ház
Eladó családi ház

Püspökladány

25.8 M Ft
2 + 1 szoba
70 m2
Eladó családi ház
Eladó családi ház

Hajdúnánás

37 M Ft
3 szoba
143 m2
Eladó családi ház
Eladó családi ház

Hajdúnánás, Kazinczy utca

69 M Ft
2 szoba
182 m2
Eladó családi ház
Eladó családi ház

Hajdúszoboszló

49.9 M Ft
5 szoba
160 m2
Eladó családi ház
Eladó családi ház

Hajdúnánás

54 M Ft
2 szoba
80 m2
Eladó családi ház
Eladó családi ház

Hajdúnánás

16.95 M Ft
2 szoba
65 m2
Eladó családi ház
Eladó családi ház

Hajdúszoboszló

99 M Ft
5 + 1 szoba
160 m2
Eladó családi ház
Eladó családi ház

Hajdúnánás

10.46 M Ft
1 + 1 szoba
65 m2
Eladó családi ház
Eladó családi ház

Püspökladány

89.999 M Ft
4 + 2 szoba
264 m2
Eladó családi ház
Eladó családi ház

Hajdúböszörmény

15.5 M Ft
2 szoba
45 m2
Eladó családi ház
Eladó családi ház

Debrecen

590 M Ft
8 szoba
740 m2
Eladó családi ház
Eladó családi ház

Debrecen

245 M Ft
5 + 1 szoba
275 m2
Eladó családi ház
Eladó családi ház

Hajdúnánás

83.16 M Ft
6 szoba
242 m2
Eladó családi ház
Eladó családi ház

Hajdúnánás

98 M Ft
3 szoba
128 m2
Eladó családi ház
Eladó családi ház

Hajdúsámson

48.5 M Ft
2 szoba
75 m2
Eladó családi ház
Eladó családi ház

Hajdúböszörmény

99 M Ft
2 + 1 szoba
142 m2
Eladó családi ház
Eladó családi ház

Hajdúnánás

125 M Ft
5 szoba
180 m2
Eladó családi ház
Eladó családi ház

Hajdúnánás

74 M Ft
6 szoba
242 m2
Eladó családi ház
Eladó családi ház

Hajdúnánás

74 M Ft
4 szoba
242 m2
Eladó családi ház
Eladó családi ház

Hajdúnánás

69 M Ft
2 szoba
182 m2
Eladó családi ház
Eladó családi ház

Hajdúnánás

125 M Ft
4 + 1 szoba
180 m2
Eladó családi ház
Eladó családi ház

Debrecen, Lencztelep, Szeged utca

129.9 M Ft
7 szoba
240 m2
Eladó családi ház
Eladó családi ház

Debrecen, Haláp Tanya

371.45 M Ft
10 szoba
500 m2
Eladó családi ház
Eladó családi ház

Debrecen

105 M Ft
3 szoba
120 m2

Falusi CSOK ingatlanok

Eladó családi ház
Eladó családi ház

Tápióbicske

37.5 M Ft
2 szoba
70 m2
Eladó családi ház
Eladó családi ház

Baktalórántháza

32.9 M Ft
6 szoba
194 m2
Eladó családi ház
Eladó családi ház

Zsámbok

33 M Ft
2 szoba
80 m2
Eladó családi ház
Eladó családi ház

Szentmártonkáta

35.4 M Ft
2 + 2 szoba
107 m2
Eladó családi ház
Eladó családi ház

Úrkút, Temető utca

99 M Ft
7 szoba
540 m2
Eladó családi ház
Eladó családi ház

Szentistván

31 M Ft
3 szoba
140 m2
Eladó családi ház
Eladó családi ház

Balatonszárszó

56.5 M Ft
3 szoba
60 m2
Eladó családi ház
Eladó családi ház

Csátalja, Kossuth Lajos utca

41.9 M Ft
3 szoba
90 m2