Aerogate Homes

Eladó családi ház
Győr

164 990 000 Ft164.99 M Ft 916 611 Ft/m2
4 szoba
180 m²
építés éve:2025

Részletes adatok

Telekméret: 540 m2
Fűtés: Egyéb
Energetikai besorolás: A++

Az OTP Bank lakáshitel ajánlataFizetett hirdetés

+36 70 372
Molnár Szidónia
Openhouse Győr - Belváros Ingatlaniroda

Érdekel az OTP Bank kedvezményes lakáshitel ajánlata? *

* A kérdésre „Igen” válasz bejelölése esetén, az „Üzenet küldése” gombra kattintva kijelentem, hogy az OTP Bank Nyrt. Adatkezelési tájékoztatójának tartalmát megismertem és tudomásul vettem.

Eladó családi ház leírása

Az Openhouse Győr - Belváros Ingatlaniroda kínálatában eladó a #180051 hivatkozási számú győri családi ház.

Új építésű, A+ energetikájú sorházi lakás Győr-Likócson

Győr-Likócs csendes, új kialakítású utcájában kínáljuk megvételre ezt a modern, kétszintes sorházi lakóegységet.

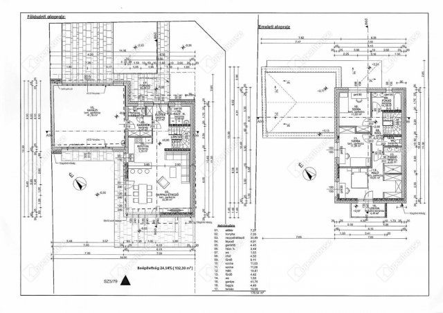
A lakás nettó 179,54 m² hasznos alapterületű, praktikus, családbarát elosztással:

tágas, 33 m²-es nappali-étkező

külön konyha + kamra

3 hálószoba

2 fürdőszoba + külön WC

gardrób és háztartási helyiség

loggia

egyállásos, közel 42 m²-es garázs

A telek területe 539 m², a tervezett zöldfelület aránya közel 60%, így valódi kertkapcsolatos otthonról beszélünk.

Műszaki tartalom:

levegő–víz hőszivattyús rendszer

padlófűtés

1x32 A nappali + 1x20 A H-tarifa

korszerű, rejtett villamos hálózat

Az ingatlan A+ energetikai besorolású, az összesített energetikai jellemző 67,24 kWh/m²/év, megfelel a közel nulla energiaigény követelményeinek.

Letisztult, lapostetős, modern megjelenés, zártsorú beépítés, nyugodt, falusias lakóövezetben.

Ideális választás családok számára, akik új építésű, korszerű, alacsony rezsijű otthont keresnek Győr egyik fejlődő városrészében.

Ha felkeltette érdeklődését ez az eladó győri családi ház, vagy bármely más családi ház és bővebb információt szeretne, keressen bizalommal.Hivatkozási szám: #180051

Az Openhouse Győr - Belváros Ingatlaniroda tagjaként várom Önt az országos hálózatunk teljes kínálatával.

A családi ház vásárláshoz hitelt igényelne? Ingyenes hitelközvetítéssel segít Önnek bankfüggetlen hitelszakértőnk.

További szolgáltatásainkkal (pl. értékbecslés, energetikai tanúsítvány, jogi háttér) is segítjük Önt a vásárlásban.
Az otthon érték. Az ingatlan üzlet.

Hirdetés feltöltve: 2026. 03. 04. Utoljára módosítva: 2026. 05. 10.

4 szobás családi házak ára Győrött

Ebből az összehasonlításból megtudhatod, hogyan viszonyul a lakás ára a környékbeli családi házak átlagos árához. Ez nem azt jelenti, hogy ennyivel olcsóbb vagy drágább, mint amennyit a lakás ér, hanem hogy ennyivel tér el a környékbeli átlagtól.

Ennek a m² ára
Győr m² ár
917 e Ft
851 e Ft -8%
Ennek az ára
Győr átlagár
164.99 M Ft m Ft
127.7 m Ft -29%

Az ingatlan elhelyezkedése

Cím: Győr

Eladó családi házak a környékről

Győr
Eladó családi ház

Győr

11 M Ft
1 szoba
18 m²
Lébény
Eladó családi ház

Lébény

62.99 M Ft
4 szoba
90 m²
Kapuvár
Eladó családi ház

Kapuvár

115 M Ft
5 szoba
222 m²
Győr
Eladó családi ház

Győr

165 M Ft
10 szoba
320 m²
Dunakiliti
Eladó családi ház

Dunakiliti

120.743 M Ft
3 + 1 szoba
140 m²
Győr
Eladó családi ház

Győr

278 M Ft
6 szoba
339 m²
Nagycenk
Eladó családi ház

Nagycenk

64.8 M Ft
3 + 1 szoba
76 m²
Sopron
Eladó családi ház

Sopron

210 M Ft
3 + 2 szoba
256 m²
Enese
Eladó családi ház

Enese

64.664 M Ft
3 szoba
75 m²
Győr
Eladó családi ház

Győr

278 M Ft
6 szoba
339 m²
Győr
Eladó családi ház

Győr

185 M Ft
7 szoba
215 m²
Sopron
Eladó családi ház

Sopron

189.9 M Ft
8 szoba
280 m²
Győr
Eladó családi ház

Győr

141 M Ft
4 szoba
133 m²
Győr
Eladó családi ház

Győr

220 M Ft
5 szoba
279 m²
Győr
Eladó családi ház

Győr

19.9 M Ft
2 szoba
60 m²
Győr
Eladó családi ház

Győr

710.34 M Ft
5649 m²
510 m²
Nagycenk
Eladó családi ház

Nagycenk

80.6 M Ft
4 szoba
106 m²
Győr
Eladó családi ház

Győr

149.8 M Ft
5 szoba
207 m²
Győr
Eladó családi ház

Győr

179.9 M Ft
6 szoba
225 m²
Fertőszéplak
Eladó családi ház

Fertőszéplak

95 M Ft
5 szoba
95 m²
Zsira
Eladó családi ház

Zsira

110.9 M Ft
8 szoba
200 m²
Győr
Eladó családi ház

Győr

710.34 M Ft
10.15 ha
884 m²
Sopron
Eladó családi ház

Sopron

170 M Ft
4 szoba
122 m²
Győr
Eladó családi ház

Győr

265 M Ft
4 szoba
220 m²

Falusi CSOK ingatlanok

Bakonyszentlászló
Eladó családi ház

Bakonyszentlászló

48.5 M Ft
3 szoba
103 m²
Balatonudvari
Eladó családi ház

Balatonudvari

230 M Ft
9 szoba
260 m²
Tab, Rákóczi utca 45
Eladó családi ház

Tab

17.13 M Ft
1 + 1 szoba
105 m²
Beremend, 7827 Beremend, Petőfi Sándor utca 10
Eladó családi ház

Beremend

11.95 M Ft
1 + 1 szoba
124 m²
Tóalmás
Eladó családi ház

Tóalmás

38.9 M Ft
3 szoba
62 m²
Márianosztra
Eladó családi ház

Márianosztra

38 M Ft
4 szoba
75 m²
Köveskál
Eladó családi ház

Köveskál

215 M Ft
4 szoba
100 m²
Csurgó
Eladó családi ház

Csurgó

55 M Ft
6 szoba
257 m²