Eladó családi ház
Győr

+ 1 kép 1/4
83 400 000 Ft83.4 M Ft 926 667 Ft/m2
4 szoba
90 m2
építés éve:2025

Részletes adatok

Telekméret: 622 m2
Fűtés: Egyéb
Energetikai besorolás: Nem adta meg a hirdető

Az OTP Bank lakáshitel ajánlataFizetett hirdetés

+36 70 622
Komádi Csaba
referens

Érdekel az OTP Bank kedvezményes lakáshitel ajánlata? *

* A kérdésre „Igen” válasz bejelölése esetén, az „Üzenet küldése” gombra kattintva kijelentem, hogy az OTP Bank Nyrt. Adatkezelési tájékoztatójának tartalmát megismertem és tudomásul vettem.

Eladó családi ház leírása

Az ingatlan Horizont könnyűszerkezetes technológiával épül, amely biztosítja a gyors kivitelezést és a kiváló energiahatékonyságot. A Horizont technológia előnyei közé tartozik az alacsony hőveszteség, a korszerű szigetelés, valamint a rugalmas és költséghatékony megoldások, amelyek hosszú távon is fenntartható és gazdaságos lakóhelyet biztosítanak. Igény esetén hagyományos téglával is felépíthető az épület.

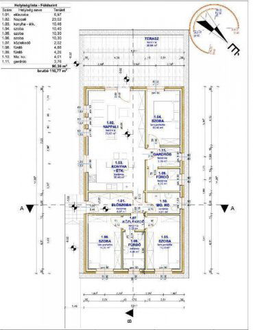
A tervezett házban amerikai konyhás nappali, három hálószoba, két fürdőszoba, gardrób és egy tágas terasz található, melyek kényelmes, praktikus elrendezést biztosítanak a család számára.

A kivitelezés a megrendeléstől számítva, a szerkezet és az időjárás függvényében, körülbelül 3-6 hónap alatt szerkezetkész állapotig készül el. Igény esetén kulcsrakész állapot is rendelhető, az értékegyeztetés függvényében.

A fűtésről korszerű, levegő-víz hőszivattyú gondoskodik, padlófűtéssel, amely ideális a Horizont technológia által biztosított energiahatékonysághoz.
Részletes prezentációért keressen bizalommal és hivatkozzon az M299305 referenciaszámra!

A fűtésről korszerű, levegő-víz hőszivattyú gondoskodik, padlófűtéssel, amely ideális a Horizont technológia által biztosított energiahatékonysághoz.
Részletes prezentációért keressen bizalommal és hivatkozzon az M299305 referenciaszámra!
Állok rendelkezésre ingatlan eladás-vétel, pénzügyi termékek, hitel, CSOK ügyintézésében. Több százas ingatlanállományból biztos megtalálom az Ön igényeinek megfelelőt! Hívjon bizalommal: Komádi Csaba +36706229209

Referencia szám: M299305-ZE

Hirdetés feltöltve: 2025. 10. 20. Utoljára módosítva: 2025. 10. 20.

4 szobás családi házak ára Győrött

Ebből az összehasonlításból megtudhatod, hogyan viszonyul a lakás ára a környékbeli családi házak átlagos árához. Ez nem azt jelenti, hogy ennyivel olcsóbb vagy drágább, mint amennyit a lakás ér, hanem hogy ennyivel tér el a környékbeli átlagtól.

Ennek a m² ára
Győr m² ár
927 e Ft
892 e Ft -4%
Ennek az ára
Győr átlagár
83.4 M Ft m Ft
115 m Ft 27%

Az ingatlan elhelyezkedése

Cím: Győr

Eladó családi házak a környékről

Eladó családi ház
Eladó családi ház

Győr

39.8 M Ft
3 szoba
120 m2
Eladó családi ház
Eladó családi ház

Győr

365 M Ft
3 + 2 szoba
478 m2
Eladó családi ház
Eladó családi ház

Nagycenk

64.8 M Ft
3 + 1 szoba
76 m2
Eladó családi ház
Eladó családi ház

Harka

99 M Ft
4 szoba
103 m2
Eladó családi ház
Eladó családi ház

Győr

278 M Ft
6 szoba
339 m2
Eladó családi ház
Eladó családi ház

Győr

800.26 M Ft
5649 m²
510 m2
Eladó családi ház
Eladó családi ház

Győr

78 M Ft
3 szoba
126 m2
Eladó családi ház
Eladó családi ház

Nagycenk

102.5 M Ft
4 szoba
98 m2
Eladó családi ház
Eladó családi ház

Győr

69.9 M Ft
5 szoba
144 m2
Eladó családi ház
Eladó családi ház

Győr

98.8 M Ft
5 + 1 szoba
184 m2
Eladó családi ház
Eladó családi ház

Lébény

62.99 M Ft
4 szoba
90 m2
Eladó családi ház
Eladó családi ház

Győr

325 M Ft
6 szoba
365 m2
Eladó családi ház
Eladó családi ház

Győr

781.42 M Ft
101479 m²
884 m2
Eladó családi ház
Eladó családi ház

Győr

62.99 M Ft
4 szoba
85 m2
Eladó családi ház
Eladó családi ház

Harka

60.9 M Ft
3 + 1 szoba
67 m2
Eladó családi ház
Eladó családi ház

Kapuvár

115 M Ft
5 szoba
222 m2
Eladó családi ház
Eladó családi ház

Sopron

130 M Ft
3 szoba
140 m2
Eladó családi ház
Eladó családi ház

Győr

95 M Ft
2 + 1 szoba
400 m2
Eladó családi ház
Eladó családi ház

Győr

183.5 M Ft
4 szoba
230 m2
Eladó családi ház
Eladó családi ház

Győr

207.076 M Ft
6 szoba
285 m2
Eladó családi ház
Eladó családi ház

Győr, Nagyhegy utca

63 M Ft
4 szoba
73 m2
Eladó családi ház
Eladó családi ház

Mosonmagyaróvár

66.9 M Ft
4 szoba
192 m2
Eladó családi ház
Eladó családi ház

Győr, Szabadhegy, Jáki utca

212.069 M Ft
6 szoba
285 m2
Eladó családi ház
Eladó családi ház

Győr

279 M Ft
5 szoba
155 m2

Falusi CSOK ingatlanok

Eladó családi ház
Eladó családi ház

Bag

86 M Ft
3 szoba
86 m2
Eladó családi ház
Eladó családi ház

Ceglédbercel

45 M Ft
2 + 1 szoba
127 m2
Eladó családi ház
Eladó családi ház

Szil

25 M Ft
2 szoba
90 m2
Eladó családi ház
Eladó családi ház

Őr, Dózsa György utca 17

1.6 M Ft
1 + 1 szoba
87 m2
Eladó családi ház
Eladó családi ház

Bácsbokod

12.9 M Ft
3 szoba
90 m2
Eladó családi ház
Eladó családi ház

Mágocs, Ady Endre utca 86

7.9 M Ft
4 szoba
128 m2
Eladó családi ház
Eladó családi ház

Bácsborsód

13 M Ft
3 szoba
84 m2
Eladó családi ház
Eladó családi ház

Pórszombat

20.5 M Ft
3 szoba
88 m2