Eladó családi ház
Gyál

+ 1 kép 1/4
149 900 000 Ft149.9 M Ft 931 056 Ft/m2
5 szoba
161 m2
építés éve:2025

Részletes adatok

Telekméret: 449 m2
Fűtés: Egyéb
Energetikai besorolás: Nem adta meg a hirdető

Az OTP Bank lakáshitel ajánlataFizetett hirdetés

+36 70 465
Ravasz Katalin
referens

Érdekel az OTP Bank kedvezményes lakáshitel ajánlata? *

* A kérdésre „Igen” válasz bejelölése esetén, az „Üzenet küldése” gombra kattintva kijelentem, hogy az OTP Bank Nyrt. Adatkezelési tájékoztatójának tartalmát megismertem és tudomásul vettem.

Eladó családi ház leírása

Eladó újépítésű családi ház Gyálon!

Alapterület:nettó 161 m2, bruttó 216m2

Szobák száma: 4 szoba + nappali-konyha

Oldalhatárra épített, emeletes családi ház rendezett környéken.

Műszaki tartalom (részlet)
- falazata 30-as Porotherm tégla 15 cm-es szigeteléssel, lábazat 12 cm XPS szigetelés
- válaszfalak 10 cm-es tégla
- hőszivattyús padlófűtés
- 3 rétegű külső nyílászárók, fehér kivitelben
- hideg-, meleg burkolatok, szaniterek belső nyílászárók választhatók
- 1 klíma a nappaliban, további klíma kiállás minden helyiségben.
-Elektromos redőny,
-elektromos garázsajtó és kettő elektromos kapu
-Riasztó- és kamerarendszer kiállás,
-külső homlokzati világítás,
- autóbeálló viakolorral burkolva.
-Napelem előkészítés
- 3x25 amper

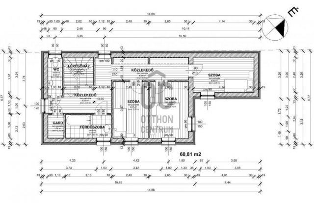
Az alaprajz tájékoztató jellegű!

Egyedi kívánságok figyelembevételével:
A ház építkezésének készenléti állapotától függően lehetőség van egyedi igények megvalósítására, AKÁR a már kész részek átalakítására,felár fejében, burkolatok, szaniterek és beltéri ajtók választására, így otthona még inkább az Ön egyéni ízlésére szabható.

Teljes műszaki leírás és dokumentáció rendelkezésre áll, kérésre szívesen megküldöm.

Jelenlegi készültségi szint: A falazásnál tartanak

Az ár kulcsrakész állapotra vonatkozik.

Átadás várható ideje: 2026.06.30.

osztatlan közös ügyvédi megosztás.

Ne hagyja ki ezt a kivételes lehetőséget!
Hívjon a hét bármelyik napján, hogy megismerje közelebbről ezt a kiváló, minden igényt kielégítő családi házat!

További információval örömmel állok rendelkezésére.

Referencia szám: U0048801

Hirdetés feltöltve: 2025. 10. 10.

5 szobás családi házak ára Gyálon

Ebből az összehasonlításból megtudhatod, hogyan viszonyul a lakás ára a környékbeli családi házak átlagos árához. Ez nem azt jelenti, hogy ennyivel olcsóbb vagy drágább, mint amennyit a lakás ér, hanem hogy ennyivel tér el a környékbeli átlagtól.

Ennek a m² ára
Gyál m² ár
931 e Ft
774 e Ft -20%
Ennek az ára
Gyál átlagár
149.9 M Ft m Ft
158.2 m Ft 5%

Az ingatlan elhelyezkedése

Cím: Gyál

Eladó családi házak a környékről

Eladó családi ház
Eladó családi ház

Budakeszi, Budakeszi kertváros

229 M Ft
10 szoba
450 m2
Eladó családi ház
Eladó családi ház

Gyál

159.9 M Ft
5 szoba
158 m2
Eladó családi ház
Eladó családi ház

Gyál

124.99 M Ft
5 szoba
135 m2
Eladó családi ház
Eladó családi ház

Dunavarsány

46.9 M Ft
3 + 2 szoba
130 m2
Eladó családi ház
Eladó családi ház

Gyál

475 M Ft
10 szoba
620 m2
Eladó családi ház
Eladó családi ház

Gyál

89 M Ft
3 szoba
95 m2
Eladó családi ház
Eladó családi ház

Budakeszi, Budakeszi kertváros

140 M Ft
2 szoba
55 m2
Eladó családi ház
Eladó családi ház

Tápiószentmárton

7.9 M Ft
2 + 1 szoba
86 m2
Eladó családi ház
Eladó családi ház

Budakeszi, Makkosmária

100 M Ft
1 szoba
10 m2
Eladó családi ház
Eladó családi ház

Gyál

475 M Ft
10 szoba
620 m2
Eladó családi ház
Eladó családi ház

Budaörs, Városközpont utca

119.5 M Ft
5 + 1 szoba
140 m2
Eladó családi ház
Eladó családi ház

Érd

164.9 M Ft
5 szoba
192 m2
Eladó családi ház
Eladó családi ház

Gyál

139 M Ft
5 szoba
149 m2
Eladó családi ház
Eladó családi ház

Gyál

94.9 M Ft
5 szoba
135 m2
Eladó családi ház
Eladó családi ház

Sződ, Rátóti utca

149.99 M Ft
11 szoba
270 m2
Eladó családi ház
Eladó családi ház

Tápiógyörgye

19.9 M Ft
3 szoba
65 m2
Eladó családi ház
Eladó családi ház

Érd

382 M Ft
6 szoba
420 m2
Eladó családi ház
Eladó családi ház

Gyál

69.9 M Ft
4 szoba
117 m2
Eladó családi ház
Eladó családi ház

Dunakeszi

250 M Ft
4 szoba
180 m2
Eladó családi ház
Eladó családi ház

Kerepes

199 M Ft
6 szoba
360 m2
Eladó családi ház
Eladó családi ház

Gyál, Gyál út

169.9 M Ft
2 szoba
90 m2
Eladó családi ház
Eladó családi ház

Gyál

89 M Ft
3 szoba
95 m2
Eladó családi ház
Eladó családi ház

Gyál

69.9 M Ft
4 szoba
117 m2
Eladó családi ház
Eladó családi ház

Gyál

475 M Ft
10 szoba
620 m2

Falusi CSOK ingatlanok

Eladó családi ház
Eladó családi ház

Balatonkeresztúr, Dózsa György u. 29

145 M Ft
5 szoba
150 m2
Eladó családi ház
Eladó családi ház

Mernye

24 M Ft
3 szoba
105 m2
Eladó családi ház
Eladó családi ház

Makád

140 M Ft
4 szoba
79 m2
Eladó családi ház
Eladó családi ház

Bár

89.5 M Ft
4 + 1 szoba
172 m2
Eladó családi ház
Eladó családi ház

Jászkarajenő

11 M Ft
2 szoba
52 m2
Eladó sorház
Eladó sorház

Szob

16 M Ft
2 szoba
45 m2
Eladó családi ház
Eladó családi ház

Görbeháza

22.5 M Ft
2 szoba
60 m2
Eladó családi ház
Eladó családi ház

Szentmártonkáta

35.4 M Ft
2 + 2 szoba
107 m2