Oasis Residence

Eladó családi ház
Gesztely

Figyelem!

Ez az ingatlan a 2019.07.01-től induló falusi CSOK által támogatott településen található

+ 15 kép 1/18
22 900 000 Ft22.9 M Ft 220 192 Ft/m2
3 szoba
104 m2
építés éve:1985

Részletes adatok

Állapot: Felújítandó
Telekméret: 626 m2
Fűtés: Gázkonvektor
Energetikai besorolás: Nem adta meg a hirdető

Az OTP Bank lakáshitel ajánlataFizetett hirdetés

+36 20 449
Nagy István György
OTP Ingatlanpont Miskolc Szemere

Érdekel az OTP Bank kedvezményes lakáshitel ajánlata? *

* A kérdésre „Igen” válasz bejelölése esetén, az „Üzenet küldése” gombra kattintva kijelentem, hogy az OTP Bank Nyrt. Adatkezelési tájékoztatójának tartalmát megismertem és tudomásul vettem.

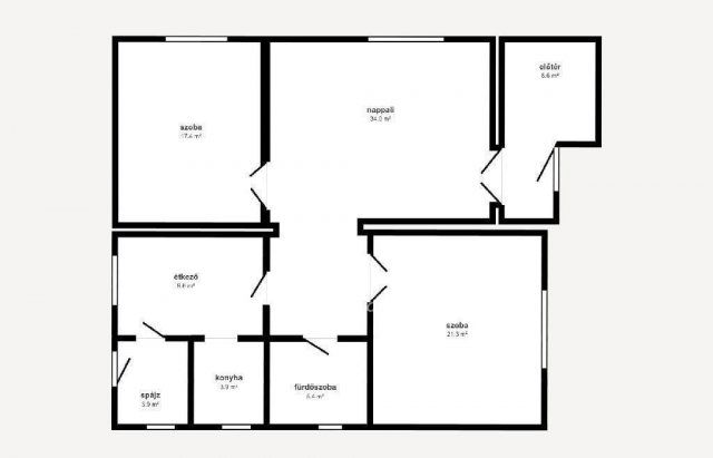
Eladó családi ház leírása

Gesztely település kertvárosi részén eladó egy felújítandó 104 nm-es tégla építésű családi ház! Az ingatlan egy 626 m2-es portán helyezkedik el, tetőtér beépítési lehetőséggel. A tágas nappaliból érhető el a külön nyíló 2 szoba, fürdőszoba, az étkezőből nyíló konyha és spájz. Fűtése gázkonvektoros, a használati melegvíz hőtárolós bojlerrel megoldott. A tető jó állapotú, nyílászárói eredeti fa nyílászárók. Minden közművel ellátott, szennyvíz csatlakozási lehetőség telken belül. Az ingatlan stabil szerkezetű, jó adottságokkal rendelkező, csendes környezetben található.
Elhelyezkedése jó, 500 méterre a 37-es úttól, 10 km-re Miskolctól.
A település rendelkezik az alapvető szociális, nevelési intézményekkel. Infrastruktúrája kiépített, kereskedelmi és szolgáltatási ellátása biztosított.
A ház per és tehermentesen vehető át, birtokbaadás rövid idő alatt megoldott.
OTP Banki hátterünkkel állunk ügyfeleink rendelkezésére finanszírozási kérdésekben legyen szó akár CSOK-ról, lakáshitelről. Az ingatlan alkalmas az Otthon Start Program 3 %-os hitelre!
Amennyiben ház adottságai, előnyös elhelyezkedése felkeltette érdeklődését, és szívesen megtekintené személyesen az ingatlant, kérem hívjon bizalommal akár hétvégén is! M307189

Hirdetés feltöltve: 2025. 12. 03.

Az ingatlan elhelyezkedése

Cím: Gesztely

Eladó ingatlanok a környékről

Eladó családi ház
Eladó családi ház

Gönc

26 M Ft
3 szoba
130 m2
Eladó családi ház
Eladó családi ház

Miskolc

25.9 M Ft
4 szoba
148 m2
Eladó családi ház
Eladó családi ház

Ózd

14.7 M Ft
3 szoba
95 m2
Eladó családi ház
Eladó családi ház

Edelény

31.5 M Ft
2 szoba
75 m2
Eladó családi ház
Eladó családi ház

Gesztely

21.9 M Ft
3 szoba
90 m2
Eladó családi ház
Eladó családi ház

Szikszó

37 M Ft
2 szoba
91 m2
Eladó családi ház
Eladó családi ház

Gesztely

21.9 M Ft
3 szoba
90 m2
Eladó családi ház
Eladó családi ház

Szikszó

89.9 M Ft
3 szoba
100 m2
Eladó téglalakás
Eladó téglalakás

Miskolc

74.9 M Ft
3 szoba
94 m2
Eladó családi ház
Eladó családi ház

Ózd

25.99 M Ft
4 szoba
198 m2
Eladó családi ház
Eladó családi ház

Gesztely

21.9 M Ft
3 szoba
90 m2
Eladó téglalakás
Eladó téglalakás

Sajószentpéter

20.9 M Ft
2 + 1 szoba
54 m2
Eladó családi ház
Eladó családi ház

Gesztely

22.9 M Ft
3 szoba
104 m2
Eladó családi ház
Eladó családi ház

Ózd

26.5 M Ft
3 szoba
100 m2
Eladó családi ház
Eladó családi ház

Ónod, Nyéki utca

20.7 M Ft
2 + 1 szoba
90 m2
Eladó családi ház
Eladó családi ház

Ózd, Ózd falu, 48-as út

39.9 M Ft
3 + 1 szoba
300 m2
Eladó családi ház
Eladó családi ház

Szikszó

37 M Ft
2 szoba
91 m2
Eladó családi ház
Eladó családi ház

Miskolc

89 M Ft
6 szoba
200 m2
Eladó családi ház
Eladó családi ház

Nemesbikk, Kossuth utca 3

4.5 M Ft
2 szoba
80 m2
Eladó családi ház
Eladó családi ház

Sajószentpéter

34.9 M Ft
2 + 2 szoba
100 m2
Eladó családi ház
Eladó családi ház

Gesztely, József A. út 26

8.25 M Ft
1 + 1 szoba
84 m2
Eladó családi ház
Eladó családi ház

Gesztely

9.9 M Ft
2 szoba
75 m2
Eladó családi ház
Eladó családi ház

Putnok

11.99 M Ft
2 szoba
85 m2
Eladó családi ház
Eladó családi ház

Putnok

11 M Ft
3 szoba
79 m2

Falusi CSOK ingatlanok

Eladó családi ház
Eladó családi ház

Kenyeri

39.9 M Ft
3 szoba
94 m2
Eladó családi ház
Eladó családi ház

Csatár

98.5 M Ft
2 + 3 szoba
110 m2
Eladó családi ház
Eladó családi ház

Balatonszárszó

185 M Ft
6 szoba
260 m2
Eladó családi ház
Eladó családi ház

Iváncsa

73.9 M Ft
1 + 3 szoba
97 m2
Eladó téglalakás
Eladó téglalakás

Vasvár

40.52 M Ft
2 szoba
59 m2
Eladó téglalakás
Eladó téglalakás

Rétság

44.9 M Ft
2 szoba
55 m2
Eladó családi ház
Eladó családi ház

Nagybörzsöny

36 M Ft
2 + 1 szoba
74 m2
Eladó családi ház
Eladó családi ház

Tanakajd

17.9 M Ft
3 szoba
61 m2

Falusi CSOK ingatlanok

Eladó családi ház
Eladó családi ház

Vajszló

18 M Ft
2 szoba
91 m2
Eladó családi ház
Eladó családi ház

Hernádnémeti

18.9 M Ft
2 szoba
62 m2
Eladó családi ház
Eladó családi ház

Csátalja, Dózsa György utca

36 M Ft
3 szoba
110 m2
Eladó családi ház
Eladó családi ház

Ceglédbercel

67 M Ft
5 szoba
174 m2
Eladó családi ház
Eladó családi ház

Pannonhalma

76.4 M Ft
4 szoba
97 m2
Eladó családi ház
Eladó családi ház

Hegyeshalom

85 M Ft
4 + 1 szoba
123 m2
Eladó családi ház
Eladó családi ház

Gönyű

111.951 M Ft
4 szoba
105 m2
Eladó családi ház
Eladó családi ház

Tokod

89 M Ft
6 szoba
187 m2