NapForrás 20 - Buda

Eladó családi ház
Szikszó

+ 15 kép 1/18
37 000 000 Ft37 M Ft 406 593 Ft/m2
2 szoba
91 m²
építés éve:1962

Részletes adatok

Telekméret: 1095 m2
Fűtés: Gázkonvektor
Energetikai besorolás: Nem adta meg a hirdető

Az OTP Bank lakáshitel ajánlataFizetett hirdetés

+36 70 907
Klubert Gergő
OTP Ingatlanpont Miskolc Szemere

Érdekel az OTP Bank kedvezményes lakáshitel ajánlata? *

* A kérdésre „Igen” válasz bejelölése esetén, az „Üzenet küldése” gombra kattintva kijelentem, hogy az OTP Bank Nyrt. Adatkezelési tájékoztatójának tartalmát megismertem és tudomásul vettem.

Eladó családi ház leírása

Eladó családi ház Szikszó csendes utcájában, tágas telekkel!
Eladásra kínálok Szikszón, nyugodt, rendezett környezetben, egy 91 m2-es, családi házat, amely egy 1095 m2-es, gondozott telken helyezkedik el. Az ingatlan 1960-ban épült, főfalai vályogból, a mellékfalak téglából készültek.
Ideális választás családoknak vagy pároknak, akik csendes, biztonságos lakókörnyezetben keresnek otthont.
Az évek során a ház folyamatos karbantartást kapott, több fontos felújítás is megtörtént: műanyag, hőszigetelt nyílászárók, vízvezeték cseréje, villanyvezetékek részben felújítva, tetőszerkezet részben felújítva,30 cm vastag üveggyapot födémszigetelés, ami jó hőmegtartást biztosít.
A fűtést gázkonvektorok, a melegvizet villanybojler biztosítja, így a fenntartási költségek kedvezőek.
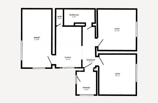
Helyiségek és burkolatok:
A ház elrendezése praktikus és tágas: nappali + étkező ,konyha, két hálószoba, fürdőszoba és WC egyben, előszoba. A szobákban laminált padló, a többi helyiségben járólap található.
A nappali folytatásában terasz kialakítása is lehetséges, és a filagória alapja már elkészült, így a kert további kényelmi funkciókkal könnyen bővíthető.
Telek és környezet:
A 1095 m2-es telek rendezett, jól kihasználható, többféle lehetőséget kínál: kertészkedésre, pihenésre, akár kisállattartásra is kiváló. Udvaron garázs is megtalálható.
A környék csendes, jó szomszédsággal és biztonságos lakókörnyezettel.
A vételár tartalmazza:
A ház részben bútorozott, a következő bútorok a vételár részét képezik: konyhabútor, nappali bútor, hálószobabútor.
Ez az ingatlan remek lehetőség mindazoknak, akik egy nyugodt, biztonságos környéken, felújított, azonnal költözhető házat keresnek Szikszón.
Banki háttérrel, teljes körű ügyintézéssel segítem a vásárlást! Otthon Start Hitelprogram, CSOK Plusz és lakáshitel ügyintézésben is támogatást nyújtok díjmentesen! Érdeklődés esetén hivatkozzon M314937 azonosítási számra.

Hirdetés feltöltve: 2025. 12. 03. Utoljára módosítva: 2026. 05. 10.

2 szobás családi házak ára Szikszón

Ebből az összehasonlításból megtudhatod, hogyan viszonyul a lakás ára a környékbeli családi házak átlagos árához. Ez nem azt jelenti, hogy ennyivel olcsóbb vagy drágább, mint amennyit a lakás ér, hanem hogy ennyivel tér el a környékbeli átlagtól.

Ennek a m² ára
Szikszó m² ár
407 e Ft
393 e Ft -3%
Ennek az ára
Szikszó átlagár
37 M Ft m Ft
30 m Ft -23%

Az ingatlan elhelyezkedése

Cím: Szikszó

Eladó családi házak a környékről

Szikszó
Eladó családi ház

Szikszó

47 M Ft
6 szoba
200 m²
Miskolc, Martin kertváros
Eladó családi ház

Miskolc

89.999 M Ft
4 szoba
128 m²
Szikszó
Eladó családi ház

Szikszó

22 M Ft
3 szoba
60 m²
Szikszó
Eladó családi ház

Szikszó

22 M Ft
3 szoba
60 m²
Miskolc
Eladó családi ház

Miskolc

25.9 M Ft
4 szoba
148 m²
Szikszó
Eladó családi ház

Szikszó

22 M Ft
2 szoba
60 m²
Miskolc
Eladó családi ház

Miskolc

54.99 M Ft
4 szoba
103 m²
Szikszó, 3800 Szikszó, Bajcsy-Zsilinszky út 42
Eladó családi ház

Szikszó

5.4 M Ft
1 + 1 szoba
55 m²
Szikszó
Eladó családi ház

Szikszó

58.6 M Ft
5 szoba
137 m²
Sajószentpéter, Borsvezér
Eladó családi ház

Sajószentpéter

49.5 M Ft
6 szoba
220 m²
Miskolc
Eladó családi ház

Miskolc

110 M Ft
6 szoba
199 m²
Tiszalúc, Alkotmány utca
Eladó családi ház

Tiszalúc

16.9 M Ft
4 szoba
137 m²
Szikszó
Eladó családi ház

Szikszó

56.99 M Ft
6 szoba
200 m²
Miskolc
Eladó családi ház

Miskolc

149 M Ft
4 szoba
463 m²
Ózd
Eladó családi ház

Ózd

7.3 M Ft
3 szoba
125 m²
Komlóska
Eladó családi ház

Komlóska

55.9 M Ft
7 szoba
247 m²
Putnok
Eladó családi ház

Putnok

11 M Ft
3 szoba
79 m²
Szikszó
Eladó családi ház

Szikszó

20.9 M Ft
4 szoba
100 m²
Sajószentpéter, Petőfi Sándor utca
Eladó családi ház

Sajószentpéter

10.9 M Ft
3 szoba
54 m²
Szikszó
Eladó családi ház

Szikszó

25.5 M Ft
5 szoba
180 m²
Ózd
Eladó családi ház

Ózd

13 M Ft
5 szoba
150 m²
Gönc
Eladó családi ház

Gönc

26 M Ft
3 szoba
130 m²
Szikszó
Eladó családi ház

Szikszó

19.9 M Ft
2 szoba
75 m²
Szikszó
Eladó családi ház

Szikszó

37 M Ft
2 szoba
91 m²

Falusi CSOK ingatlanok

Becsehely
Eladó családi ház

Becsehely

24.6 M Ft
2 szoba
99 m²
Bak
Eladó családi ház

Bak

49.9 M Ft
5 szoba
140 m²
Berzence
Eladó családi ház

Berzence

14.9 M Ft
4 szoba
132 m²
Kunadacs
Eladó családi ház

Kunadacs

80 M Ft
4 szoba
148 m²
Balatonkenese, Széchenyi utca
Eladó téglalakás

Balatonkenese

129.9 M Ft
3 szoba
83 m²
Bag
Eladó ikerház

Bag

86.5 M Ft
3 szoba
67 m²
Balatonszemes
Eladó téglalakás

Balatonszemes

123.3 M Ft
2 szoba
0 m²
Egerbakta
Eladó családi ház

Egerbakta

43.9 M Ft
5 + 1 szoba
160 m²