Pesti Házak

Eladó téglalakás
Miskolc, 1. emelet

+ 17 kép 1/20
74 900 000 Ft74.9 M Ft 796 809 Ft/m2
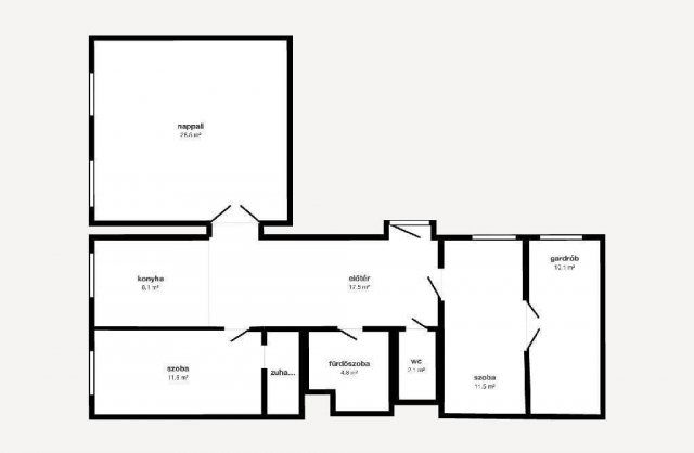
3 szoba
94 m2
1. emelet
építés éve:1920

Részletes adatok

Fűtés: Távfűtés
Energetikai besorolás: Nem adta meg a hirdető

Az OTP Bank lakáshitel ajánlataFizetett hirdetés

+36 70 907
Klubert Gergő
OTP Ingatlanpont Miskolc Szemere

Érdekel az OTP Bank kedvezményes lakáshitel ajánlata? *

* A kérdésre „Igen” válasz bejelölése esetén, az „Üzenet küldése” gombra kattintva kijelentem, hogy az OTP Bank Nyrt. Adatkezelési tájékoztatójának tartalmát megismertem és tudomásul vettem.

Eladó téglalakás leírása

Exkluzív, felújított nagypolgári lakás Miskolc belvárosának szívében. Családoknak és befektetőknek egyaránt tökéletes választás!

Eladó Miskolc belvárosának egyik legkedveltebb részén egy stílusos, 94 nm-es nagypolgári lakás, amely tágas tereivel és elegáns hangulatával azonnal magával ragadja az embert.
Az ingatlan egy rendezett társasház 1. emeletén található, és egy éve teljes körű felújításon esett át, így új tulajdonosát hibátlan műszaki és esztétikai állapotban várja.

A lakásban 3 hálószoba, világos nappali, egyedi konyha étkezővel, két fürdőszoba, gardróbszoba és erkély kapott helyet.
A fűtést modern, zárt égésterű gázkazán, a kényelmet pedig 3 klímaberendezés biztosítja. A beépített bútorok a vételár részét képezik.

Elhelyezkedése kivételes: a belváros nyugodt, mégis központi részén található, pár perc sétára minden fontos szolgáltatástól, üzlettől, iskolától és kávézótól. A történelmi környezet és a modern városi életstílus itt valódi harmóniában élnek együtt.

Ez a lakás kiváló választás családok számára, akik szeretnének belvárosi, mégis csendes otthonban élni, de befektetőknek is ideális, hiszen prémium elhelyezkedésének és állapotának köszönhetően azonnal kiadható, értéktartó ingatlan.

Amennyiben egy különleges, minőségi belvárosi otthont keres, ne hagyja ki ezt a lehetőséget!
Elhelyezkedéséből adódóan iskola, óvoda, posta, bolt, templom, és egyéb szolgáltatók 5-10 percen belül elérhetők. Banki hátterünknek köszönhetően 3%-os Otthon Start hitel, CSOK, Falusi CSOK, Babaváró hitel ügyintézésben is tudunk segíteni ügyfeleinknek. Érdeklődés esetén kérem hivatkozzon az M315785-ös referenciaszámra.

Hirdetés feltöltve: 2025. 12. 03. Utoljára módosítva: 2026. 01. 13.

3 szobás téglalakások ára Miskolcon

Ebből az összehasonlításból megtudhatod, hogyan viszonyul a lakás ára a környékbeli téglalakások átlagos árához. Ez nem azt jelenti, hogy ennyivel olcsóbb vagy drágább, mint amennyit a lakás ér, hanem hogy ennyivel tér el a környékbeli átlagtól.

Ennek a m² ára
Miskolc m² ár
797 e Ft
760 e Ft -5%
Ennek az ára
Miskolc átlagár
74.9 M Ft m Ft
58.3 m Ft -28%

Az ingatlan elhelyezkedése

Cím: Miskolc, 1. emelet

Eladó téglalakások a környékről

Eladó téglalakás
Eladó téglalakás

Putnok

13.6 M Ft
3 szoba
123 m2
Eladó téglalakás
Eladó téglalakás

Miskolc

59.9 M Ft
2 + 3 szoba
97 m2
Eladó téglalakás
Eladó téglalakás

Miskolc

51.9 M Ft
3 szoba
82 m2
Eladó téglalakás
Eladó téglalakás

Miskolc

65.34 M Ft
3 szoba
60 m2
Eladó téglalakás
Eladó téglalakás

Miskolc

9.99 M Ft
2 szoba
59 m2
Eladó téglalakás
Eladó téglalakás

Sátoraljaújhely

17.9 M Ft
2 szoba
65 m2
Eladó téglalakás
Eladó téglalakás

Miskolc

49.9 M Ft
3 szoba
122 m2
Eladó téglalakás
Eladó téglalakás

Miskolc

65.34 M Ft
3 szoba
60 m2
Eladó téglalakás
Eladó téglalakás

Miskolc

60.396 M Ft
2 szoba
63 m2
Eladó téglalakás
Eladó téglalakás

Miskolc

59.9 M Ft
2 + 3 szoba
97 m2
Eladó téglalakás
Eladó téglalakás

Miskolc, Új Diósgyőr, Torontáli utca

19.99 M Ft
2 szoba
49 m2
Eladó téglalakás
Eladó téglalakás

Ózd

10.4 M Ft
2 szoba
48 m2
Eladó téglalakás
Eladó téglalakás

Miskolc

163.35 M Ft
4 szoba
110 m2
Eladó téglalakás
Eladó téglalakás

Miskolc

9.99 M Ft
2 szoba
59 m2
Eladó téglalakás
Eladó téglalakás

Miskolc

65.34 M Ft
1 + 1 szoba
40 m2
Eladó téglalakás
Eladó téglalakás

Miskolc

39.9 M Ft
1 + 2 szoba
56 m2
Eladó téglalakás
Eladó téglalakás

Miskolc

34.9 M Ft
1 + 1 szoba
49 m2
Eladó téglalakás
Eladó téglalakás

Miskolc

54.45 M Ft
2 szoba
51 m2
Eladó téglalakás
Eladó téglalakás

Sátoraljaújhely

17 M Ft
2 szoba
52 m2
Eladó téglalakás
Eladó téglalakás

Miskolc

65.34 M Ft
3 szoba
60 m2
Eladó téglalakás
Eladó téglalakás

Miskolc

68.99 M Ft
3 szoba
76 m2
Eladó téglalakás
Eladó téglalakás

Miskolc

25.4 M Ft
2 szoba
51 m2
Eladó téglalakás
Eladó téglalakás

Sárospatak

13.9 M Ft
3 szoba
89 m2
Eladó téglalakás
Eladó téglalakás

Miskolc

69.7 M Ft
3 szoba
60 m2

Falusi CSOK ingatlanok

Eladó családi ház
Eladó családi ház

Somogyhárságy

111.65 M Ft
4 szoba
330 m2
Eladó családi ház
Eladó családi ház

Tarnaszentmária

22.5 M Ft
3 szoba
100 m2
Eladó családi ház
Eladó családi ház

Szabadbattyán

163.99 M Ft
5 szoba
255 m2
Eladó családi ház
Eladó családi ház

Ádánd

69.9 M Ft
6 szoba
251 m2
Eladó családi ház
Eladó családi ház

Mezőfalva

39 M Ft
3 szoba
77 m2
Eladó családi ház
Eladó családi ház

Jakabszállás

69.99 M Ft
1 + 4 szoba
91 m2
Eladó családi ház
Eladó családi ház

Vásárosdombó

14.99 M Ft
2 szoba
69 m2
Eladó családi ház
Eladó családi ház

Mikepércs

72.7 M Ft
2 + 1 szoba
68 m2