Stay Family Park

Eladó családi ház
Gesztely

Figyelem!

Ez az ingatlan a 2019.07.01-től induló falusi CSOK által támogatott településen található

+ 6 kép 1/9
21 900 000 Ft21.9 M Ft 243 333 Ft/m2
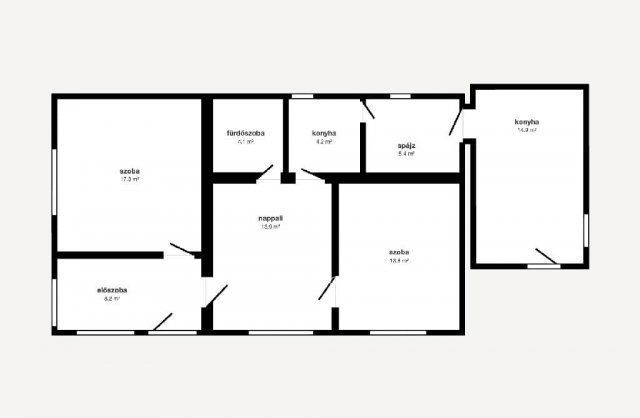
3 szoba
90 m2
építés éve:1966

Részletes adatok

Állapot: Felújítandó
Telekméret: 960 m2
Fűtés: Gázkazán
Energetikai besorolás: Nem adta meg a hirdető

Az OTP Bank lakáshitel ajánlataFizetett hirdetés

+36 20 449
Nagy István György
referens

Érdekel az OTP Bank kedvezményes lakáshitel ajánlata? *

* A kérdésre „Igen” válasz bejelölése esetén, az „Üzenet küldése” gombra kattintva kijelentem, hogy az OTP Bank Nyrt. Adatkezelési tájékoztatójának tartalmát megismertem és tudomásul vettem.

Eladó családi ház leírása

ELADÓ KÉT SZOBA NAPPALIS CSALÁDI HÁZ GESZTELYBEN! Eladó Miskolctól 17 km-re Gesztelyben egy 90 nm-es, két szoba nappalis családi ház, 960 nm-es telken! A használati meleg víz hőtárolós villanybojler, a fűtés gázcirkó által biztosított! A tágas portán lehetőség van akár zöldség és gyümölcs termesztésre, akár kényelmes pihenőkert kialakítására. Kiváló lehetőség mindazoknak, akik távolabb a város zajától, csendes jó levegőjű helyen és kedvező áron szeretnének otthonra találni! Várom hívását hétvégén is!

OTP Banki hátterünknek köszönhetően finanszírozási igényekben (pl. Otthon Start Hitelprogram, Babaváró, Falusi CSOK, CSOK Plusz, Lakáshitel, Személyi kölcsön stb.), illetve biztosítások tekintetében is díjmentesen, soron kívüli ügyintézéssel segítem ügyfeleim! Referenciaszám: M316222

Virtuális séta:

Hirdetés feltöltve: 2025. 11. 07. Utoljára módosítva: 2025. 12. 12.

Az ingatlan elhelyezkedése

Cím: Gesztely

Eladó ingatlanok a környékről

Eladó üzlethelyiség
Eladó üzlethelyiség

Edelény

26.5 M Ft
6 szoba
164 m2
Eladó családi ház
Eladó családi ház

Ózd

25.99 M Ft
4 szoba
198 m2
Eladó családi ház
Eladó családi ház

Miskolc

112 M Ft
5 szoba
217 m2
Eladó családi ház
Eladó családi ház

Szikszó

89.9 M Ft
3 szoba
100 m2
Eladó családi ház
Eladó családi ház

Miskolc, Vargahegy, Margaréta utca

14.5 M Ft
1 szoba
42 m2
Eladó családi ház
Eladó családi ház

Gesztely

9.9 M Ft
2 szoba
75 m2
Eladó családi ház
Eladó családi ház

Tarcal

19.9 M Ft
3 szoba
110 m2
Eladó családi ház
Eladó családi ház

Gönc

26 M Ft
3 szoba
130 m2
Eladó családi ház
Eladó családi ház

Taktaharkány, Magtár utca

9.9 M Ft
3 szoba
100 m2
Eladó téglalakás
Eladó téglalakás

Múcsony

23 M Ft
1 + 1 szoba
41 m2
Eladó családi ház
Eladó családi ház

Mezőcsát

22 M Ft
3 szoba
69 m2
Eladó családi ház
Eladó családi ház

Rudabánya

19.9 M Ft
5 szoba
140 m2
Eladó panellakás
Eladó panellakás

Miskolc, Belváros, Arany János utca

39.9 M Ft
2 szoba
55 m2
Eladó családi ház
Eladó családi ház

Szikszó

58 M Ft
5 szoba
180 m2
Eladó téglalakás
Eladó téglalakás

Múcsony

25 M Ft
2 szoba
57 m2
Eladó családi ház
Eladó családi ház

Gesztely

24.9 M Ft
3 szoba
113 m2
Eladó családi ház
Eladó családi ház

Gesztely

15.9 M Ft
3 + 1 szoba
90 m2
Eladó családi ház
Eladó családi ház

Miskolc

25.9 M Ft
4 szoba
148 m2
Eladó családi ház
Eladó családi ház

Kurityán

15.8 M Ft
3 szoba
68 m2
Eladó családi ház
Eladó családi ház

Ózd

15 M Ft
7 szoba
225 m2
Eladó mezogazdasagi ingatlan
Eladó mezogazdasagi ingatlan

Ózd

3.2 M Ft
38340 m2
Eladó családi ház
Eladó családi ház

Gesztely

20 M Ft
3 szoba
75 m2
Eladó családi ház
Eladó családi ház

Sajószentpéter

34.99 M Ft
3 szoba
96 m2
Eladó családi ház
Eladó családi ház

Putnok

11 M Ft
3 szoba
79 m2

Falusi CSOK ingatlanok

Eladó családi ház
Eladó családi ház

Bag

110 M Ft
5 szoba
320 m2
Eladó családi ház
Eladó családi ház

Tápiógyörgye

14.9 M Ft
2 szoba
67 m2
Eladó családi ház
Eladó családi ház

Kenyeri

21.8 M Ft
2 szoba
75 m2
Eladó családi ház
Eladó családi ház

Dunavecse

25 M Ft
3 szoba
120 m2
Eladó családi ház
Eladó családi ház

Úrkút

94.9 M Ft
4 szoba
186 m2
Eladó családi ház
Eladó családi ház

Tésenfa, Kossuth utca 23/a

5.55 M Ft
1 + 1 szoba
109 m2
Eladó családi ház
Eladó családi ház

Enese

82.9 M Ft
4 szoba
90 m2
Eladó családi ház
Eladó családi ház

Jakabszállás

69.99 M Ft
1 + 4 szoba
91 m2

Falusi CSOK ingatlanok

Eladó családi ház
Eladó családi ház

Tápióbicske

38 M Ft
3 szoba
50 m2
Eladó családi ház
Eladó családi ház

Kétegyháza

15.9 M Ft
3 szoba
95 m2
Eladó családi ház
Eladó családi ház

Tótújfalu

6.9 M Ft
4 szoba
120 m2
Eladó családi ház
Eladó családi ház

Úrkút

94.9 M Ft
4 szoba
186 m2
Eladó családi ház
Eladó családi ház

Szil

25 M Ft
2 szoba
90 m2
Eladó családi ház
Eladó családi ház

Kemeneshőgyész

8 M Ft
2 szoba
60 m2
Eladó családi ház
Eladó családi ház

Mezőfalva

39 M Ft
3 szoba
77 m2
Eladó családi ház
Eladó családi ház

Örkény

52.606 M Ft
3 szoba
109 m2