Aerogate Homes

Eladó családi ház
Gárdony

+ 17 kép 1/20
99 900 000 Ft99.9 M Ft 580 814 Ft/m2
3 + 3 szoba
172 m²
építés éve:1988

Részletes adatok

Állapot: Átlagos
Telekméret: 1169 m2
Fűtés: Gázkazán
Energetikai besorolás: Nem adta meg a hirdető

Az OTP Bank lakáshitel ajánlataFizetett hirdetés

+36 70 324
Máté Katalin
Szigetszentmiklós OTP Ip

Érdekel az OTP Bank kedvezményes lakáshitel ajánlata? *

* A kérdésre „Igen” válasz bejelölése esetén, az „Üzenet küldése” gombra kattintva kijelentem, hogy az OTP Bank Nyrt. Adatkezelési tájékoztatójának tartalmát megismertem és tudomásul vettem.

Eladó családi ház leírása

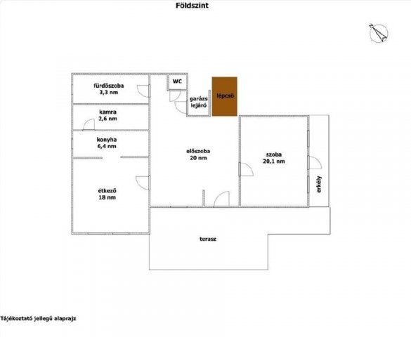
Fejér megye, Gárdony, Dinnyés 172 nm-es kétgenerációs családi ház eladó. A tehermentes, tégla falazatú ingatlan egy 1169 nm-es összközműves telken helyezkedik el, közel a vasútállomáshoz. A duplakomfortos családi házban 2 nappali, 1 szoba, 3 félszoba, 2 konyha, tágas étkező, kamra,3 fürdőszoba, 2 külön WC található, valamint tartozik hozzá terasz, 2 erkély, garázs, pince és kazánház. A fűtésről gázkazán és vegyes tüzelésű kazán gondoskodik, radiátoros hő leadással. Az ingatlan kétgenerációs, rezsije kedvező. A vasútállomás, buszmegálló, bolt séta távolságra találhatóak. Az ingatlanban rengeteg lehetőség rejlik, több szoba kialakítható, egy hangulatos családi ház a Velencei tó közelében. Teljes körű ügyintézésben segítjük ügyfeleinket díjtalanul: CSOK igénylése, kedvezményes hitel mobil bankári szolgáltatással, adásvétel teljes lebonyolításával.

Hirdetés feltöltve: 2026. 04. 09. Utoljára módosítva: 2026. 05. 03.

Az ingatlan elhelyezkedése

Cím: Gárdony

Eladó családi házak a környékről

Szabadbattyán
Eladó családi ház

Szabadbattyán

357.518 M Ft
9 + 2 szoba
1053 m²
Gárdony
Eladó családi ház

Gárdony

154.9 M Ft
4 szoba
207 m²
Gárdony
Eladó családi ház

Gárdony

89.9 M Ft
4 + 1 szoba
102 m²
Gárdony
Eladó családi ház

Gárdony

148.9 M Ft
6 szoba
182 m²
Mány
Eladó családi ház

Mány

18.5 M Ft
3 szoba
70 m²
Gárdony
Eladó családi ház

Gárdony

163 M Ft
5 + 4 szoba
200 m²
Gárdony, Gárdonyi Géza utca
Eladó családi ház

Gárdony

59 M Ft
3 szoba
100 m²
Gárdony
Eladó családi ház

Gárdony

154.9 M Ft
4 szoba
173 m²
Székesfehérvár
Eladó családi ház

Székesfehérvár

69.9 M Ft
3 szoba
95 m²
Adony
Eladó családi ház

Adony

8 M Ft
2 szoba
30 m²
Bakonycsernye
Eladó családi ház

Bakonycsernye

39 M Ft
3 szoba
350 m²
Gárdony, Álmos Vezér utca
Eladó családi ház

Gárdony

95.6 M Ft
3 + 2 szoba
111 m²
Pusztaszabolcs
Eladó családi ház

Pusztaszabolcs

143.9 M Ft
4 szoba
149 m²
Bicske, Baboshegy
Eladó családi ház

Bicske

26.9 M Ft
1 szoba
30 m²
Lepsény, Róka sétány
Eladó családi ház

Lepsény

64.9 M Ft
5 + 1 szoba
203 m²
Velence, Liget utca
Eladó családi ház

Velence

149 M Ft
2 + 2 szoba
150 m²
Gárdony
Eladó családi ház

Gárdony

255 M Ft
10 szoba
280 m²
Gárdony
Eladó családi ház

Gárdony

73 M Ft
7 szoba
120 m²
Gárdony
Eladó családi ház

Gárdony

115 M Ft
3 + 1 szoba
127 m²
Mór
Eladó családi ház

Mór

110 M Ft
12 szoba
340 m²
Csákvár, Kossuth utca
Eladó családi ház

Csákvár

76 M Ft
1 szoba
181 m²
Gárdony, Gárdonyi Géza utca
Eladó családi ház

Gárdony

59 M Ft
3 szoba
100 m²
Gárdony
Eladó családi ház

Gárdony

150 M Ft
5 + 5 szoba
300 m²
Velence, Liget utca
Eladó családi ház

Velence

99.8 M Ft
2 + 1 szoba
134 m²

Falusi CSOK ingatlanok

Hegyeshalom, Margaréta utca 12
Eladó téglalakás

Hegyeshalom

46.91 M Ft
2 szoba
43 m²
Balatonkenese
Eladó családi ház

Balatonkenese

170 M Ft
4 szoba
140 m²
Rakamaz
Eladó családi ház

Rakamaz

86.9 M Ft
5 szoba
280 m²
Villány
Eladó családi ház

Villány

65 M Ft
3 szoba
95 m²
Nagyberény
Eladó családi ház

Nagyberény

27.9 M Ft
6 szoba
130 m²
Verseg
Eladó családi ház

Verseg

41.5 M Ft
2 szoba
55 m²
Gesztely
Eladó családi ház

Gesztely

34.9 M Ft
3 szoba
95 m²
Bácsbokod
Eladó családi ház

Bácsbokod

55 M Ft
6 szoba
250 m²