Astora Olive Club House

Eladó családi ház
Gárdony

+ 17 kép 1/20
99 900 000 Ft99.9 M Ft 580 814 Ft/m2
3 + 3 szoba
172 m²
építés éve:1988

Részletes adatok

Állapot: Átlagos
Telekméret: 1169 m2
Fűtés: Gázkazán
Energetikai besorolás: Nem adta meg a hirdető

Az OTP Bank lakáshitel ajánlataFizetett hirdetés

+36 30 989
Keszthelyi László
Szigetszentmiklós OTP Ip

Érdekel az OTP Bank kedvezményes lakáshitel ajánlata? *

* A kérdésre „Igen” válasz bejelölése esetén, az „Üzenet küldése” gombra kattintva kijelentem, hogy az OTP Bank Nyrt. Adatkezelési tájékoztatójának tartalmát megismertem és tudomásul vettem.

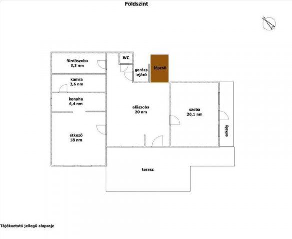
Eladó családi ház leírása

Fejér megye, Gárdony, Dinnyés 172 nm-es kétgenerációs családi ház eladó.

A tehermentes, tégla falazatú ingatlan egy 1169 nm-es összközműves telken helyezkedik el, közel a vasútállomáshoz. A duplakomfortos családi házban 2 nappali, 1 szoba, 3 félszoba, 2 konyha, tágas étkező, kamra,3 fürdőszoba, 2 külön WC található, valamint tartozik hozzá terasz, 2 erkély, garázs, pince és kazánház.

A fűtésről gázkazán és vegyes tüzelésű kazán gondoskodik, radiátoros hő leadással. Az ingatlan kétgenerációs, rezsije kedvező. A vasútállomás, buszmegálló, bolt séta távolságra találhatóak.

Az ingatlanban rengeteg lehetőség rejlik, több szoba kialakítható, egy hangulatos családi ház a Velencei tó közelében.

Hirdetés feltöltve: 2026. 02. 26. Utoljára módosítva: 2026. 04. 01.

Az ingatlan elhelyezkedése

Cím: Gárdony

Eladó családi házak a környékről

Gárdony, Géza fejedelem útja
Eladó családi ház

Gárdony

49.9 M Ft
2 szoba
47 m²
Gárdony
Eladó családi ház

Gárdony

115 M Ft
4 szoba
116 m²
Gárdony
Eladó családi ház

Gárdony

154.9 M Ft
4 szoba
173 m²
Etyek
Eladó családi ház

Etyek

160 M Ft
6 szoba
228 m²
Gárdony
Eladó családi ház

Gárdony

148.9 M Ft
6 szoba
182 m²
Csákvár, Kossuth utca
Eladó családi ház

Csákvár

76 M Ft
1 szoba
181 m²
Tabajd
Eladó családi ház

Tabajd

22 M Ft
3 szoba
75 m²
Gárdony
Eladó családi ház

Gárdony

98 M Ft
4 szoba
104 m²
Felcsút, Rákóczi Ferenc utca
Eladó családi ház

Felcsút

32 M Ft
2 + 1 szoba
55 m²
Bakonycsernye
Eladó családi ház

Bakonycsernye

39 M Ft
3 szoba
350 m²
Gárdony, Gárdonyi Géza utca
Eladó családi ház

Gárdony

59 M Ft
3 szoba
100 m²
Mány
Eladó családi ház

Mány

18.5 M Ft
3 szoba
70 m²
Gárdony
Eladó családi ház

Gárdony

154.9 M Ft
4 szoba
207 m²
Gárdony
Eladó családi ház

Gárdony

154.9 M Ft
5 + 3 szoba
200 m²
Iváncsa, Táncsics Mihály utca
Eladó családi ház

Iváncsa

86 M Ft
4 szoba
120 m²
Gárdony
Eladó családi ház

Gárdony

39.9 M Ft
2 + 1 szoba
70 m²
Gárdony
Eladó családi ház

Gárdony

163 M Ft
5 + 4 szoba
200 m²
Velence, Liget utca
Eladó családi ház

Velence

99.8 M Ft
2 + 1 szoba
134 m²
Székesfehérvár
Eladó családi ház

Székesfehérvár

59 M Ft
3 szoba
100 m²
Kulcs
Eladó családi ház

Kulcs

180 M Ft
8 szoba
167 m²
Gárdony
Eladó családi ház

Gárdony

39.9 M Ft
2 szoba
49 m²
Gárdony
Eladó családi ház

Gárdony

115 M Ft
3 + 1 szoba
127 m²
Lepsény, Róka sétány
Eladó családi ház

Lepsény

64.9 M Ft
5 + 1 szoba
203 m²
Gárdony
Eladó családi ház

Gárdony

59.99 M Ft
4 szoba
85 m²

Falusi CSOK ingatlanok

Badacsonytördemic
Eladó családi ház

Badacsonytördemic

86 M Ft
4 szoba
110 m²
Kondoros
Eladó családi ház

Kondoros

25 M Ft
4 szoba
150 m²
Zalaszentiván
Eladó ikerház

Zalaszentiván

54.99 M Ft
5 szoba
160 m²
Pénzesgyőr
Eladó családi ház

Pénzesgyőr

83.9 M Ft
5 + 1 szoba
135 m²
Balatonőszöd
Eladó téglalakás

Balatonőszöd

167 M Ft
4 szoba
81 m²
Maroslele
Eladó családi ház

Maroslele

28.9 M Ft
2 + 1 szoba
65 m²
Balatonkeresztúr
Eladó családi ház

Balatonkeresztúr

125 M Ft
7 szoba
170 m²
Nagytevel
Eladó családi ház

Nagytevel

34.9 M Ft
3 szoba
110 m²