Aerogate Homes

Eladó családi ház
Gárdony

+ 17 kép 1/20
99 900 000 Ft99.9 M Ft 580 814 Ft/m2
3 + 3 szoba
172 m²
építés éve:1988

Részletes adatok

Állapot: Átlagos
Telekméret: 1169 m2
Fűtés: Gázkazán
Komfort: Duplakomfortos
Energetikai besorolás: Nem adta meg a hirdető

Az OTP Bank lakáshitel ajánlataFizetett hirdetés

+36 70 681
Pap Éva Zsuzsanna
OTPip - Érd Bajcsy-Zsilinszky út 160 - OTP Ingatlanpont Iroda

Érdekel az OTP Bank kedvezményes lakáshitel ajánlata? *

* A kérdésre „Igen” válasz bejelölése esetén, az „Üzenet küldése” gombra kattintva kijelentem, hogy az OTP Bank Nyrt. Adatkezelési tájékoztatójának tartalmát megismertem és tudomásul vettem.

Eladó családi ház leírása

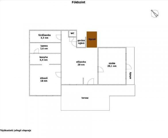
Fejér megye, Gárdony, Dinnyés 172 nm-es kétgenerációs családi ház eladó. A tehermentes, tégla falazatú ingatlan egy 1169 nm-es összközműves telken helyezkedik el, közel a vasútállomáshoz. A duplakomfortos családi házban 2 nappali, 1 szoba, 3 félszoba, 2 konyha, tágas étkező, kamra,3 fürdőszoba, 2 külön WC található, valamint tartozik hozzá terasz, 2 erkély, garázs, pince és kazánház. A fűtésről gázkazán és vegyes tüzelésű kazán gondoskodik, radiátoros hő leadással. Az ingatlan kétgenerációs, rezsije kedvező. A vasútállomás, buszmegálló, bolt séta távolságra találhatóak. Az ingatlanban rengeteg lehetőség rejlik, több szoba kialakítható, egy hangulatos családi ház a Velencei tó közelében. Teljes körű ügyintézésben segítjük ügyfeleinket díjtalanul: CSOK igénylése, kedvezményes hitel mobil bankári szolgáltatással, adásvétel teljes lebonyolításával.

Az energetikai tanúsítvány készítése folyamatban van, amint rendelkezésre áll, úgy azzal a hirdetés frissítésre kerül.

Hirdetés feltöltve: 2026. 02. 21. Utoljára módosítva: 2026. 05. 13.

Az ingatlan elhelyezkedése

Cím: Gárdony

Eladó családi házak a környékről

Gárdony
Eladó családi ház

Gárdony

255 M Ft
10 szoba
280 m²
Gárdony
Eladó családi ház

Gárdony

150 M Ft
5 + 5 szoba
300 m²
Gárdony
Eladó családi ház

Gárdony

89.5 M Ft
2 + 2 szoba
100 m²
Gárdony
Eladó családi ház

Gárdony

59.99 M Ft
4 szoba
85 m²
Székesfehérvár
Eladó családi ház

Székesfehérvár

69.9 M Ft
3 szoba
95 m²
Vértesacsa
Eladó családi ház

Vértesacsa

86 M Ft
3 + 1 szoba
123 m²
Gárdony
Eladó családi ház

Gárdony

154.9 M Ft
4 szoba
173 m²
Gárdony
Eladó családi ház

Gárdony

115 M Ft
3 + 1 szoba
127 m²
Lepsény, Róka sétány
Eladó családi ház

Lepsény

64.9 M Ft
5 + 1 szoba
203 m²
Gárdony, Álmos Vezér utca
Eladó családi ház

Gárdony

95.6 M Ft
3 + 2 szoba
111 m²
Gárdony, Géza fejedelem útja
Eladó családi ház

Gárdony

49.9 M Ft
2 szoba
47 m²
Gárdony
Eladó családi ház

Gárdony

39.9 M Ft
2 + 1 szoba
70 m²
Gárdony
Eladó családi ház

Gárdony

148.9 M Ft
6 szoba
182 m²
Mány
Eladó családi ház

Mány

18.5 M Ft
3 szoba
70 m²
Velence, Liget utca
Eladó családi ház

Velence

149 M Ft
2 + 2 szoba
150 m²
Gárdony
Eladó családi ház

Gárdony

145 M Ft
4 szoba
150 m²
Etyek
Eladó családi ház

Etyek

160 M Ft
6 szoba
228 m²
Gárdony
Eladó családi ház

Gárdony

98 M Ft
4 szoba
104 m²
Kulcs
Eladó családi ház

Kulcs

180 M Ft
8 szoba
167 m²
Gánt, Gánti út
Eladó családi ház

Gánt

29.9 M Ft
2 + 1 szoba
40 m²
Gárdony
Eladó családi ház

Gárdony

163 M Ft
5 + 4 szoba
200 m²
Gárdony, Gárdonyi Géza utca
Eladó családi ház

Gárdony

59 M Ft
3 szoba
100 m²
Szabadbattyán
Eladó családi ház

Szabadbattyán

357.518 M Ft
9 + 2 szoba
1053 m²
Székesfehérvár
Eladó családi ház

Székesfehérvár

59 M Ft
3 szoba
100 m²

Falusi CSOK ingatlanok

Hegyeshalom, Margaréta utca 12
Eladó téglalakás

Hegyeshalom

50.09 M Ft
2 szoba
43 m²
Balatonszemes
Eladó családi ház

Balatonszemes

95 M Ft
4 szoba
82 m²
Márianosztra
Eladó családi ház

Márianosztra

38 M Ft
4 szoba
75 m²
Vértesboglár, Dózsa utca
Eladó családi ház

Vértesboglár

99 M Ft
4 szoba
110 m²
Maráza
Eladó családi ház

Maráza

29.9 M Ft
3 szoba
96 m²
Rakamaz
Eladó családi ház

Rakamaz

86.9 M Ft
5 szoba
280 m²
Nagyhegyes
Eladó családi ház

Nagyhegyes

92900 M Ft
3 + 1 szoba
120 m²
Beremend, 7827 Beremend, Petőfi Sándor utca 10
Eladó családi ház

Beremend

11.95 M Ft
1 + 1 szoba
124 m²