Eladó családi ház
Gádoros

Figyelem!

Ez az ingatlan a 2019.07.01-től induló falusi CSOK által támogatott településen található

+ 17 kép 1/20
16 000 000 Ft16 M Ft 123 077 Ft/m2
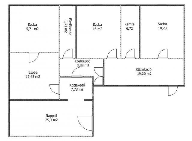
4 szoba
130 m2
építés éve:1950

Részletes adatok

Állapot: Felújítandó
Telekméret: 1457 m2
Fűtés: Gázkonvektor
Energetikai besorolás: Nem adta meg a hirdető

Az OTP Bank lakáshitel ajánlataFizetett hirdetés

+36 30 375
Gyenes Martin
Csongrád OTP Ingatlanpont Iroda

Érdekel az OTP Bank kedvezményes lakáshitel ajánlata? *

* A kérdésre „Igen” válasz bejelölése esetén, az „Üzenet küldése” gombra kattintva kijelentem, hogy az OTP Bank Nyrt. Adatkezelési tájékoztatójának tartalmát megismertem és tudomásul vettem.

Eladó családi ház leírása

Eladásra kínálom Békés vármegyében Gádoroson, ezt a 1457 m2 es telken lévő 130 m2 -es házat. Az ingatlan korszerűsítésre szorul, így saját igényei szerint alakíthatja ki leendő otthonát! Fűtése gázkonvektoros, falazata vegyes. A házban található 4 szoba és egy nappali, konyha és fürdőszoba.
Közelben található bolt, étterem és buszmegálló is. Ideális nagy családosoknak, a vidéki nyugalom kedvelőinek!
Legyen Ön is megbízónk, és adja el rajtunk keresztül ingatlanát! Kedvező hitel ajánlatokkal (BABAVÁRÓ hitel, piaci hitel, és szabadfelhasználású hitel) várjuk jelentkezését. Számos konstrukció közül választhatnak. Irodáink Szentes, Petőfi utca 12. (a buszmegálló felől) és Csongrád, Fő utca 54. szám alatt várja a személyes érdeklődőket. ***VÁLASSZUK KI EGYÜTT AZ ÖNNEK LEGMEGFELELŐBB AJÁNLATOT BANKI SORBAN ÁLLÁS NÉLKÜL! ***

Referencia szám: M298309

Hirdetés feltöltve: 2025. 10. 05. Utoljára módosítva: 2025. 10. 05.

Az ingatlan elhelyezkedése

Cím: Gádoros

Eladó ingatlanok a környékről

Eladó családi ház
Eladó családi ház

Békéscsaba

24.99 M Ft
4 szoba
196 m2
Eladó családi ház
Eladó családi ház

Békéscsaba

68.4 M Ft
4 szoba
90 m2
Eladó családi ház
Eladó családi ház

Mezőberény

11.9 M Ft
3 szoba
90 m2
Eladó családi ház
Eladó családi ház

Szarvas

7 M Ft
2 szoba
57 m2
Eladó családi ház
Eladó családi ház

Mezőkovácsháza

52.9 M Ft
7 szoba
400 m2
Eladó családi ház
Eladó családi ház

Gyula

38 M Ft
3 szoba
69 m2
Eladó nyaraló
Eladó nyaraló

Gyomaendrőd, Selyem út

17.9 M Ft
3 szoba
85 m2
Eladó családi ház
Eladó családi ház

Kamut

9.98 M Ft
3 szoba
75 m2
Eladó családi ház
Eladó családi ház

Gádoros

16.3 M Ft
3 szoba
70 m2
Eladó ipari ingatlan
Eladó ipari ingatlan

Békéscsaba, Belváros, Szabadság tér

250 M Ft
1016 m²
800 m2
Eladó családi ház
Eladó családi ház

Orosháza

79.9 M Ft
4 szoba
230 m2
Eladó téglalakás
Eladó téglalakás

Gyula, Lachner

24.75 M Ft
1 szoba
38 m2
Eladó családi ház
Eladó családi ház

Mezőkovácsháza

17.9 M Ft
3 szoba
95 m2
Eladó családi ház
Eladó családi ház

Kunágota

9.9 M Ft
2 + 1 szoba
70 m2
Eladó családi ház
Eladó családi ház

Békéscsaba

82.15 M Ft
4 szoba
106 m2
Eladó családi ház
Eladó családi ház

Orosháza

16.2 M Ft
3 szoba
85 m2
Eladó családi ház
Eladó családi ház

Kunágota

13.9 M Ft
2 + 1 szoba
63 m2
Eladó családi ház
Eladó családi ház

Gyula

26.99 M Ft
2 szoba
93 m2
Eladó családi ház
Eladó családi ház

Szarvas

4.9 M Ft
1 + 1 szoba
40 m2
Eladó családi ház
Eladó családi ház

Gyula, Vár utca

85.9 M Ft
4 szoba
180 m2
Eladó családi ház
Eladó családi ház

Doboz

7.5 M Ft
4 szoba
100 m2
Eladó családi ház
Eladó családi ház

Gádoros

11.3 M Ft
2 szoba
100 m2
Eladó családi ház
Eladó családi ház

Gádoros

16 M Ft
4 szoba
130 m2
Eladó családi ház
Eladó családi ház

Gyomaendrőd, Selyem út

17.9 M Ft
3 szoba
85 m2

Falusi CSOK ingatlanok

Eladó családi ház
Eladó családi ház

Jákfa, Tölgy

31.99 M Ft
2 szoba
85 m2
Eladó családi ház
Eladó családi ház

Kaszaper

14.5 M Ft
3 szoba
63 m2
Eladó sorház
Eladó sorház

Szob

16 M Ft
2 szoba
45 m2
Eladó családi ház
Eladó családi ház

Magyarpolány

53 M Ft
2 szoba
71 m2
Eladó családi ház
Eladó családi ház

Iváncsa

79.9 M Ft
4 szoba
87 m2
Eladó családi ház
Eladó családi ház

Úrkút, Temető utca

99 M Ft
7 szoba
540 m2
Eladó családi ház
Eladó családi ház

Hegyeshalom

85 M Ft
4 + 1 szoba
123 m2
Eladó családi ház
Eladó családi ház

Hajós

63 M Ft
3 szoba
210 m2

Falusi CSOK ingatlanok

Eladó családi ház
Eladó családi ház

Homokbödöge

49.9 M Ft
4 + 1 szoba
167 m2
Eladó téglalakás
Eladó téglalakás

Hegyeshalom

35 M Ft
43 m2
Eladó családi ház
Eladó családi ház

Drágszél, Petőfi utca 12

5.58 M Ft
1 + 1 szoba
106 m2
Eladó családi ház
Eladó családi ház

Lázi

18.9 M Ft
2 szoba
74 m2
Eladó családi ház
Eladó családi ház

Somogyszob

9.9 M Ft
2 szoba
60 m2
Eladó családi ház
Eladó családi ház

Makád

140 M Ft
4 szoba
79 m2
Eladó családi ház
Eladó családi ház

Hajós

63 M Ft
3 szoba
210 m2
Eladó családi ház
Eladó családi ház

Mályi

89.9 M Ft
4 szoba
100 m2