River Life

Eladó családi ház
Érd

+ 17 kép 1/20
150 000 000 Ft150 M Ft 837 989 Ft/m2
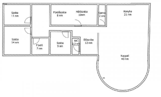
5 szoba
179 m²
építés éve:2004

Részletes adatok

Telekméret: 836 m2
Fűtés: Gázkazán
Energetikai besorolás: Nem adta meg a hirdető

Az OTP Bank lakáshitel ajánlataFizetett hirdetés

+36 20 371
Antal Enikő
referens

Érdekel az OTP Bank kedvezményes lakáshitel ajánlata? *

* A kérdésre „Igen” válasz bejelölése esetén, az „Üzenet küldése” gombra kattintva kijelentem, hogy az OTP Bank Nyrt. Adatkezelési tájékoztatójának tartalmát megismertem és tudomásul vettem.

Eladó családi ház leírása

Különleges otthon Érd Parkváros és Törökbálint határán, panorámás kilátás, medence, privát kert, kivételes adottságokkal!

CSOK+-ra alkalmas!

Eladó egy egyedi hangulatú, kivételes adottságokkal rendelkező, háromszintes, 179 nm-es, szigetelt családi ház, 836 nm-es telken, Érd Parkváros és Törökbálint határán.

A ház összesen 5 szobával rendelkezik, és olyan környezetben helyezkedik el, ahol a természet közelsége és a városi kényelem harmonikusan találkozik.

Az utca frontja Törökbálintra néz, ahol már nincsenek lakóépületek!

így biztosított a nyugalom és a zavartalan panoráma.

Főbb jellemzők:
Háromszintes kialakítás: az utcafronti szinten található a kétállásos garázs, fölötte pedig egy kb. 30 nm-es, napfényes terasz.

A fél szinten mosókonyha, dolgozószoba és külön nappali kapott helyet, ideális vendégeknek, munkához vagy pihenéshez.

Fő lakószint: tágas, fa kupolás nappali, étkező és konyha egy légtérben, mégis jól elkülönülő hálószobákkal.

A természetes fény és a minőségi anyaghasználat különleges atmoszférát teremt.

Két nagy terasz: az egyik a garázs fölött, az utca irányába néz, tökéletes reggeli kávézáshoz vagy naplementéhez.

A másik a hátsó, kertre néző terasz, amely közvetlen kapcsolatban van a kültéri élettel.

Privát kert és medence: a ház mögötti teraszról elérhető a gondozott, intim hangulatú kert, ahol egy épített, lépcsős, 6×3 méteres medence található, ideális helyszín a nyári pihenéshez.

További előnyök: Kiváló elhelyezkedés, közel Törökbálint központjához, Érdhez és az M7-es autópályához.

Csendes környék, természetközeli életérzés.

Stílusos kialakítás, praktikus térszervezés, kiváló minőségű anyagok.

Ez az otthon ideális választás azoknak, akik nem sablonos házat keresnek, hanem egy valóban egyedi, értékálló ingatlant különleges környezetben.

Az OTP Bankcsoport teljes körű ügyintézéssel áll az eladók és a vevők rendelkezésére! A kínálatunkból választott ingatlan finanszírozásához kedvezményes hitel konstrukciókat kínálunk. Az adásvételi szerződés megkötéséhez igény szerint megbízható ügyvédi közreműködést biztosítunk, és segítséget nyújtunk az adásvételhez kapcsolódó ügyek intézésében. További információért vagy megtekintéssel kapcsolatban hívjon a hét bármely napján
Antal Enikő
+36/20-371-2105

Hirdetés feltöltve: 2026. 04. 17. Utoljára módosítva: 2026. 04. 17.

5 szobás családi házak ára Érden

Ebből az összehasonlításból megtudhatod, hogyan viszonyul a lakás ára a környékbeli családi házak átlagos árához. Ez nem azt jelenti, hogy ennyivel olcsóbb vagy drágább, mint amennyit a lakás ér, hanem hogy ennyivel tér el a környékbeli átlagtól.

Ennek a m² ára
Érd m² ár
838 e Ft
933 e Ft 10%
Ennek az ára
Érd átlagár
150 M Ft m Ft
175.9 m Ft 15%

Az ingatlan elhelyezkedése

Cím: Érd

Eladó családi házak a környékről

Érd
Eladó családi ház

Érd

99.9 M Ft
4 szoba
98 m²
Tápiószele
Eladó családi ház

Tápiószele

37.9 M Ft
4 szoba
141 m²
Érd
Eladó családi ház

Érd

160 M Ft
7 szoba
250 m²
Tápiószele
Eladó családi ház

Tápiószele

32.9 M Ft
4 szoba
200 m²
Érd
Eladó családi ház

Érd

129 M Ft
4 szoba
150 m²
Érd
Eladó családi ház

Érd

164.9 M Ft
5 szoba
192 m²
Dunakeszi
Eladó családi ház

Dunakeszi

250 M Ft
4 szoba
180 m²
Tápiógyörgye
Eladó családi ház

Tápiógyörgye

19.9 M Ft
3 szoba
65 m²
Érd, Parkváros, Visegrádi utca
Eladó családi ház

Érd

159.9 M Ft
5 szoba
165 m²
Érd, Érdliget - Kutyavár, Érd-liget
Eladó családi ház

Érd

230 M Ft
7 szoba
280 m²
Érd
Eladó családi ház

Érd

249.99 M Ft
6 szoba
210 m²
Budaörs
Eladó családi ház

Budaörs

400 M Ft
12 szoba
583 m²
Érd
Eladó családi ház

Érd

139.9 M Ft
3 szoba
236 m²
Érd
Eladó családi ház

Érd

110 M Ft
6 szoba
140 m²
Érd
Eladó családi ház

Érd

79.9 M Ft
5 szoba
152 m²
Érd, Érdliget - Kutyavár, 2030.ÉRDLIGET, KÖVIRÓZSA
Eladó családi ház

Érd

649 M Ft
6 szoba
380 m²
Érd
Eladó családi ház

Érd

189.7 M Ft
5 szoba
204 m²
Érd
Eladó családi ház

Érd

244 M Ft
5 szoba
175 m²
Érd, Érdliget - Kutyavár, Liliom utca
Eladó családi ház

Érd

300 M Ft
3 szoba
184 m²
Nagykáta
Eladó családi ház

Nagykáta

130 M Ft
3 szoba
203 m²
Érd
Eladó családi ház

Érd

95 M Ft
5 szoba
226 m²
Zebegény
Eladó családi ház

Zebegény

69.9 M Ft
6 szoba
245 m²
Érd
Eladó családi ház

Érd

55 M Ft
6 szoba
155 m²
Érd
Eladó családi ház

Érd

149 M Ft
1 szoba
180 m²

Falusi CSOK ingatlanok

Sükösd
Eladó családi ház

Sükösd

28 M Ft
2 szoba
90 m²
Sződ
Eladó családi ház

Sződ

116.9 M Ft
4 + 1 szoba
102 m²
Ceglédbercel
Eladó családi ház

Ceglédbercel

79.9 M Ft
5 szoba
140 m²
Zalalövő
Eladó családi ház

Zalalövő

47 M Ft
4 + 1 szoba
117 m²
Seregélyes
Eladó családi ház

Seregélyes

75 M Ft
6 szoba
160 m²
Recsk
Eladó családi ház

Recsk

40 M Ft
3 + 1 szoba
110 m²
Bakonypéterd
Eladó családi ház

Bakonypéterd

44.9 M Ft
3 szoba
92 m²
Szentmártonkáta
Eladó családi ház

Szentmártonkáta

95 M Ft
5 + 1 szoba
152 m²