Eladó családi ház
Érd, földszint
Részletes adatok
Az OTP Bank lakáshitel ajánlataFizetett hirdetés
Induló törlesztőrészlet
101 262 Ft /hóTörlesztőrészlet a 13. hónaptól
129 106 Ft /hóInduló törlesztőrészlet
135 016 Ft /hóTörlesztőrészlet a 13. hónaptól
172 142 Ft /hóA tájékoztatás nem teljes körű és nem minősül ajánlattételnek. Az OTP Évnyerő Lakáshitelei 1 éves türelmi idős kölcsönök, amellyel az első 12 hónapban alacsonyabb a havi törlesztőrészlet. A tőke törlesztését a 13. hónaptól kell megkezdeni.
Eladó családi ház leírása
ÚJ, MINIMÁL STÍLUSÚ CSALÁDI HÁZ!
Érd-Fenyves-Parkvárosban, 578 nm -es elvehetetlen panorámás sarok telken, minőségi anyagokból most épülő 187 nm-es lakótér+ egyállásos garázs, belső 2 szintes + szuterénes, minimál stílusú, új építésű önálló családi ház 139 MFt-ért eladó! (5848)
Az ingatlan infrastruktúra szempontjából kiváló elhelyezkedésű, pár percre az Interspar, új általános iskola, uszoda, tömegközlekedés és szolgáltató egységek megtalálhatóak. Az autópályák M1/M7/M0/M6-os pár perc alatt elérhetők.
Rövid műszaki tartalom:
- 90 cm mély beton sávalap
- talajnedvesség ellen: teknő szigetelés, bitumenes szigetelő lemez
- 30 as Porotherm tégla, 10 cm tégla válaszfalak
- födém: kerámia köpenyes vasbeton áthidalás, koszorúk monolit vasbeton egybe öntve a födémmel
- 15 cm-es homlokzati dryvit rendszerű szigetelés
- tető lapos tető, komoly víz és hő-szigeteléssel ellátott
- antracit műanyag bevonatos horganyzott acéllemez ereszcsatorna és lefolyórendszer
- fűtés: levegő-víz hőszivattyú padló hőleadókkal, meleg víz ellátás HMV tárolóval, törölközőszárítós radiátor
- nyílászárók: 3 rétegű üvegezés, 5 légkamrás, fehér, műanyag hő és hangszigetelt
- beltéri ajtók választhatók a kivitelező által meghatározott értékben
- burkolatok, szaniterek választhatók a kivitelező által meghatározott értékben
- napelem előkészítés
- riasztó, klíma
- elektromos kapu és garázsajtó
- kerítés, kapucsengő
- 1 db kerti csap kiállás
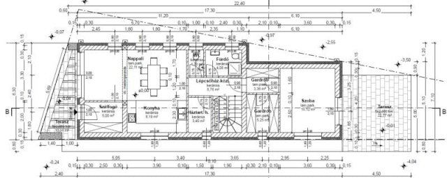
Helyiségfelsorolás: Pinceszint bruttó: 62.20 nm
garázs 25.38 nm, lépcsőház 6.84 nm, fedett terasz 19.35 nm (nettó 51.57 nm)
Földszint: bruttó: 101.67 nm
szélfogó (előtér) 5 nm, lépcsőház-közlekedő 8.76 nm, fürdő 4.08 nm, gardrób 3.36 nm, 5.25 nm, háztartási helyiség 3.45 nm, konyha 8.19 nm, nappali 22.11 nm, szoba 15.12, wc 1.70 nm (nettó 77.02 nm), terasz 10.31 nm, 22.77 nm.
Emelet: bruttó: 84.03 nm
előtér 9.82 nm, fürdő 2.77 nm, gardrób 4.2 nm, szoba 11.31 nm, 19.88 nm, 9.63 nm, wc 1.17 nm (nettó 58.78 nm), terasz 22.79 nm, 7.92 nm.
Átadás: 2026 II. félév.
ÁLLAMI TÁMOGATÁS IGÉNYBE VEHETŐ!
A hirdetésben szereplő adatok, információk... tájékoztató jellegűek!
Amennyiben ajánlatom felkeltette az érdeklődését, kérem hívjon bizalommal!
Hirdetés feltöltve: 2025. 09. 27. Utoljára módosítva: 2025. 09. 27.
5 szobás családi házak ára Érden
Ebből az összehasonlításból megtudhatod, hogyan viszonyul a lakás ára a környékbeli családi házak átlagos árához. Ez nem azt jelenti, hogy ennyivel olcsóbb vagy drágább, mint amennyit a lakás ér, hanem hogy ennyivel tér el a környékbeli átlagtól.
Az ingatlan elhelyezkedése
Cím: Érd, földszint
Eladó családi házak a környékről
