City Pearl

Eladó családi ház
Emőd

Figyelem!

Ez az ingatlan a 2019.07.01-től induló falusi CSOK által támogatott településen található

+ 11 kép 1/14
19 000 000 Ft19 M Ft 154 472 Ft/m2
2 szoba
123 m2
építés éve:1960

Részletes adatok

Állapot: Felújítandó
Telekméret: 400 m2
Fűtés: Egyéb
Energetikai besorolás: Nem adta meg a hirdető

Az OTP Bank lakáshitel ajánlataFizetett hirdetés

+36 70 550
Szoboszlai Péter
OTP Ingatlanpont Miskolc Szemere

Érdekel az OTP Bank kedvezményes lakáshitel ajánlata? *

* A kérdésre „Igen” válasz bejelölése esetén, az „Üzenet küldése” gombra kattintva kijelentem, hogy az OTP Bank Nyrt. Adatkezelési tájékoztatójának tartalmát megismertem és tudomásul vettem.

Eladó családi ház leírása

Fedezze fel Emőd fő utcáján ezt az egyedülálló INGATLANLEHETŐSÉGET!

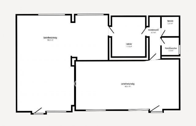
Eladásra kínálunk egy 120 m2 nagyságú épületet, amely REMEK ALKALMAT nyújt mindazoknak, akik családi otthont keresnek, üzlethelyiséget alakítanának ki, vagy BÁRMILYEN VÁLLALKOZÁS számára keresnek ideális helyszínt. Az ingatlan elhelyezkedése KIVÁLÓ, központi fekvése miatt gyorsan elérhető minden fontos helyszín.

Az épület számos előnnyel rendelkezik, amelyek vonzóvá teszik a BEFEKTETŐK és MAGÁNSZEMÉLYEK számára egyaránt. A friss, 2024-es TETŐFELÚJÍTÁS során újralecezést, fóliázást és a szarufák cseréjét végezték el, így a tetőszerkezet hosszú távon MEGBÍZHATÓ. A VÍZVEZETÉKEK és egyéb infrastruktúra szintén korszerűsítésen esett át, így a jövőbeni tulajdonos KORSZERŰ és JÓL MŰKÖDŐ rendszereket vehet birtokba.

Az épület vegyes falazata és VASTAG BETONALAPJA biztosítja a szerkezet stabilitását és a vizesedés kivédését. Az elektromos hálózat RÉZKÁBELLEL van szerelve, ráadásul éjszakai árammal rendelkezik, ami energiatakarékos üzemeltetést tesz lehetővé.
Mindezen felül a vele járó lehetőségek szinte végtelenek: a vizesblokk már elkészült, és különféle helyiségek kialakítására is van lehetőség, hogy az új tulajdonos IGÉNYEI SZERINT alakíthassa tovább a teret.

OTP Banki hátterünknek köszönhetően finanszírozási igényekben (pl. Otthon Start Hitelprogram, Babaváró, Falusi CSOK, CSOK Plusz, Lakáshitel, Személyi kölcsön stb.), illetve biztosítások tekintetében is díjmentesen, soron kívüli ügyintézéssel segítem ügyfeleim!

Ne hagyja ki ezt a sokoldalú, KIVÉTELES INGATLANLEHETŐSÉGET Emőd szívében! Az ingatlan referenciaszámával kapcsolatban és további információkért kérjük, vegye fel velünk a kapcsolatot! Referenciaszám: M295462

Hirdetés feltöltve: 2026. 02. 05. Utoljára módosítva: 2026. 02. 05.

2 szobás családi házak ára Emődön

Ebből az összehasonlításból megtudhatod, hogyan viszonyul a lakás ára a környékbeli családi házak átlagos árához. Ez nem azt jelenti, hogy ennyivel olcsóbb vagy drágább, mint amennyit a lakás ér, hanem hogy ennyivel tér el a környékbeli átlagtól.

Ennek a m² ára
Emőd m² ár
154 e Ft
631 e Ft 76%
Ennek az ára
Emőd átlagár
19 M Ft m Ft
75.7 m Ft 75%

Az ingatlan elhelyezkedése

Cím: Emőd

Eladó ingatlanok a környékről

Eladó családi ház
Eladó családi ház

Miskolc

54.99 M Ft
4 szoba
103 m2
Eladó családi ház
Eladó családi ház

Emőd

34 M Ft
2 szoba
69 m2
Eladó családi ház
Eladó családi ház

Komlóska

55.9 M Ft
7 szoba
247 m2
Eladó családi ház
Eladó családi ház

Tiszalúc

19.9 M Ft
4 szoba
180 m2
Eladó családi ház
Eladó családi ház

Ózd

13 M Ft
5 szoba
150 m2
Eladó téglalakás
Eladó téglalakás

Miskolc

39.9 M Ft
2 szoba
53 m2
Eladó családi ház
Eladó családi ház

Emőd

19.9 M Ft
5 szoba
81 m2
Eladó családi ház
Eladó családi ház

Miskolc

149 M Ft
4 szoba
463 m2
Eladó üzlethelyiség
Eladó üzlethelyiség

Miskolc

18.5 M Ft
2 szoba
31 m2
Eladó családi ház
Eladó családi ház

Emőd

215 M Ft
4 szoba
140 m2
Eladó családi ház
Eladó családi ház

Rudabánya

19.9 M Ft
5 szoba
140 m2
Eladó családi ház
Eladó családi ház

Emőd

38 M Ft
6 szoba
180 m2
Eladó családi ház
Eladó családi ház

Emőd

19 M Ft
2 szoba
123 m2
Eladó családi ház
Eladó családi ház

Emőd, Ilona utca 25

2.6 M Ft
1 + 1 szoba
49 m2
Eladó családi ház
Eladó családi ház

Emőd

62 M Ft
3 szoba
89 m2
Eladó családi ház
Eladó családi ház

Emőd

215 M Ft
4 szoba
140 m2
Eladó családi ház
Eladó családi ház

Tarcal

19.9 M Ft
3 szoba
110 m2
Eladó családi ház
Eladó családi ház

Miskolc

39.9 M Ft
2 szoba
51 m2
Eladó családi ház
Eladó családi ház

Ózd

26.5 M Ft
3 szoba
100 m2
Eladó családi ház
Eladó családi ház

Taktaszada, Thököly utca

37 M Ft
4 + 1 szoba
190 m2
Eladó családi ház
Eladó családi ház

Emőd

19 M Ft
2 szoba
123 m2
Eladó családi ház
Eladó családi ház

Tiszalúc, Alkotmány utca

16.9 M Ft
4 szoba
137 m2
Eladó családi ház
Eladó családi ház

Emőd

62 M Ft
3 szoba
89 m2
Eladó családi ház
Eladó családi ház

Emőd

19 M Ft
2 szoba
123 m2

Falusi CSOK ingatlanok

Eladó családi ház
Eladó családi ház

Szilvásvárad

31.9 M Ft
2 szoba
82 m2
Eladó családi ház
Eladó családi ház

Bogács

62 M Ft
3 szoba
66 m2
Eladó családi ház
Eladó családi ház

Zengővárkony

28 M Ft
3 szoba
87 m2
Eladó családi ház
Eladó családi ház

Alattyán

45 M Ft
4 + 1 szoba
186 m2
Eladó családi ház
Eladó családi ház

Recsk

24.5 M Ft
2 szoba
100 m2
Eladó családi ház
Eladó családi ház

Elek

85.9 M Ft
5 szoba
274 m2
Eladó családi ház
Eladó családi ház

Bugac

55 M Ft
3 szoba
90 m2
Eladó családi ház
Eladó családi ház

Pápakovácsi

79.9 M Ft
4 szoba
210 m2

Falusi CSOK ingatlanok

Eladó családi ház
Eladó családi ház

Somogyszil

27.9 M Ft
3 szoba
140 m2
Eladó családi ház
Eladó családi ház

Recsk

40 M Ft
3 + 1 szoba
130 m2
Eladó családi ház
Eladó családi ház

Szilvásvárad

50 M Ft
3 szoba
69 m2
Eladó családi ház
Eladó családi ház

Bogács

62 M Ft
3 szoba
66 m2
Eladó családi ház
Eladó családi ház

Kemeneshőgyész

8 M Ft
2 szoba
60 m2
Eladó családi ház
Eladó családi ház

Véménd

46.9 M Ft
5 szoba
195 m2
Eladó családi ház
Eladó családi ház

Szilvásvárad

50 M Ft
5 szoba
146 m2
Eladó családi ház
Eladó családi ház

Sárisáp, Orgona utca

60 M Ft
4 szoba
145 m2