City Pearl

Eladó családi ház
Emőd

Figyelem!

Ez az ingatlan a 2019.07.01-től induló falusi CSOK által támogatott településen található

+ 11 kép 1/14
19 000 000 Ft19 M Ft 154 472 Ft/m2
2 szoba
123 m²
építés éve:1960

Részletes adatok

Állapot: Felújítandó
Telekméret: 400 m2
Fűtés: Egyéb
Energetikai besorolás: Nem adta meg a hirdető

Az OTP Bank lakáshitel ajánlataFizetett hirdetés

+36 20 315
Vécsei Katalin
OTP IP Miskolc Corvin 1-3

Érdekel az OTP Bank kedvezményes lakáshitel ajánlata? *

* A kérdésre „Igen” válasz bejelölése esetén, az „Üzenet küldése” gombra kattintva kijelentem, hogy az OTP Bank Nyrt. Adatkezelési tájékoztatójának tartalmát megismertem és tudomásul vettem.

Eladó családi ház leírása

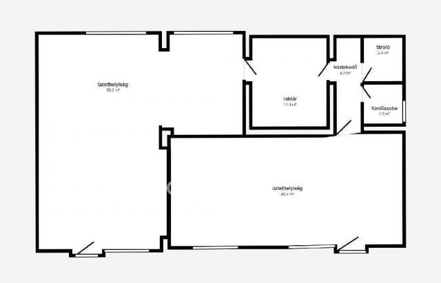
Eladásra kínálunk egy 120 m2 nagyságú épületet, amely remek alkalmat nyújt mindazoknak, akik családi otthont keresnek, üzlethelyiséget alakítanának ki, vagy egyéb vállalkozás számára keresnek ideális helyszínt. Az ingatlan elhelyezkedése kiváló, központi fekvése miatt gyorsan elérhető minden fontos helyszín.
Az épület vegyes falazata és vastag betonalapja biztosítja a szerkezet stabilitását és a vizesedés kivédését. Az elektromos hálózat rézkábellel van szerelve, ráadásul éjszakai árammal rendelkezik, ami energiatakarékos üzemeltetést tesz lehetővé.
Mindezen felül a vele járó lehetőségek szinte végtelenek: a vizesblokk már elkészült, és különféle helyiségek kialakítására is van lehetőség, hogy az új tulajdonos saját igényei szerint alakíthassa tovább a teret.

Az OTP Banki hátterünknek köszönhetően finanszírozási igényekben (pl. Otthon Start Hitelprogram, Babaváró, Falusi CSOK, CSOK Plusz, Lakáshitel, Személyi kölcsön stb.), illetve biztosítások tekintetében is díjmentesen, soron kívüli ügyintézéssel segítem ügyfeleim!

Az ingatlan referenciaszámával kapcsolatban és további információkért kérjük, vegye fel velünk a kapcsolatot! Referenciaszám: M295462

Hirdetés feltöltve: 2026. 03. 19. Utoljára módosítva: 2026. 04. 01.

2 szobás családi házak ára Emődön

Ebből az összehasonlításból megtudhatod, hogyan viszonyul a lakás ára a környékbeli családi házak átlagos árához. Ez nem azt jelenti, hogy ennyivel olcsóbb vagy drágább, mint amennyit a lakás ér, hanem hogy ennyivel tér el a környékbeli átlagtól.

Ennek a m² ára
Emőd m² ár
154 e Ft
640 e Ft 76%
Ennek az ára
Emőd átlagár
19 M Ft m Ft
77.8 m Ft 76%

Az ingatlan elhelyezkedése

Cím: Emőd

Eladó családi házak a környékről

Emőd
Eladó családi ház

Emőd

62 M Ft
3 szoba
89 m²
Emőd
Eladó családi ház

Emőd

215 M Ft
4 szoba
140 m²
Miskolc
Eladó családi ház

Miskolc

25.9 M Ft
4 szoba
148 m²
Emőd
Eladó családi ház

Emőd

19 M Ft
2 szoba
123 m²
Ózd
Eladó családi ház

Ózd

25.99 M Ft
4 szoba
198 m²
Taktaszada, Thököly utca
Eladó családi ház

Taktaszada

37 M Ft
4 + 1 szoba
190 m²
Emőd
Eladó családi ház

Emőd

51 M Ft
4 szoba
100 m²
Emőd
Eladó családi ház

Emőd

16 M Ft
2 szoba
123 m²
Sajószentpéter, Borsvezér
Eladó családi ház

Sajószentpéter

49.5 M Ft
6 szoba
220 m²
Ózd
Eladó családi ház

Ózd

13 M Ft
5 szoba
150 m²
Komlóska
Eladó családi ház

Komlóska

55.9 M Ft
7 szoba
247 m²
Szikszó
Eladó családi ház

Szikszó

89.9 M Ft
3 szoba
100 m²
Rudabánya
Eladó családi ház

Rudabánya

19.9 M Ft
5 szoba
140 m²
Emőd
Eladó családi ház

Emőd

215 M Ft
4 szoba
140 m²
Emőd
Eladó családi ház

Emőd

16 M Ft
2 szoba
123 m²
Emőd
Eladó családi ház

Emőd

215 M Ft
4 szoba
140 m²
Emőd
Eladó családi ház

Emőd

14.99 M Ft
2 szoba
78 m²
Tarcal
Eladó családi ház

Tarcal

21.9 M Ft
3 szoba
90 m²
Gönc, Kossuth Lajos utca
Eladó családi ház

Gönc

26 M Ft
2 + 1 szoba
130 m²
Tiszalúc
Eladó családi ház

Tiszalúc

19.9 M Ft
4 szoba
180 m²
Emőd
Eladó családi ház

Emőd

19 M Ft
2 szoba
123 m²
Gönc
Eladó családi ház

Gönc

20.5 M Ft
2 szoba
80 m²
Miskolc
Eladó családi ház

Miskolc

110 M Ft
6 szoba
199 m²
Emőd
Eladó családi ház

Emőd

51 M Ft
4 szoba
100 m²

Falusi CSOK ingatlanok

Zalacséb
Eladó családi ház

Zalacséb

19.9 M Ft
2 szoba
0 m²
Tápiógyörgye
Eladó családi ház

Tápiógyörgye

24.99 M Ft
6 + 1 szoba
153 m²
Ceglédbercel
Eladó családi ház

Ceglédbercel

65.9 M Ft
3 szoba
97 m²
Ivánc
Eladó családi ház

Ivánc

20.6 M Ft
2 szoba
0 m²
Mikebuda
Eladó családi ház

Mikebuda

55 M Ft
3 + 1 szoba
97 m²
Gádoros
Eladó családi ház

Gádoros

25.5 M Ft
4 szoba
140 m²
Kenyeri
Eladó családi ház

Kenyeri

21.8 M Ft
2 szoba
75 m²
Seregélyes
Eladó családi ház

Seregélyes

75 M Ft
6 szoba
160 m²

Falusi CSOK ingatlanok

Mikebuda
Eladó családi ház

Mikebuda

55 M Ft
3 + 1 szoba
97 m²
Somlójenő
Eladó családi ház

Somlójenő

64.9 M Ft
4 szoba
221 m²
Zalacséb
Eladó családi ház

Zalacséb

19.9 M Ft
2 szoba
0 m²
Tápióbicske
Eladó ikerház

Tápióbicske

93.5 M Ft
7 szoba
136 m²
Drávaszabolcs
Eladó családi ház

Drávaszabolcs

31 M Ft
4 szoba
90 m²
Tápióbicske
Eladó ikerház

Tápióbicske

49.5 M Ft
4 szoba
72 m²
Gönyű
Eladó családi ház

Gönyű

111.951 M Ft
5 szoba
105 m²
Gádoros
Eladó családi ház

Gádoros

25.5 M Ft
4 szoba
140 m²