Avico Greentop

Eladó családi ház
Dány

79 900 000 Ft79.9 M Ft 688 793 Ft/m2
5 szoba
116 m²
építés éve:2026

Részletes adatok

Telekméret: 966 m2
Fűtés: Egyéb
Energetikai besorolás: Nem adta meg a hirdető

Az OTP Bank lakáshitel ajánlataFizetett hirdetés

3629769713
Tivadarné Kulcsár Imola
referens

Érdekel az OTP Bank kedvezményes lakáshitel ajánlata? *

* A kérdésre „Igen” válasz bejelölése esetén, az „Üzenet küldése” gombra kattintva kijelentem, hogy az OTP Bank Nyrt. Adatkezelési tájékoztatójának tartalmát megismertem és tudomásul vettem.

Eladó családi ház leírása

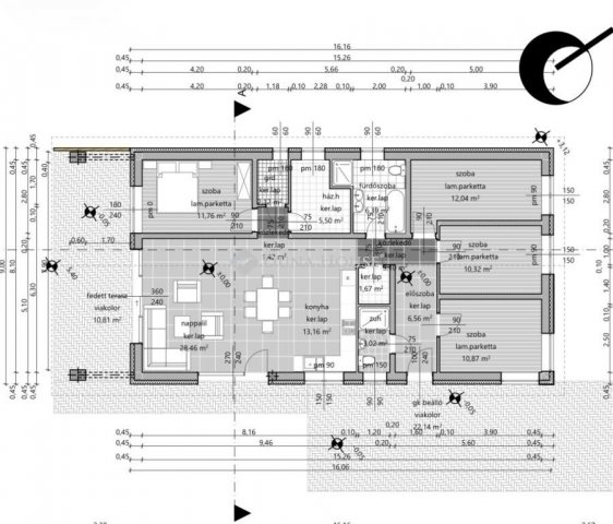
Dányban eladó, újépítésű, 4 szoba + nappalis, önálló családi ház, dupla fürdőszobával, hőszivattyús fűtéssel, 966 nm-es telekkel!

Belső nettó hasznos élhető tér 116.39 nm! + fedett terasz 10.81 nm

Telek területe 966 m2, 17 méter széles és 56 méter hosszú.

Várható átadás : 2026.10 hó

10 % önerővel szerződhető!

Helyiségeit tekintve nagyon jó elosztással rendelkezik, alábbiakban sorolom fel négyzetméterek megjelölésével:

- előszoba (6.56 nm)
- 4 önálló bejáratú szoba (11.76 nm, 12.04 nm, 10.32 nm, 10.87 nm)
- teraszkapcsolatos nagy nappali étkezővel, konyhával (41.62 nm)
- közlekedő (4.52 nm)
- háztartási helyiség (5.50 nm)
- fürdőszoba + wc (6.39 nm)
- zuhanyzó + wc (3.02 nm)
- kamra (1.67 nm)
- gardrób (2.12 nm)

Műszaki leírás:
- hőszivattyús fűtés, padlófűtéssel
- klíma a nappaliban
- burkolat 6000 ft / nm (hideg, meleg)
- 15 cm homlokzati hőszigetelés
- 10 cm lábazati hőszigetelés
- 30 cm üveggyapot tető hőszigetelés
- nyílászárók: típus műanyag szerkezetek, 3 rtg.hőszig.üveggel
- festés: belsőben páraáteresztő falfestékkel, színezve igény szerint
- csaptelepek 15 000 ft / db
- beltéri ajtók 60 000 ft / db
- alföldi márkájú szaniterek választhatóak

Dány egy csendes, barátságos település Pest vármegyében, a Gödöllői-dombság lankái között. A község ideális választás mindazok számára, akik nyugodt, vidéki környezetben szeretnének élni, ugyanakkor fontos számukra a főváros közelsége Budapest autóval körülbelül 4050 perc alatt elérhető.

A település rendezett, folyamatosan fejlődő infrastruktúrával rendelkezik: megtalálható óvoda, iskola, orvosi rendelő, valamint alapvető kereskedelmi és szolgáltató egységek. A közösségi élet aktív, a helyi rendezvények és hagyományőrző programok erősítik az összetartó lakóközösséget.

Dány különösen vonzó lehet családok számára, hiszen a nyugodt környezet, a tiszta levegő és a zöldterületek kiváló életminőséget biztosítanak. A természet közelsége kirándulási és kikapcsolódási lehetőségeket kínál, miközben a mindennapi élethez szükséges szolgáltatások könnyen elérhetők.

Összességében Dány ideális választás azoknak, akik a város zajától távol, mégis jól megközelíthető helyen keresnek otthont.
Amennyiben az ingatlan felkeltette az érdeklődését, keressen bizalommal a hét bármely napján!
Jöjjön el, nézze meg, szeressen bele, legyen Ön a a következő lakója!

Érd: Kulcsár Imola, tel: +36/20/240 4146, e-mail: kulcsar.imola@dh.hu

Az ajánlatom megfelelne az elvárásainak, de nem rendelkezik a kiválasztott ingatlan teljes vételárával!?
Hitelre történő vásárlás esetén Bankfüggetlen Credipass Pénzügyi Szakértőnk kötelezettség nélkül megtalálja az Ön számára legkedvezőbb megoldást! A tanácsadás ingyenes!

Referencia szám: HZ035861

Hirdetés feltöltve: 2026. 04. 01. Utoljára módosítva: 2026. 04. 09.

Az ingatlan elhelyezkedése

Cím: Dány

Eladó ingatlanok a környékről

Dány
Eladó családi ház

Dány

139.9 M Ft
7 szoba
160 m²
Kerepes
Eladó családi ház

Kerepes

81.99 M Ft
5 szoba
102 m²
Tápiószele
Eladó családi ház

Tápiószele

18.9 M Ft
4 szoba
68 m²
Budakeszi
Eladó családi ház

Budakeszi

130 M Ft
5 szoba
30 m²
Érd, Érdliget - Kutyavár, Érd-liget
Eladó családi ház

Érd

230 M Ft
7 szoba
280 m²
Dány
Eladó családi ház

Dány

79.9 M Ft
5 szoba
116 m²
Dány
Eladó családi ház

Dány

39.5 M Ft
2 szoba
95 m²
Tápiószőlős
Eladó családi ház

Tápiószőlős

34.9 M Ft
5 szoba
210 m²
Érd
Eladó családi ház

Érd

164.9 M Ft
5 szoba
192 m²
Budaörs
Eladó családi ház

Budaörs

400 M Ft
12 szoba
583 m²
Dány
Eladó családi ház

Dány

157.5 M Ft
10 szoba
260 m²
Dány
Eladó családi ház

Dány

44.9 M Ft
1 + 2 szoba
45 m²
Kerepes
Eladó családi ház

Kerepes

199 M Ft
6 szoba
360 m²
Ipolytölgyes
Eladó családi ház

Ipolytölgyes

40 M Ft
2 + 1 szoba
93 m²
Dány
Eladó családi ház

Dány

79.9 M Ft
5 szoba
116 m²
Tápiószentmárton
Eladó családi ház

Tápiószentmárton

16.5 M Ft
3 szoba
50 m²
Budakeszi, Budakeszi kertváros
Eladó családi ház

Budakeszi

229 M Ft
10 szoba
450 m²
Dány
Eladó családi ház

Dány

157.5 M Ft
10 szoba
260 m²
Dány
Eladó családi ház

Dány

70 M Ft
4 szoba
110 m²
Dány
Eladó családi ház

Dány

90 M Ft
4 szoba
179 m²
Dány
Eladó családi ház

Dány

59.9 M Ft
3 szoba
120 m²
Pécel, Reményik Sándor utca
Eladó családi ház

Pécel

296 M Ft
6 szoba
396 m²
Dunakeszi
Eladó családi ház

Dunakeszi

250 M Ft
4 szoba
180 m²
Tápiószele
Eladó családi ház

Tápiószele

11.9 M Ft
3 szoba
62 m²

Falusi CSOK ingatlanok

Székkutas
Eladó családi ház

Székkutas

12.5 M Ft
2 szoba
70 m²
Szigetcsép
Eladó családi ház

Szigetcsép

110 M Ft
3 szoba
137 m²
Kenyeri
Eladó családi ház

Kenyeri

21.8 M Ft
2 szoba
75 m²
Herend
Eladó családi ház

Herend

114.3 M Ft
5 szoba
108 m²
Tápióság
Eladó családi ház

Tápióság

59.9 M Ft
4 szoba
99 m²
Balatonszemes
Eladó téglalakás

Balatonszemes

125.2 M Ft
2 szoba
50 m²
Pusztamagyaród
Eladó családi ház

Pusztamagyaród

32 M Ft
3 szoba
83 m²
Iklad
Eladó családi ház

Iklad

60 M Ft
3 szoba
76 m²